Актуальная информация размещается https://arhcity.gosuslugi.ru/
Комиссия по землепользованию и застройке городского округа "Город Архангельск" извещает о начале проведения общественных обсуждений схемы расположения земельных участков, образуемых в результате раздела земельного участка с кадастровым номером 29:22:060417:53
Общественные обсуждения проводятся с "3" ноября 2022 года по "16" ноября 2022 года.
Форма подачи предложений и (или) замечания по проекту
Схема расположения земельных участков
Комиссия по землепользованию и застройке городского округа "Город Архангельск" извещает о начале проведения общественных обсуждений схем расположения земельных участков, расположенных:
в Маймаксанском территориальном округе г. Архангельска по ул. Юнг Военно-Морского Флота, 7, корп. 1;
в Соломбальском территориальном округе г. Архангельска по ул. Физкультурников, 42, корп. 2;
в Соломбальском территориальном округе г. Архангельска по ул. Физкультурников, 35;
в Соломбальском территориальном округе г. Архангельска по ул. Беломорской флотилии, 2;
в Соломбальском территориальном округе г. Архангельска по ул. Баумана, 12, корп. 4;
в территориальном округе Майская горка г. Архангельска по ул. Лермонтова, 21;
в территориальном округе Майская горка г. Архангельска по ул. Лермонтова, 27, корп. 1;
в территориальном округе Варавино-Фактория г. Архангельска по ул. Революции, 23/проспекту Ленинградскому, 325;
в Исакогорском территориальном округе г. Архангельска по ул. Таёжной, 15;
в Исакогорском территориальном округе г. Архангельска по ул. Пограничной, 6;
в Исакогорском территориальном округе г. Архангельска по ул. Речников, 37.
Общественные обсуждения проводятся с "23" декабря 2022 года по "11" января 2023 года.
Форма подачи предложений и (или) замечания по проекту
Схема расположения земельного участка по ул. Юнг Военно-Морского Флота, 7, корп. 1
Схема расположения земельного участка по ул. Физкультурников, 42, корп. 2
Схема расположения земельного участка по ул. Физкультурников, 35
Схема расположения земельного участка по ул. Беломорской флотилии, 2
Схема расположения земельного участка по ул. Баумана, 12, корп. 4
Схема расположения земельного участка по ул. Лермонтова, 21
Схема расположения земельного участка по ул. Лермонтова, 27, корп. 1
Схема расположения земельного участка по ул. Революции, 23/проспекту Ленинградскому, 325
Схема расположения земельного участка по ул. Таёжной, 15
Схема расположения земельного участка по ул. Пограничной, 6
Схема расположения земельного участка по ул. Речников, 37
Комиссия по землепользованию и застройке городского округа "Город Архангельск" извещает о начале проведения общественных обсуждений схем расположения земельных участков, расположенных:
в Исакогорском территориальном округе г. Архангельска по ул. Вычегодской, 3;
в Исакогорском территориальном округе г. Архангельска по ул. Пирсовой, 25;
в Северном территориальном округе г. Архангельска по ул. Партизанской, 38;
в Северном территориальном округе г. Архангельска по ул. Ударников, 21.
Общественные обсуждения проводятся с "30" декабря 2022 года по "25" января 2023 года
Форма подачи предложений и (или) замечания по проекту
Схема расположения земельного участка по ул. Вычегодской, 3
Схема расположения земельного участка по ул. Пирсовой, 25
Схема расположения земельного участка по ул. Партизанской, 38
Схема расположения земельного участка по ул. Ударников, 21
Комиссия по землепользованию и застройке городского округа "Город Архангельск" извещает о начале проведения общественных обсуждений схем расположения земельных участков, расположенных:
в Северном территориальном округе г. Архангельска по ул. Красных маршалов, 18;
в Соломбальском территориальном округе г. Архангельска по ул. Мостовой, 22;
в Цигломенском территориальном округе г. Архангельска по пер. Одиннадцатому, 6;
в Соломбальском территориальном округе г. Архангельска по ул. Физкультурников, 41;
в Соломбальском территориальном округе г. Архангельска по пер. Широкому, 7;
в Маймаксанском территориальном округе г. Архангельска по ул. Мудьюгской, 41, корп. 1;
в Маймаксанском территориальном округе г. Архангельска по ул. Лодемской, 47;
в Исакогорском территориальном округе г. Архангельска по ул. Левобережной, 11;
в Исакогорском территориальном округе г. Архангельска по ул. Парковой, 5;
в территориальном округе Майская горка г. Архангельска по ул. Сплавной, 3;
в территориальном округе Варавино-Фактория г. Архангельска
по ул. Холмогорской, 35, корп. 6;
в территориальном округе Майская горка г. Архангельска по ул. Лермонтова, 21.
Форма подачи предложений и (или) замечания по проекту
Схема расположения земельного участка по ул. Красных маршалов, 18;
Схема расположения земельного участка по ул. Мостовой, 22;
Схема расположения земельного участка по пер. Одиннадцатому, 6;
Схема расположения земельного участка по ул. Физкультурников, 41;
Схема расположения земельного участка по пер. Широкому, 7;
Схема расположения земельного участка по ул. Мудьюгской, 41, корп. 1;
Схема расположения земельного участка по ул. Лодемской, 47;
Схема расположения земельного участка по ул. Левобережной, 11;
Схема расположения земельного участка по ул. Парковой, 5;
Схема расположения земельного участка по ул. Сплавной, 3;
Схема расположения земельного участка по ул. Холмогорской, 35, корп. 6;
Схема расположения земельного участка по ул. Лермонтова, 21
Комиссия по землепользованию и застройке городского округа "Город Архангельск" извещает о начале проведения общественных обсуждений схем расположения земельных участков, расположенных:
Форма подачи предложений и (или) замечания по проекту
Комиссия по землепользованию и застройке городского округа "Город Архангельск" извещает о начале проведения общественных обсуждений схемы расположения земельного участка, расположенного:
Форма подачи предложений и (или) замечаний по проекту
Комиссия по землепользованию и застройке городского округа "Город Архангельск" извещает о начале проведения общественных обсуждений схемы расположения земельного участка, расположенного:
Форма подачи предложений и (или) замечаний по проекту
Комиссия по землепользованию и застройке городского округа "Город Архангельск" извещает о начале проведения общественных обсуждений схем расположения земельных участков, расположенных:
в территориальном округе Варавино-Фактория г. Архангельска по ул. Холмогорской, 35, корп. 1;
в Цигломенском территориальном округе г. Архангельска по ул. Зеленец, 5;
в Соломбальском территориальном округе г. Архангельска по ул. Гвардейской, 3;
в Соломбальском территориальном округе г. Архангельска по ул. Гвардейской, 11;
в Маймаксанском территориальном округе г. Архангельска по ул. Юнг Военно-Морского Флота, 20;
в Маймаксанском территориальном округе г. Архангельска по ул. Юнг Военно-Морского Флота, 75;
в Ломоносовском территориальном округе г. Архангельска по ул. Выучейского, 35;
в территориальном округе Майская горкаг. Архангельска по проспекту Ленинградскому, 58;
в Маймаксанском территориальном округе г. Архангельска по ул. Лодемской, 51, корп. 1;
в Исакогорском территориальном округе г. Архангельска по ул. Тяговой, 14.
Общественные обсуждения проводятся с "5" мая 2023 года по "10" мая 2023 года.
Форма подачи предложений и (или) замечаний по проекту
Заключение
Общественные обсуждения проводятся с "26" мая 2023 года по "7" июня 2023 года.
Форма подачи предложений и (или) замечаний по проекту
Комиссия по землепользованию и застройке городского округа "Город Архангельск" извещает о начале проведения общественных обсуждений схем расположения земельных участков, расположенных:
Общественные обсуждения проводятся с "23" июня 2023 года по "5" июля 2023 года.
подачи предложений и (или) замечаний по проекту.
Комиссия по землепользованию и застройке городского округа "Город Архангельск" извещает о начале проведения общественных обсуждений схем расположения земельных участков, расположенных:
Схема расположения земельного участка в Исакогорском территориальном округе г. Архангельска по ул. Привокзальной, 17;
Схема расположения земельного участка в Соломбальском территориальном округе г. Архангельска по ул. Баумана, 12, корп. 3;
Общественные обсуждения проводятся с "21" июля 2023 года по "2" августа 2023 года.
Форма подачи предложений и (или) замечаний по проекту.
Комиссия по землепользованию и застройке городского округа "Город Архангельск" извещает о начале проведения общественных обсуждений схем расположения земельных участков, расположенных:
Схема расположения земельного участка в Маймаксанском территориальном округе г. Архангельска по ул. Колхозной, 5;
Схема расположения земельного участка в в Соломбальском территориальном округе г. Архангельска по ул. Мореплавателей, 5;
Схема расположения земельного участка в Соломбальском территориальном округе г. Архангельска по ул. Терехина, 52;
Схема расположения земельного участка в Северном территориальном округе г. Архангельска по ул. Красных маршалов, 16;
Схема расположения земельного участка в Ломоносовском территориальном округе г. Архангельска по ул. Выучейского, 37;
Схема расположения земельного участка в Октябрьском территориальном округе г. Архангельска по ул. Свободы, 28;
Схема расположения земельного участка в Октябрьском территориальном округе г. Архангельска по ул. Свободы, 47, корпус 1;
Схема расположения земельного участка в Октябрьском территориальном округе г. Архангельска по проспекту Советских космонавтов, 112;
Схема расположения земельного участка в Октябрьском территориальном округе г. Архангельска по проспекту Советских космонавтов, 114;
Схема расположения земельного участка в поселке Лесная речка городского округа "Город Архангельск" по Лахтинскому шоссе, 130;
Схема расположения земельного участка в Исакогорском территориальном округе г. Архангельска по ул. Доковской, 3.
Общественные обсуждения проводятся с "4" августа 2023 года по "16" августа 2023 года.
Форма подачи предложений и (или) замечаний по проекту.
Комиссия по землепользованию и застройке городского округа "Город Архангельск" извещает о начале проведения общественных обсуждений схем расположения земельных участков, расположенных:
Комиссия по землепользованию и застройке городского округа "Город Архангельск" извещает о начале проведения общественных обсуждений схем расположения земельных участков, расположенных:
Схема расположения земельного участка в Исакогорском территориальном округе г. Архангельска по ул. Судоремонтников, 9;
Схема расположения земельного участка в Исакогорском территориальном округе г. Архангельска по ул. Судоремонтников, 10;
Схема расположения земельного участка в Исакогорском территориальном округе г. Архангельска по ул. Судоремонтников, 11;
Схема расположения земельного участка в Исакогорском территориальном округе г. Архангельска по ул. Доковской, 7;
Схема расположения земельного участка в Исакогорском территориальном округе г. Архангельска по ул. Доковской, 25;
Схема расположения земельного участка в Исакогорском территориальном округе г. Архангельска по ул. Железнодорожной, 3;
Схема расположения земельного участка в Исакогорском территориальном округе г. Архангельска по ул. Железнодорожной, 9;
Схема расположения земельного участка в Исакогорском территориальном округе г. Архангельска по ул. Лесозаводской, 12.
Общественные обсуждения проводятся с "1" сентября 2023 года по "13" сентября 2023 года.
Форма подачи предложений и (или) замечаний по проекту
Комиссия по землепользованию и застройке городского округа "Город Архангельск" извещает о начале проведения общественных обсуждений схем расположения земельных участков, расположенных:
Схема расположения земельного участка в Соломбальском территориальном округе г. Архангельска по ул. Баумана, 12;
Схема расположения земельного участка в Соломбальском территориальном округе г. Архангельска по ул. Баумана, 18;
Схема расположения земельного участка в Соломбальском территориальном округе г. Архангельска по ул. Баумана, 25;
Схема расположения земельного участка в Соломбальском территориальном округе г. Архангельска по ул. Трамвайной, 4;
Схема расположения земельного участка в Соломбальском территориальном округе г. Архангельска по ул. Физкультурников, 33;
Схема расположения земельного участка в Маймаксанском территориальном округе г. Архангельска по ул. Родионова, 20;
Схема расположения земельного участка в Маймаксанском территориальном округе г. Архангельска по ул. Юнг Военно-Морского Флота, 68;
Схема расположения земельного участка в Маймаксанском территориальном округе г. Архангельска по ул. Юнг Военно-Морского Флота, 19.
Общественные обсуждения проводятся с "29" сентября 2023 года по "11" октября 2023 года.
Форма подачи предложений и (или) замечаний по проекту
Комиссия по землепользованию и застройке городского округа "Город Архангельск" извещает о начале проведения общественных обсуждений схем расположения земельных участков, расположенных:
в Соломбальском территориальном округе г. Архангельска по ул. Кучина А.С., д. 4;
в Соломбальском территориальном округе г. Архангельска по ул. Гвардейской, 12;
в Соломбальском территориальном округе г. Архангельска по ул. Физкультурников, 25;
в Маймаксанском территориальном округе г. Архангельска по ул. Победы, 18, корпус 1;
в Маймаксанском территориальном округе г. Архангельска по ул. Механизаторов, 27;
в Маймаксанском территориальном округе г. Архангельска по ул. Петрозаводской, 11;
в Маймаксанском территориальном округе г. Архангельска по ул. Фрунзе, 45;
в Маймаксанском территориальном округе г. Архангельска по ул. Котовского, 9;
в Цигломенском территориальном округе г. Архангельска по ул. Зеленец, 6;
в Исакогорском территориальном округе г. Архангельска по ул. Тяговой, 6.
Общественные обсуждения проводятся с "13" октября 2023 года по "25" октября 2023 года.
Комиссия по землепользованию и застройке городского округа "Город Архангельск" извещает о начале проведения общественных обсуждений схем расположения земельных участков, расположенных:
в Соломбальском территориальном округе г. Архангельска по ул. Гвардейской, 1, корпус 4;
в Соломбальском территориальном округе г. Архангельска по ул. Гвардейской, 15;
в Соломбальском территориальном округе г. Архангельска по ул. Трамвайной, 6;
в Соломбальском территориальном округе г. Архангельска по ул. Гвардейской, 1;
в Маймаксанском территориальном округе г. Архангельска по ул. Герцена, 9;
в Маймаксанском территориальном округе г. Архангельска по ул. Юнг Военно-Морского Флота, 71;
в Маймаксанском территориальном округе г. Архангельска по ул. Юнг Военно-Морского Флота, 15, корпус 1;
в Маймаксанском территориальном округе г. Архангельска по ул. Юнг Военно-Морского Флота, 76;
в Маймаксанском территориальном округе г. Архангельска по ул. Юнг Военно-Морского Флота, 35, корпус 1;
в Маймаксанском территориальном округе г. Архангельска по ул. Мудьюгской, 26;
в Цигломенском территориальном округе г. Архангельска по ул. Мира, 2;
в Цигломенском территориальном округе г. Архангельска по ул. Ленинской, 10;
в Исакогорском территориальном округе г. Архангельска по ул. Локомотивной, 58;
в территориальном округе Варавино-Фактория г. Архангельска по ул. Революции, 29, коропус 1/ул. Почтовый тракт, 18;
в поселке Турдеевск городского округа "Город Архангельск" по ул. Таежной, 14, корпус 1
Общественные обсуждения проводятся с "10" ноября 2023 года по "22" ноября 2023 года.
Форма подачи предложений и (или) замечаний по проекту
Комиссия по землепользованию и застройке городского округа "Город Архангельск" извещает о начале проведения общественных обсуждений
схемы расположения земельного участка, расположенного в городском округе "Город Архангельск" по ул. Доковской, 3.
Общественные обсуждения проводятся с "26" января 2024 года по "31" января 2024 года.
Форма подачи предложений и (или) замечаний по проекту
Схема расположения земельного участка в городском округе "Город Архангельск" по ул. Доковской, 3
Комиссия по землепользованию и застройке городского округа "Город Архангельск" извещает о начале проведения общественных обсуждений схем расположения земельных участков, расположенных:
в территориальном округе Варавино-Фактория г. Архангельска по пер. 1-му Ленинградскому, 6;
в территориальном округе Варавино-Фактория г. Архангельска по проспекту Ленинградскому, 319;
в территориальном округе Варавино-Фактория г. Архангельска по проспекту Ленинградскому, 334;
в территориальном округе Варавино-Фактория г. Архангельска по проспекту Ленинградскому, 377;
в Маймаксанском территориальном округе г. Архангельска по ул. Лодемской, 49;
в Маймаксанском территориальном округе г. Архангельска по ул. Родионова, 18;
в Исакогорском территориальном округе г. Архангельска по ул. Привокзальной, 11;
в Исакогорском территориальном округе г. Архангельска по ул. Привокзальной, 12;
в Исакогорском территориальном округе г. Архангельска по ул. Речников, 33, корп. 2;
в территориальном округе Майская горка г. Архангельска по ул. Лермонтова, 29;
в территориальном округе Майская горка г. Архангельска по ул. Лермонтова, 29, корп. 1;
в Октябрьском территориальном округе г. Архангельска по ул. Свободы, 57, корп. 1;
в Октябрьском территориальном округе г. Архангельска по ул. Карла Маркса, 42;
в Октябрьском территориальном округе г. Архангельска по проспекту Ломоносова, 172, корп. 3.
Общественные обсуждения проводятся с 16 февраля 2024 года по 21 февраля 2024 года.
Форма подачи предложений и (или) замечаний по проекту
Комиссия по землепользованию и застройке городского округа "Город Архангельск" извещает о начале проведения общественных обсуждений схем расположения земельных участков, расположенных:
в Маймаксанском территориальном округе г. Архангельска по ул. Гидролизной, 19;
в Маймаксанском территориальном округе г. Архангельска по ул. Гидролизной, 16;
в Соломбальском территориальном округе г. Архангельска по ул. Гвардейской, 13;
в Исакогорском территориальном округе г. Архангельска по ул. Железнодорожной, 10;
в Исакогорском территориальном округе г. Архангельска по ул. Железнодорожной, 4.
Общественные обсуждения проводятся с 22 февраля 2024 года по 13 марта 2024 года.
Форма подачи предложений и (или) замечаний по проекту
Комиссия по землепользованию и застройке городского округа "Город Архангельск" извещает о начале проведения общественных обсуждений схем расположения земельных участков, расположенных:
в Соломбальском территориальном округе г. Архангельска по ул. Мещерского, 2;
в Маймаксанском территориальном округе г. Архангельска по ул. Победы, 12, корп. 2;
в Маймаксанском территориальном округе г. Архангельска по ул. Победы, 12, корп. 3;
в Маймаксанском территориальном округе г. Архангельска по ул. Победы, 18;
в Северном территориальном округе г. Архангельска по ул. Добролюбова, 28;
в Северном территориальном округе г. Архангельска по ул. Добролюбова, 30;
в Исакогорском территориальном округе г. Архангельска по ул. Локомотивной, 33;
в Исакогорском территориальном округе г. Архангельска по ул. Локомотивной, 35;
в Исакогорском территориальном округе г. Архангельска по ул. Локомотивной, 37;
в Исакогорском территориальном округе г. Архангельска по ул. Локомотивной, 40;
в Исакогорском территориальном округе г. Архангельска по ул. Локомотивной, 42;
в Исакогорском территориальном округе г. Архангельска по ул. Клепача, 5.
Общественные обсуждения проводятся с 8 мая 2024 года по 15 мая 2024 года.
Форма подачи предложений и (или) замечаний по проекту
Комиссия по землепользованию и застройке городского округа "Город Архангельск" извещает о начале проведения общественных обсуждений схем расположения земельных участков, расположенных:
в территориальном округе Варавино-Фактория г. Архангельска по ул. Красносельской, 16;
в территориальном округе Варавино-Фактория г. Архангельска по ул. Октябрьской, 33, корп. 1;
в территориальном округе Варавино-Фактория г. Архангельска по ул. Дачной, 64;
в территориальном округе Майская горка г. Архангельска по ул. Дружбы, 22;
в территориальном округе Майская горка г. Архангельска по ул. Дружбы, 35;
в территориальном округе Майская горка г. Архангельска по ул. Машиностроителей, 4;
в Маймаксанском территориальном округе г. Архангельска по ул. Мудьюгской, 23;
в Исакогорском территориальном округе г. Архангельска по ул. Вычегодской, 23;
в Исакогорском территориальном округе г. Архангельска по ул. Тяговой, 3;
в Цигломенском территориальном округе г. Архангельска по пер. Одиннадцатому, 1;
в Цигломенском территориальном округе г. Архангельска по пер. Одиннадцатому, 9;
в Цигломенском территориальном округе г. Архангельска по ул. Цигломенской, 12;
в Соломбальском территориальном округе г. Архангельска по ул. Шилова, 31;
в Соломбальском территориальном округе г. Архангельска по пер. Широкому, 9;
в Соломбальском территориальном округе г. Архангельска по ул. Александра Петрова, 9;
в Соломбальском территориальном округе г. Архангельска по ул. Трамвайной, 7.
Общественные обсуждения проводятся с 2 августа 2024 года по 14 августа 2024 года.
Форма подачи предложений и (или) замечаний по проекту
Комиссия по землепользованию и застройке городского округа "Город Архангельск" извещает о начале проведения общественных обсуждений схем расположения земельных участков, расположенных:
в территориальном округе Варавино-Фактория г. Архангельска по проспекту Ленинградскому, 336;
в Соломбальском территориальном округе г. Архангельска по ул. Краснофлотской, 45;
в территориальном округе Майская горка г. Архангельска по ул. Дружбы, 4;
в Маймаксанском территориальном округе г. Архангельска по ул. Капитана Хромцова, 1, корпус 1;
в Северном территориальном округе г. Архангельска по ул. Добролюбова, 16;
в Северном территориальном округе г. Архангельска по ул. Добролюбова, 18, корп.1;
в Северном территориальном округе г. Архангельска по ул. Добролюбова, 20;
в Северном территориальном округе г. Архангельска по ул. Ударников, 15;
в Северном территориальном округе г. Архангельска по ул. Ударников, 15, корп.1.
Форма подачи предложений и (или) замечаний по проекту
Комиссия по землепользованию и застройке городского округа "Город Архангельск" извещает о начале проведения общественных обсуждений схем расположения земельных участков, расположенных:
в Маймаксанском территориальном округе г. Архангельска по ул. Мудьюгской, 45;
в Маймаксанском территориальном округе г. Архангельска по ул. Мудьюгской, 4;
в Соломбальском территориальном округе г. Архангельска по ул. Трамвайной, 1.
Форма подачи предложений и (или) замечания по проекту
Схема расположения земельного участка в Соломбальском территориальном округе г. Архангельска, по ул. Трамвайной, 1
Комиссия по землепользованию и застройке городского округа "Город Архангельск" извещает о начале проведения общественных обсуждений схем расположения земельных участков, расположенных:
в территориальном округе Варавино-Фактория г. Архангельска по ул. Почтовый тракт, 17;
в территориальном округе Майская горка г. Архангельска по ул. Дружбы, 12;
в пос. Турдеевск городского округа "Город Архангельск" по ул. Центральной, 20
Форма подачи предложений и (или) замечаний по проекту
Схема расположения земельного участка в территориальном округе Варавино-Фактория г. Архангельска по ул. Почтовый тракт, 17
Схема расположения земельного участка в территориальном округе Майская горка г. Архангельска по ул. Дружбы, 12
Схема расположения земельного участка в пос. Турдеевск городского округа "Город Архангельск" по ул. Центральной, 20
Комиссия по землепользованию и застройке городского округа "Город Архангельск" извещает о начале проведения общественных обсуждений схемы расположения земельного участка, расположенного в Исакогорском территориальном округе г. Архангельска по ул. Речников, 33, корпус 4.
Форма подачи предложений и (или) замечаний по проекту
Схема расположения земельного участка
Комиссия по землепользованию и застройке городского округа "Город Архангельск" извещает о начале проведения общественных обсуждений схемы расположения земельных участков, образуемых в результате раздела земельного участка с кадастровым номером 29:22:081609:10, расположенных в Исакогорском территориальном округе г. Архангельска по ул. Дорожников, дома 1, 2, 3, 4.
Форма подачи предложений и (или) замечаний по проекту
Схема расположения земельных участков
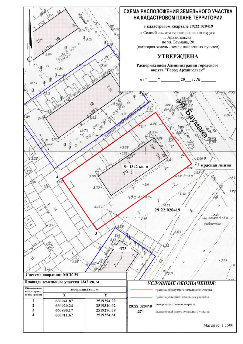
Комиссия по землепользованию и застройке городского округа "Город Архангельск" извещает о начале проведения общественных обсуждений схем расположения земельных участков, расположенных:
в Цигломенском территориальном округе г. Архангельска по ул. Зеленец, 32;
в Соломбальском территориальном округе г. Архангельска по ул. Баумана, 20;
в территориальном округе Варавино-Фактория г. Архангельска по проспекту Ленинградскому, 383;
в пос. Турдеевск городского округа "Город Архангельск" по ул. Турдеевской, 9;
в Октябрьском территориальном округе г. Архангельска по ул. Гагарина, 8;
в территориальном округе Майская горка г. Архангельска по ул. Лермонтова, 17;
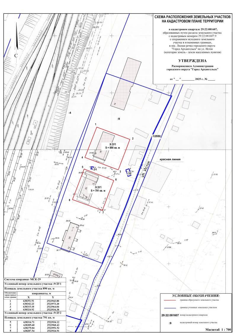
в пос. Лесная речка городского округа "Город Архангельск" по ул. Исток, 15
в пос. Лесная речка городского округа "Город Архангельск" по ул. Исток, 16;
в Исакогорском территориальном округе г. Архангельска по ул. Тяговой, 36.
Форма подачи предложений и (или) замечаний по проекту
Схема расположения земельного участка в Соломбальском территориальном округе г. Архангельска по ул. Баумана, 20
Схема расположения земельного участка в территориальном округе Варавино-Фактория г. Архангельска по проспекту Ленинградскому, 383
Схема расположения земельного участка в пос. Турдеевск городского округа "Город Архангельск" по ул. Турдеевской, 9
Схема расположения земельного участка в Октябрьском территориальном округе г. Архангельска по ул. Гагарина, 8
Схема расположения земельного участка в территориальном округе Майская горка г. Архангельска по ул. Лермонтова, 17
Схема расположения земельного участка в пос. Лесная речка городского округа "Город Архангельск" по ул. Исток, 15
Схема расположения земельного участка в пос. Лесная речка городского округа "Город Архангельск" по ул. Исток, 16
Схема расположения земельного участка в Исакогорском территориальном округе г. Архангельска по ул. Тяговой, 36
Последнее изменение: 14.11.2025 12:59:14















































