На данном сайте содержится информация о деятельности Администрации городского округа «Город Архангельск» по состоянию на 31.12.2025.
Актуальная информация размещается https://arhcity.gosuslugi.ru/
Продажа муниципального имущества в собственность
Аукцион 10.05.2016 (приватизация)

Приложение № 1

к протоколу заседания комиссии

по приватизации муниципального

имущества от 11.03.2016 № 1


ИНФОРМАЦИОННОЕ  СООБЩЕНИЕ

Администрация муниципального образования «Город Архангельск»

 по адресу: г. Архангельск, пл. В.И. Ленина, дом 5

проводит продажу муниципального имущества


10 мая 2016 ГОДА в 15 ЧАСОВ 00 МИНУТ в каб. 436 состоится АУКЦИОН по продаже имущества, принадлежащего муниципальному образованию "Город Архангельск", открытый по составу участников и по форме подачи предложений о цене имущества.

Адрес приема заявок и документов, возможность ознакомления со сведениями о продаваемом имуществе, проектом договора купли-продажи, получение типовых документов, представляемых покупателями: г. Архангельск, пл. В.И. Ленина, дом 5, 4 этаж, каб. 434 с 9-00 до 12-30; с 14-00 до 16-00, телефон (8182)607-290, (8182)607-299.

Информационное сообщение о  проведении аукциона с документами размещены:

на официальном сайте Российской Федерации для размещения информации о проведении торгов www.torgi.gov.ru (раздел "ТОРГИ");

на официальном информационном Интернет-портале муниципального образования "Город Архангельск" http://www.arhcity.ru ("ТОРГИ").

Адрес электронной почты: pastorinams@arhcity.ru.

Заявки представляются на бумажном носителе по установленной форме по адресу: г.Архангельск, пл. В.И. Ленина, дом 5, 4 этаж, каб. 434 с 9-00 до 12-30; с 14-00 до 16-30.

Дата начала подачи заявок на торги – 06 апреля 2016 года в 09 часов 00 минут.

Дата окончания подачи заявок – 04 мая 2016 года в 16 часов 30 минут.

Для участия в аукционе претендент вносит установленный задаток на расчетный счет Продавца № 40302810040303170239, банк получателя: Отделение Архангельск г.Архангельск, ИНН 2901078408, КПП 290101001, БИК 041117001.

Получатель: УФК по Архангельской области и Ненецкому автономному округу (ДМИ, л/с 05243004840).

Срок поступления задатка на расчетный счет продавца – по 04 мая 2016 года включительно.

До признания претендента участником аукциона он имеет право посредством уведомления в письменной форме отозвать зарегистрированную заявку. В случае отзыва претендентом в установленном порядке заявки до даты окончания приема заявок, поступивший от претендента задаток подлежит возврату в срок, не позднее чем пять дней со дня поступления уведомления об отзыве заявки. В случае отзыва претендентом заявки позднее даты окончания приема заявок, задаток возвращается в порядке, установленном для участников аукциона.  

Дата признания претендентов участниками аукциона – 05 мая 2016 года в 11 часов 00 минут.

Дата, время и место проведения аукциона: 10 мая 2016 года в 15 часов 00 минут, г. Архангельск, пл. В.И. Ленина, дом 5, 4 этаж, каб. 436;

регистрация участников торгов, получение пронумерованных карточек участника аукциона: г. Архангельск, пл. В.И. Ленина, дом 5, 4 этаж, с 14 час. 30 мин, каб. 434.

Подведение итогов аукциона осуществляется в день его проведения, 10 мая 2016 года, в месте проведения аукциона.

Победителем аукциона признается участник, предложивший в ходе торгов наиболее высокую цену за имущество. Начальная и последующие цены имущества увеличиваются путем увеличения текущей цены на шаг аукциона в размере 5% от начальной цены в фиксированной сумме, не изменяющейся в течение всего аукциона.

Аукцион считается оконченным, если после троекратного объявления аукционистом цены лота ни один из участников аукциона не поднял карточку и не заявил последующую цену.

Аукцион признается несостоявшимся:

а) если участником аукциона признан только один участник;

б) если после троекратного объявления начальной цены продажи ни один из участников аукциона не поднял карточку.

Срок заключения договора купли-продажи: не позднее чем через пять рабочих дней с даты проведения аукциона.

При уклонении или отказе победителя аукциона от заключения в установленный срок договора купли-продажи муниципального имущества, он утрачивает право на заключение указанного договора и задаток ему не возвращается.

Условия и срок платежа по объекту: единовременно, в течение 10 банковских дней со дня заключения договора купли-продажи на расчетный счет Продавца: УФК по Архангельской области и Ненецкому автономному округу (ДМИ), ИНН 2901078408, КПП 290101001, р/с  40101810500000010003 в Отделение Архангельск г. Архангельск, БИК 041117001, КБК 81311402043040000410, ОКТМО 11701000. В счет оплаты засчитывается сумма внесенного задатка.

Законное средство платежа: валюта Российской Федерации.

Суммы задатков возвращаются участникам аукциона, за исключением его победителя, в течение пяти календарных дней со дня подведения итогов аукциона.

Перечень представляемых претендентами документов

и требования к их оформлению:

1. Заявка установленной формы, размещенная на официальных сайтах в сети "Интернет" с описью представленных документов (в 2-х экземплярах).

2. Платежный документ с отметкой банка об исполнении, подтверждающий внесение задатка.

Юридические лица одновременно с заявкой представляют следующие документы:

- заверенные копии учредительных документов;

- документ, содержащий сведения о доле Российской Федерации, субъекта Российской Федерации или муниципального образования в уставном капитале юридического лица (реестр владельцев акций либо выписка из него или заверенное печатью юридического лица (при наличии печати) и подписанное его руководителем письмо);

- документ, который подтверждает полномочия руководителя юридического лица на осуществление действий от имени юридического лица (копия решения о назначении этого лица или о его избрании) и в соответствии с которым руководитель юридического лица обладает правом действовать от имени юридического лица без доверенности;

Физические лица предъявляют документ, удостоверяющий личность, или представляют копии всех его листов.

В случае, если от имени претендента действует его представитель по доверенности, к заявке должна быть приложена доверенность на осуществление действий от имени претендента, оформленная в установленном порядке, или нотариально заверенная копия такой доверенности. В случае, если доверенность на осуществление действий от имени претендента подписана лицом, уполномоченным руководителем юридического лица, заявка должна содержать также документ, подтверждающий полномочия этого лица.

Все листы документов, представляемых одновременно с заявкой, либо отдельные тома данных документов должны быть прошиты, пронумерованы, скреплены печатью претендента (при наличии печати) (для юридического лица) и подписаны претендентом или его представителем.

К данным документам (в том числе к каждому тому) также прилагается их опись. Заявка и такая опись составляются в двух экземплярах, один из которых остается у продавца, другой - у претендента.

На аукцион выставлены:

Лот № 1. Помещение, назначение: нежилое помещение, общая площадь 17,4 кв.м, этаж: 1, кадастровый (или условный) номер: 29:22:040615:1270, адрес объекта: Архангельская область, МО «Город Архангельск», г. Архангельск, Октябрьский территориальный округ, ул. Гайдара, д. 44, помещение.

Характеристика объекта: нежилое помещение находится в десятиэтажном панельном жилом доме со встроенными нежилыми помещениями, год ввода в эксплуатацию – 1990. ФОТО

Распоряжение Администрации муниципального образования «Город Архангельск» о приватизации муниципального имущества от 18.03.2016 № 601р.

Помещение в аренде по договору от 20.10.2015 сроком на 11 месяцев.

Торги по продаже объекта в течение года, предшествующего его продаже, не проводились.

Начальная цена продажи объекта (с учетом НДС)  – 719 000,00 рублей, в том числе НДС – 109 677,97 рубля

Сумма задатка – 143 800,00 рублей. 

Шаг аукциона – 35 950,00 рублей.

Лот № 2. Помещение, назначение: нежилое, общая площадь 153,6 кв.м, этаж: подвал, номера на поэтажном плане 18-21, кадастровый (или условный) номер: 29:22:040752:1271, адрес объекта: Архангельская область, г. Архангельск, Октябрьский территориальный округ, ул.Карла Маркса, д. 12, пом. 9-Н.

Характеристика объекта: нежилое помещение находится в девятиэтажном кирпичном жилом доме со встроенными нежилыми помещениями, год постройки – 1971. ФОТО

Распоряжение Администрации муниципального образования «Город Архангельск» о приватизации муниципального имущества от 18.03.2016 № 600р.

Часть помещения в аренде по договору от 01.06.2006 сроком на 11 месяцев.

Торги по продаже объекта в течение года, предшествующего его продаже, не проводились.

Начальная цена продажи объекта (с учетом НДС)  – 4 696 000,00 рублей, в том числе НДС – 716 338,98 рубля

Сумма задатка – 939 200,00 рублей.

Шаг аукциона – 234 800,00 рублей.

Лот № 3. Помещение, назначение: нежилое, общая площадь 155 кв.м, этаж: подвал, номера на поэтажном плане 26-30, кадастровый (или условный) номер: 29:22:040752:1272, адрес объекта: Архангельская область, г. Архангельск, Октябрьский территориальный округ, ул.Карла Маркса, д. 12, пом. 11-Н.

Характеристика объекта: нежилое помещение находится в девятиэтажном кирпичном жилом доме со встроенными нежилыми помещениями, год постройки – 1971. ФОТО

Распоряжение Администрации муниципального образования «Город Архангельск» о приватизации муниципального имущества от 18.03.2016 № 599р.

Часть помещения в аренде по договору от 01.06.2006 сроком на 11 месяцев.

Торги по продаже объекта в течение года, предшествующего его продаже, не проводились.

Начальная цена продажи объекта (с учетом НДС)  – 4 739 000,00 рублей, в том числе НДС – 722 898,31 рубля

Сумма задатка – 947 800,00 рублей.

Шаг аукциона – 236 950,00 рублей.

Лот № 4. Нежилое помещение, назначение: нежилое, общая площадь 9,8 кв.м, этаж: 1, номер на поэтажном плане 1, кадастровый (или условный) номер: 29:22:000000:0000: 11:401:001:006909260:0000:20001, адрес объекта: Архангельская область, г. Архангельск, территориальный округ Варавино-Фактория, пр. Ленинградский, д. 335, корпус 1.

Характеристика объекта: нежилое помещение находится в пятиэтажном кирпичном жилом доме со встроенно-пристроенными нежилыми помещениями, год ввода в эксплуатацию – 1974. ФОТО, ПЛАН ОБЪЕКТА

Распоряжение Администрации муниципального образования «Город Архангельск» о приватизации муниципального имущества от 18.03.2016 № 593р.

Объект свободен.

Торги по продаже объекта в течение года, предшествующего его продаже, не проводились.

Начальная цена продажи объекта (с учетом НДС)  – 199 000,00 рублей, в том числе НДС – 30 355,93 рубля

Сумма задатка – 39 800,00 рублей. 

Шаг аукциона – 9 950,00 рублей.

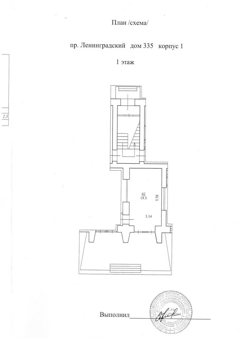
Лот № 5. Помещение, назначение: нежилое, общая площадь 19,3 кв.м, этаж: 1, номер на поэтажном плане 62, кадастровый (или условный) номер: 29-29-01/121/2011-064, адрес объекта: Архангельская область, г. Архангельск, территориальный округ Варавино-Фактория, пр. Ленинградский, д. 335, корп. 1.

Характеристика объекта: нежилое помещение находится в пятиэтажном кирпичном жилом доме со встроенно-пристроенными нежилыми помещениями, год ввода в эксплуатацию – 1974. ФОТО, ПЛАН ОБЪЕКТА

Распоряжение Администрации муниципального образования «Город Архангельск» о приватизации муниципального имущества от 18.03.2016 № 598р.

Объект свободен.

Торги по продаже объекта в течение года, предшествующего его продаже, не проводились.

Начальная цена продажи объекта (с учетом НДС)  – 447 000,00 рублей, в том числе НДС – 68 186,44 рубля

Сумма задатка – 89 400,00 рублей.  

Шаг аукциона – 22 350,00 рублей.

Лот № 6. Нежилое помещение, назначение: нежилое, общая площадь 38 кв.м, этаж: подвал, номера на поэтажном плане 46-49, кадастровый (или условный) номер: 29:22:000000:0000:11:401:001: 002143150:0000:20002, адрес объекта: Архангельская область, г. Архангельск, Ломоносовский территориальный округ, пр. Обводный канал, д. 36.

Характеристика объекта: нежилое помещение находится в пятиэтажном кирпичном жилом доме со встроенными нежилыми помещениями, год ввода в эксплуатацию – 1967. ФОТО, ПЛАН ОБЪЕКТА

Распоряжение Администрации муниципального образования «Город Архангельск» о приватизации муниципального имущества от 18.03.2016 № 597р.

Объект свободен.

Торги по продаже объекта в течение года, предшествующего его продаже, не проводились.

Начальная цена продажи объекта (с учетом НДС)  – 1 199 000,00 рублей, в том числе НДС – 182 898,31 рубля

Сумма задатка – 239 800,00 рублей.  

Шаг аукциона – 59 950,00 рублей.

Лот № 7. Нежилое помещение, назначение: нежилое, общая площадь 38,6 кв.м, этаж: подвал, номер на поэтажном плане 45, кадастровый (или условный) номер: 29:22:000000:0000:11: 401:001:002143150:0000:20003, адрес объекта: Архангельская область, г. Архангельск, Ломоносовский территориальный округ, пр. Обводный канал, д. 36.

Характеристика объекта: нежилое помещение находится в пятиэтажном кирпичном жилом доме со встроенными нежилыми помещениями, год ввода в эксплуатацию – 1967. ФОТО, ПЛАН ОБЪЕКТА

Распоряжение Администрации муниципального образования «Город Архангельск» о приватизации муниципального имущества от 18.03.2016 № 602р.

Объект свободен.

Торги по продаже объекта в течение года, предшествующего его продаже, не проводились.

Начальная цена продажи объекта (с учетом НДС)  – 1 218 000,00 рублей, в том числе НДС – 185 796,61 рубля

Сумма задатка – 243 600,00 рублей. 

Шаг аукциона – 60 900,00 рублей.

Лот № 8. Помещение, назначение: нежилое, общая площадь 96,6 кв.м, этаж: подвал, номера на поэтажном плане 23-25, кадастровый (или условный) номер: 29-29-01/019/2012-108, адрес объекта: Архангельская область, г. Архангельск, Октябрьский территориальный округ, просп. Троицкий, д. 102, пом. 9-Н.

Характеристика объекта: нежилое помещение находится в девятиэтажном кирпичном жилом доме со встроенными нежилыми помещениями, год постройки – 1972. ФОТО

Распоряжение Администрации муниципального образования «Город Архангельск» о приватизации муниципального имущества от 18.03.2016 № 596р.

Объект свободен.

Торги по продаже объекта в течение года, предшествующего его продаже, не проводились.

Начальная цена продажи объекта (с учетом НДС)  – 2 522 000,00 рублей, в том числе НДС – 384 711,86 рубля

Сумма задатка – 504 400,00 рублей.    

Шаг аукциона – 126 100,00 рублей.

Лот № 9. Помещение, назначение: нежилое, общая площадь 77,2 кв.м, этаж: подвал, номера на поэтажном плане 27, 28, кадастровый (или условный) номер: 29-29-01/019/2012-110, адрес объекта: Архангельская область, г. Архангельск, Октябрьский территориальный округ, просп. Троицкий, д. 102, пом. 10-Н.

Характеристика объекта: нежилое помещение находится в девятиэтажном кирпичном жилом доме со встроенными нежилыми помещениями, год постройки – 1972. ФОТО

Распоряжение Администрации муниципального образования «Город Архангельск» о приватизации муниципального имущества от 18.03.2016 № 595р.

Объект свободен.

Торги по продаже объекта в течение года, предшествующего его продаже, не проводились.

Начальная цена продажи объекта (с учетом НДС)  – 2 016 000,00 рублей, в том числе НДС – 307 525,42 рубля

Сумма задатка – 403 200,00 рублей.      

Шаг аукциона – 100 800,00 рублей.

Лот № 10. Нежилое помещение, назначение: нежилое, общая площадь 127 кв.м, этаж: цокольный, номера на поэтажном плане 6-11, кадастровый (или условный) номер: 29:22:000000:0000:11:401:001: 002142790:0000:20003, адрес объекта: Архангельская область, г. Архангельск, Октябрьский территориальный округ, пр. Троицкий, д. 102.

Характеристика объекта: нежилое помещение находится в девятиэтажном кирпичном жилом доме со встроенными нежилыми помещениями, год постройки – 1972. ФОТО

Распоряжение Администрации муниципального образования «Город Архангельск» о приватизации муниципального имущества от 18.03.2016 № 594р.

Объект свободен.

Торги по продаже объекта в течение года, предшествующего его продаже, не проводились.

Начальная цена продажи объекта (с учетом НДС)  – 3 764 000,00 рублей, в том числе НДС – 574 169,49 рубля

Сумма задатка – 752 800,00 рублей.       

Шаг аукциона – 188 200,00 рублей.

Распоряжения

Заявка

Скоро что то будет...
Оцените полезность информации:
Дата публикации документа: 05.04.2016 12:00:32
Последнее изменение: 20.04.2016 16:05:03
Навигация по разделу

Решаем вместе
Не убран мусор, яма на дороге, не горит фонарь? Столкнулись с проблемой — сообщите о ней!