Актуальная информация размещается https://arhcity.gosuslugi.ru/
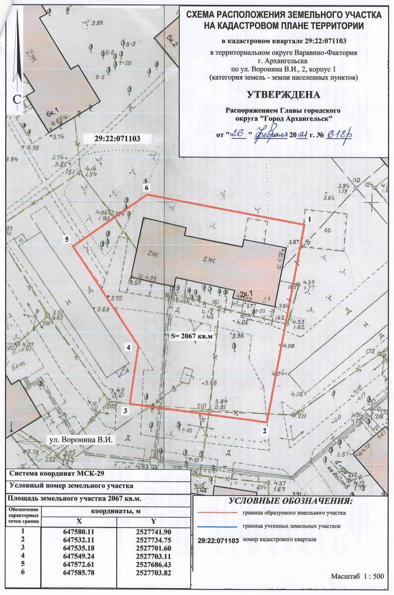
1. Цель изъятия земельного участка для муниципальных нужд – изъятие земельного участка в связи с признанием многоквартирного жилого дома № 2, корпус № 1 по
ул. Воронина В.И. в г. Архангельске аварийным и подлежащим сносу.
2. Адрес месторасположения земельного участка: г. Архангельск, ул. Воронина В.И.,
д. 2, корп. 1. Данный земельный участок расположен в кадастровом квартале 29:22:071103. Утвержденная схема расположения земельного участка:
На данном земельном участке расположены следующие объекты недвижимости:
ул. Воронина В.И., д. 2, корп. 1, кв. 1, кадастровый номер 29:22:071103:306;
ул. Воронина В.И., д. 2, корп. 1, кв. 2, кадастровый номер 29:22:071103:307;
ул. Воронина В.И., д. 2, корп. 1, кв. 3, кадастровый номер 29:22:071103:308;
ул. Воронина В.И., д. 2, корп. 1, кв. 4, кадастровый номер 29:22:071103:312;
ул. Воронина В.И., д. 2, корп. 1, кв. 5, кадастровый номер 29:22:071103:312;
ул. Воронина В.И., д. 2, корп. 1, кв. 11, кадастровый номер 29:22:071103:316.
3. Получить информацию о предполагаемом изъятии земельного участка, указанного в п. 1 настоящего сообщения, и расположенных на нем объектов недвижимого имущества для муниципальных нужд, а также подать заявления об учете прав на земельный участок и иные объекты недвижимого имущества, заинтересованные лица могут по адресу: г. Архангельск, пл. В.И. Ленина, д. 5, каб. 440 тел.(8182) 60-74-68. Заявление на подачу информации может быть подано заинтересованными лицами
в течение 60 дней с момента опубликования настоящего сообщения.
4. Официальный информационный интернет-портал городского округа "Город Архангельск", где размещено настоящее сообщение - www.arhcity.ru. Также настоящее сообщение размещено на информационном стенде у каб. 423, расположенном по адресу: г. Архангельск, пл. В.И. Ленина, д. 5 и в газете "Архангельск - город воинской славы".
5. Уполномоченный орган местного самоуправления, осуществляющий выявление лиц, земельный участок которых подлежит изъятию для муниципальных нужд – Администрация городского округа "Город Архангельск" в лице департамента муниципального имущества Администрации городского округа "Город Архангельск".
Последнее изменение: 23.08.2022 10:10:16
- Отдел реестра и учета муниципального имущества
- Процедура изъятия для муниципальных нужд
- Сообщение о планируемом изъятии земельного участка для муниципальных нужд по адресу: г. Архангельск, пр. К.С. Бадигина, д. 12.
- Сообщение о планируемом изъятии земельного участка для муниципальных нужд по адресу: г. Архангельск, ул. Выучейского, д. 96
- Сообщение о планируемом изъятии земельного участка для муниципальных нужд по адресу: г. Архангельск, ул. Розы Люксембург, д. 56.
- Сообщение о планируемом изъятии земельного участка для муниципальных нужд по адресу: г. Архангельск, ул. Колхозная, д. 7, корп. 1.
- Сообщение о планируемом изъятии земельного участка для муниципальных нужд по адресу: г. Архангельск, ул. Юнг Военно-Морского Флота, д. 65.
- Сообщение о планируемом изъятии земельного участка для муниципальных нужд по адресу: г. Архангельск, ул. Кольская, д. 17.
- Сообщение о планируемом изъятии земельного участка для муниципальных нужд по адресу: г. Архангельск, ул. Шилова, д. 5.
- Сообщение о планируемом изъятии земельного участка для муниципальных нужд по адресу: г. Архангельск, ул. Севстрой, д. 58.
- Сообщение о планируемом изъятии земельного участка для муниципальных нужд по адресу: г. Архангельск, ул. Трамвайная, д. 1.
- Сообщение о планируемом изъятии земельного участка для муниципальных нужд по адресу: г. Архангельск, ул. Турдеевская, д. 9.
- Сообщение о планируемом изъятии земельного участка для муниципальных нужд по адресу: г. Архангельск, ул. Тяговая, д. 36.
- Сообщение о планируемом изъятии земельного участка для муниципальных нужд по адресу: г. Архангельск, ул. Исток, д. 16.
- Сообщение о планируемом изъятии земельного участка для муниципальных нужд по адресу: г. Архангельск, просп. Ленинградский, д. 383.
- Сообщение о планируемом изъятии земельного участка для муниципальных нужд по адресу: г. Архангельск, ул. Зеленец, д. 32.
- Сообщение о планируемом изъятии земельного участка для муниципальных нужд по адресу: г. Архангельск, ул. Баумана, д. 20.
- Сообщение о планируемом изъятии земельного участка для муниципальных нужд по адресу: г. Архангельск, ул. Михаила Новова, д. 3.
- Сообщение о планируемом изъятии земельного участка для муниципальных нужд по адресу: г. Архангельск, ул. Юнг Военно-Морского Флота, д. 70.
- Сообщение о планируемом изъятии земельного участка для муниципальных нужд по адресу: г. Архангельск, ул. Кольская, д. 22.
- Сообщение о планируемом изъятии земельного участка для муниципальных нужд по адресу: г. Архангельск, ул. Локомотивная, д. 47.
- Сообщение о планируемом изъятии земельного участка для муниципальных нужд по адресу: г. Архангельск, ул. Динамо, д. 35.
- Сообщение о планируемом изъятии земельного участка для муниципальных нужд по адресу: г. Архангельск, ул. Красина, д. 11.
- Сообщение о планируемом изъятии земельного участка для муниципальных нужд по адресу: г. Архангельск, ул. Привокзальная, д. 16.
- Сообщение о планируемом изъятии земельного участка для муниципальных нужд по адресу: г. Архангельск, ул. Воронина В.И., д. 6, корп. 1.
- Сообщение о планируемом изъятии земельного участка для муниципальных нужд по адресу: г. Архангельск, ул. Мудьюгская, д. 4.
- Сообщение о планируемом изъятии земельного участка для муниципальных нужд по адресу: г. Архангельск, ул. Дружбы, д. 12.
- Сообщение о планируемом изъятии земельного участка для муниципальных нужд по адресу: г. Архангельск, ул. Зеленая, д. 5.
- Сообщение о планируемом изъятии земельного участка для муниципальных нужд по адресу: г. Архангельск, ул. Динамо, д. 20.
- Сообщение о планируемом изъятии земельного участка для муниципальных нужд по адресу: г. Архангельск, ул. Розы Люксембург, д. 60.
- Сообщение о планируемом изъятии земельного участка для муниципальных нужд по адресу: г. Архангельск, ул. Кольская, д. 10.
- Сообщение о планируемом изъятии земельного участка для муниципальных нужд по адресу: г. Архангельск, ул. Фрунзе, д. 27.
- Сообщение о планируемом изъятии земельного участка для муниципальных нужд по адресу: г. Архангельск, ул. Колхозная, д. 13.
- Сообщение о планируемом изъятии земельного участка для муниципальных нужд по адресу: г. Архангельск, ул. Маймаксанская, д. 73.
- Сообщение о планируемом изъятии земельного участка для муниципальных нужд по адресу: г. Архангельск, ул. Котовского, д. 13, корп. 1.
- Сообщение о планируемом изъятии земельного участка для муниципальных нужд по адресу: г. Архангельск, ул. Парковая, д. 11.
- Сообщение о планируемом изъятии земельного участка для муниципальных нужд по адресу: г. Архангельск, ул. Кедрова, д. 39.
- Сообщение о планируемом изъятии земельного участка для муниципальных нужд по адресу: г. Архангельск, ул. Анощенкова А.И., д. 3.
- Сообщение о планируемом изъятии земельного участка для муниципальных нужд по адресу: г. Архангельск, ул. Володарского, д. 53.
- Сообщение о планируемом изъятии земельного участка для муниципальных нужд по адресу: г. Архангельск, ул. Динамо, д. 4.
- Сообщение о планируемом изъятии земельного участка для муниципальных нужд по адресу: г. Архангельск, ул. Юнг Военно-Морского Флота, д. 35, корп. 1.
- Сообщение о планируемом изъятии земельного участка для муниципальных нужд по адресу: г. Архангельск, ул. Юнг Военно-Морского Флота, д. 21, корп. 1.
- Сообщение о планируемом изъятии земельного участка для муниципальных нужд по адресу: г. Архангельск, ул. Ленинская, д. 7.
- Сообщение о планируемом изъятии земельного участка для муниципальных нужд по адресу: г. Архангельск, ул. Ленинская, д. 10.
- Сообщение о планируемом изъятии земельного участка для муниципальных нужд по адресу: г. Архангельск, ул. Пионерская, д. 150.
- Сообщение о планируемом изъятии земельного участка для муниципальных нужд по адресу: г. Архангельск, ул. Декабристов, д. 26.
- Сообщение о планируемом изъятии земельного участка для муниципальных нужд по адресу: г. Архангельск, ул. Динамо, д. 56.
- Сообщение о планируемом изъятии земельного участка для муниципальных нужд по адресу: г. Архангельск, ул. Юнг Военно-Морского Флота, д. 74.
- Сообщение о планируемом изъятии земельного участка для муниципальных нужд по адресу: г. Архангельск, ул. Зеньковича, д. 32.
- Сообщение о планируемом изъятии земельного участка для муниципальных нужд по адресу: г. Архангельск, ул. Заводская, д. 99, корп. 1.
- Сообщение о планируемом изъятии земельного участка для муниципальных нужд по адресу: г. Архангельск, ул. Адмирала Макарова, д. 37.
- Сообщение о планируемом изъятии земельного участка для муниципальных нужд по адресу: г. Архангельск, ул. Котовского, д. 7, корп. 1.
- Сообщение о планируемом изъятии земельного участка для муниципальных нужд по адресу: г. Архангельск, пер. Двинской, д. 10.
- Сообщение о планируемом изъятии земельного участка для муниципальных нужд по адресу: г. Архангельск, ул. Льва Толстого, д. 27.
- Сообщение о планируемом изъятии земельного участка для муниципальных нужд по адресу: г. Архангельск, ул. Лесоэкспортная, д. 6.
- Сообщение о планируемом изъятии земельного участка для муниципальных нужд по адресу: г. Архангельск, просп. Московский, д. 19.
- Сообщение о планируемом изъятии земельного участка для муниципальных нужд по адресу: г. Архангельск, ул. Победы, д. 104.
- Сообщение о планируемом изъятии земельного участка для муниципальных нужд по адресу: г. Архангельск, ул. Мезенская, д. 12.
- Сообщение о планируемом изъятии земельного участка для муниципальных нужд по адресу: г. Архангельск, ул. Декабристов, д. 15.
- Сообщение о планируемом изъятии земельного участка для муниципальных нужд по адресу: г. Архангельск, ул. Вологодская, д. 14
- Сообщение о планируемом изъятии земельного участка для муниципальных нужд по адресу: г. Архангельск, ул. Гагарина, д. 57, корп. 1
- Сообщение о планируемом изъятии земельного участка для муниципальных нужд по адресу: г. Архангельск, ул. Кедрова, д. 37, корп. 2.
- Сообщение о планируемом изъятии земельного участка для муниципальных нужд по адресу: г. Архангельск, ул. Аллейная, д. 15.
- Сообщение о планируемом изъятии земельного участка для муниципальных нужд по адресу: г. Архангельск, ул. Адмирала Макарова, д. 34.
- Сообщение о планируемом изъятии земельного участка для муниципальных нужд по адресу: г. Архангельск, ул. Приморская, д. 10.
- Сообщение о планируемом изъятии земельного участка для муниципальных нужд по адресу: г. Архангельск, просп. Советских космонавтов, д. 84.
- Сообщение о планируемом изъятии земельного участка для муниципальных нужд по адресу: г. Архангельск, ул. Литейная, д. 7.
- Сообщение о планируемом изъятии земельного участка для муниципальных нужд по адресу: г. Архангельск, просп. Обводный канал, д. 26, корп. 3.
- Сообщение о планируемом изъятии земельного участка для муниципальных нужд по адресу: г. Архангельск, ул. Красина, д. 15.
- Сообщение о планируемом изъятии земельного участка для муниципальных нужд по адресу: г. Архангельск, ул. Беломорская, д. 36.
- Сообщение о планируемом изъятии земельного участка для муниципальных нужд по адресу: г. Архангельск, ул. Красных партизан, д. 30.
- Сообщение о планируемом изъятии земельного участка для муниципальных нужд по адресу: г. Архангельск, ул. Пограничная, д. 17.
- Сообщение о планируемом изъятии земельного участка для муниципальных нужд по адресу: г. Архангельск, ул. Юнг Военно-Морского Флота, д. 69.
- Сообщение о планируемом изъятии земельного участка для муниципальных нужд по адресу: г. Архангельск, ул. Ярославская, д. 52.
- Сообщение о планируемом изъятии земельного участка для муниципальных нужд по адресу: г. Архангельск, ул. Локомотивная, д. 7.
- Сообщение о планируемом изъятии земельного участка для муниципальных нужд по адресу: г. Архангельск, ул. Петра Стрелкова, д. 13.
- Сообщение о планируемом изъятии земельного участка для муниципальных нужд по адресу: г. Архангельск, ул. Г. Суфтина, д. 37.
- Сообщение о планируемом изъятии земельного участка для муниципальных нужд по адресу: г. Архангельск, ул. Мудьюгская, д. 26.
- Сообщение о планируемом изъятии земельного участка для муниципальных нужд по адресу: г. Архангельск, ул. Театральная, д. 53.
- Сообщение о планируемом изъятии земельного участка для муниципальных нужд по адресу: г. Архангельск, ул. Колхозная, д. 31.
- Сообщение о планируемом изъятии земельного участка для муниципальных нужд по адресу: г. Архангельск, ул. Куйбышева, д. 1, корп. 1.
- Сообщение о планируемом изъятии земельного участка для муниципальных нужд по адресу: г. Архангельск, ул. Пограничная, д. 19.
- Сообщение о планируемом изъятии земельного участка для муниципальных нужд по адресу: г. Архангельск, ул. Петра Стрелкова, д. 6, корп. 1.
- Сообщение о планируемом изъятии земельного участка для муниципальных нужд по адресу: г. Архангельск, ул. Фрунзе, д. 30.
- Сообщение о планируемом изъятии земельного участка для муниципальных нужд по адресу: г. Архангельск, ул. Приморская, д. 21, корп. 1.
- Сообщение о планируемом изъятии земельного участка для муниципальных нужд по адресу: г. Архангельск, ул. Юнг Военно-Морского Флота, д. 15, корп. 1.
- Сообщение о планируемом изъятии земельного участка для муниципальных нужд по адресу: г. Архангельск, ул. Мира, д. 2.
- Сообщение о планируемом изъятии земельного участка для муниципальных нужд по адресу: г. Архангельск, ул. Адмирала Кузнецова, д. 22.
- Сообщение о планируемом изъятии земельного участка для муниципальных нужд по адресу: г. Архангельск, ул. Колхозная, д. 24.
- Сообщение о планируемом изъятии земельного участка для муниципальных нужд по адресу: г. Архангельск, ул. Целлюлозная, д. 15.
- Сообщение о планируемом изъятии земельного участка для муниципальных нужд по адресу: г. Архангельск, ул. Целлюлозная, д. 13.
- Сообщение о планируемом изъятии земельного участка для муниципальных нужд по адресу: г. Архангельск, ул. Юнг Военно-Морского Флота, д. 71.
- Сообщение о планируемом изъятии земельного участка для муниципальных нужд по адресу: г. Архангельск, ул. Валявкина, д. 34.
- Сообщение о планируемом изъятии земельного участка для муниципальных нужд по адресу: г. Архангельск, ул. Почтовая, д. 7.
- Сообщение о планируемом изъятии земельного участка для муниципальных нужд по адресу: г. Архангельск, ул. Победы, д. 40.
- Сообщение о планируемом изъятии земельного участка для муниципальных нужд по адресу: г. Архангельск, ул. Квартальная, д. 9, корп. 1.
- Сообщение о планируемом изъятии земельного участка для муниципальных нужд по адресу: г. Архангельск, ул. Адмирала Макарова, д. 6, корп. 1.
- Сообщение о планируемом изъятии земельного участка для муниципальных нужд по адресу: г. Архангельск, ул. Октябрьская, д. 17.
- Сообщение о планируемом изъятии земельного участка для муниципальных нужд по адресу: г. Архангельск, ул. Логинова, д. 78, корп. 1
- Сообщение о планируемом изъятии земельного участка для муниципальных нужд по адресу: г. Архангельск, ул. Трамвайная, д. 6.
- Сообщение о планируемом изъятии земельного участка для муниципальных нужд по адресу: г. Архангельск, ул. Таёжная, д. 14, корп. 1.
- Сообщение о планируемом изъятии земельного участка для муниципальных нужд по адресу: г. Архангельск, ул. Победы, д. 34.
- Сообщение о планируемом изъятии земельного участка для муниципальных нужд по адресу: г. Архангельск, ул. Воронина В.И., д. 12, корп. 1.
- Сообщение о планируемом изъятии земельного участка для муниципальных нужд по адресу: г. Архангельск, ул. Михаила Новова, д. 19.
- Сообщение о планируемом изъятии земельного участка для муниципальных нужд по адресу: г. Архангельск, ул. Речников, д. 33, корп. 2.
- Сообщение о планируемом изъятии земельного участка для муниципальных нужд по адресу: г. Архангельск, ул. Динамо, д. 14.
- Сообщение о планируемом изъятии земельного участка для муниципальных нужд по адресу: г. Архангельск, ул. Пионерская, д. 156.
- Сообщение о планируемом изъятии земельного участка для муниципальных нужд по адресу: г. Архангельск, ул. Победы, д. 138.
- Сообщение о планируемом изъятии земельного участка для муниципальных нужд по адресу: г. Архангельск, ул. Кемская, д. 5.
- Сообщение о планируемом изъятии земельного участка для муниципальных нужд по адресу: г. Архангельск, ул. Петрозаводская, д. 11.
- Сообщение о планируемом изъятии земельного участка для муниципальных нужд по адресу: г. Архангельск, ул. Гвардейская, д. 12.
- Сообщение о планируемом изъятии земельного участка для муниципальных нужд по адресу: г. Архангельск, ул. Пирсовая, д. 63.
- Сообщение о планируемом изъятии земельного участка для муниципальных нужд по адресу: г. Архангельск, ул. Дрейера, д. 55, корп. 1.
- Сообщение о планируемом изъятии земельного участка для муниципальных нужд по адресу: г. Архангельск, ул. Пушкинская, д. 5.
- Сообщение о планируемом изъятии земельного участка для муниципальных нужд по адресу: г. Архангельск, ул. Ильича, д. 33, корп. 1.
- Сообщение о планируемом изъятии земельного участка для муниципальных нужд по адресу: г. Архангельск, ул. Ударников, д. 2, корп. 1.
- Сообщение о планируемом изъятии земельного участка для муниципальных нужд по адресу: г. Архангельск, ул. Юнг Военно-Морского Флота, д. 45.
- Сообщение о планируемом изъятии земельного участка для муниципальных нужд по адресу: г. Архангельск, ул. Зеньковича, д. 16.
- Сообщение о планируемом изъятии земельного участка для муниципальных нужд по адресу: г. Архангельск, ул. Декабристов, д. 9.
- Сообщение о планируемом изъятии земельного участка для муниципальных нужд по адресу: г. Архангельск, ул. Гвардейская, д. 7, корп. 1.
- Сообщение о планируемом изъятии земельного участка для муниципальных нужд по адресу: г. Архангельск, ул. Пограничная, д. 24.
- Сообщение о планируемом изъятии земельного участка для муниципальных нужд по адресу: г. Архангельск, ул. Адмирала Макарова, д. 5.
- Сообщение о планируемом изъятии земельного участка для муниципальных нужд по адресу: г. Архангельск, ул. Володарского, д. 76.
- Сообщение о планируемом изъятии земельного участка для муниципальных нужд по адресу: г. Архангельск, ул. Адмирала Кузнецова, д. 21.
- Сообщение о планируемом изъятии земельного участка для муниципальных нужд по адресу: г. Архангельск, просп. Советских космонавтов, д. 37, корп. 3.
- Сообщение о планируемом изъятии земельного участка для муниципальных нужд по адресу: г. Архангельск, ул. Орджоникидзе, д. 19.
- Сообщение о планируемом изъятии земельного участка для муниципальных нужд по адресу: г. Архангельск, ул. Зеньковича, д. 56.
- Сообщение о планируемом изъятии земельного участка для муниципальных нужд по адресу: г. Архангельск, ул. Физкультурников, д. 33.
- Сообщение о планируемом изъятии земельного участка для муниципальных нужд по адресу: г. Архангельск, ул. Левобережная, д. 7.
- Сообщение о планируемом изъятии земельного участка для муниципальных нужд по адресу: г. Архангельск, ул. Баумана, д. 18.
- Сообщение о планируемом изъятии земельного участка для муниципальных нужд по адресу: г. Архангельск, ул. Баумана, д. 25.
- Сообщение о планируемом изъятии земельного участка для муниципальных нужд по адресу: г. Архангельск, ул. Баумана, д. 12.
- Сообщение о планируемом изъятии земельного участка для муниципальных нужд по адресу: г. Архангельск, ул. Советская, д. 54.
- Сообщение о планируемом изъятии земельного участка для муниципальных нужд по адресу: г. Архангельск, ул. Урицкого, д. 37.
- Сообщение о планируемом изъятии земельного участка для муниципальных нужд по адресу: г. Архангельск, ул. Орджоникидзе, д. 3.
- Сообщение о планируемом изъятии земельного участка для муниципальных нужд по адресу: г. Архангельск, ул. Матросова, д. 2.
- Сообщение о планируемом изъятии земельного участка для муниципальных нужд по адресу: г. Архангельск, ул. Адмирала Макарова, д. 11, корп. 3.
- Сообщение о планируемом изъятии земельного участка для муниципальных нужд по адресу: г. Архангельск, ул. Тыко Вылки, д. 2.
- Сообщение о планируемом изъятии земельного участка для муниципальных нужд по адресу: г. Архангельск, ул. Вычегодская, д. 13.
- Сообщение о планируемом изъятии земельного участка для муниципальных нужд по адресу: г. Архангельск, ул. Адмирала Макарова, д. 3, корп. 2.
- Сообщение о планируемом изъятии земельного участка для муниципальных нужд по адресу: г. Архангельск, ул. Адмирала Макарова, д. 2, корп. 2.
- Сообщение о планируемом изъятии земельного участка для муниципальных нужд по адресу: г. Архангельск, ул. Павла Усова, д. 13.
- Сообщение о планируемом изъятии земельного участка для муниципальных нужд по адресу: г. Архангельск, ул. Баумана, д. 12, корп. 3.
- Сообщение о планируемом изъятии земельного участка для муниципальных нужд по адресу: г. Архангельск, ул. Привокзальная, д. 17.
- Сообщение о планируемом изъятии земельного участка для муниципальных нужд по адресу: г. Архангельск, ул. Квартальная, д. 3.
- Сообщение о планируемом изъятии земельного участка для муниципальных нужд по адресу: г. Архангельск, просп. Ленинградский, д. 336.
- Сообщение о планируемом изъятии земельного участка для муниципальных нужд по адресу: г. Архангельск, ул. Приморская, д. 14.
- Сообщение о планируемом изъятии земельного участка для муниципальных нужд по адресу: г. Архангельск, ул. Победы, д. 38.
- Сообщение о планируемом изъятии земельного участка для муниципальных нужд по адресу: г. Архангельск, ул. Первомайская, д. 25, корп. 1.
- Сообщение о планируемом изъятии земельного участка для муниципальных нужд по адресу: г. Архангельск, ул. Гуляева, д. 120, корп. 2.
- Сообщение о планируемом изъятии земельного участка для муниципальных нужд по адресу: г. Архангельск, ул. Дачная, д. 64.
- Сообщение о планируемом изъятии земельного участка для муниципальных нужд по адресу: г. Архангельск, ул. Турдеевская, д. 10.
- Сообщение о планируемом изъятии земельного участка для муниципальных нужд по адресу: г. Архангельск, ул. Энтузиастов, д. 46.
- Сообщение о планируемом изъятии земельного участка для муниципальных нужд по адресу: г. Архангельск, ул. Карельская, д. 49
- Сообщение о планируемом изъятии земельного участка для муниципальных нужд по адресу: г. Архангельск, ул. Володарского, д. 82.
- Сообщение о планируемом изъятии земельного участка для муниципальных нужд по адресу: г. Архангельск, ул. Г.Суфтина, д. 21.
- Сообщение о планируемом изъятии земельного участка для муниципальных нужд по адресу: г. Архангельск, ул. Дружбы, д. 26.
- Сообщение о планируемом изъятии земельного участка для муниципальных нужд по адресу: г. Архангельск, ул. Павла Усова, д. 11.
- Сообщение о планируемом изъятии земельного участка для муниципальных нужд по адресу: г. Архангельск, просп. Ломоносова, д. 213.
- Сообщение о планируемом изъятии земельного участка для муниципальных нужд по адресу: г. Архангельск, ул. Орджоникидзе, д. 13.
- Сообщение о планируемом изъятии земельного участка для муниципальных нужд по адресу: г. Архангельск, ул. Ильича, д. 46.
- Сообщение о планируемом изъятии земельного участка для муниципальных нужд по адресу: г. Архангельск, ул. Победы, д. 15.
- Сообщение о планируемом изъятии земельного участка для муниципальных нужд по адресу: г. Архангельск, ул. Юнг Военно-Морского Флота, д. 76.
- Сообщение о планируемом изъятии земельного участка для муниципальных нужд по адресу: г. Архангельск, ул. Теснанова, д. 18.
- Сообщение о планируемом изъятии земельного участка для муниципальных нужд по адресу: г. Архангельск, ул. Гуляева, д. 120, корп. 4.
- Сообщение о планируемом изъятии земельного участка для муниципальных нужд по адресу: г. Архангельск, ул. Аллейная, д. 17.
- Сообщение о планируемом изъятии земельного участка для муниципальных нужд по адресу: г. Архангельск, ул. Лермонтова, д. 27, корп. 1.
- Сообщение о планируемом изъятии земельного участка для муниципальных нужд по адресу: г. Архангельск, ул. Зеньковича, д. 34.
- Сообщение о планируемом изъятии земельного участка для муниципальных нужд по адресу: г. Архангельск, ул. Физкультурников, д. 35.
- Сообщение о планируемом изъятии земельного участка для муниципальных нужд по адресу: г. Архангельск, ул. Трамвайная, д. 7.
- Сообщение о планируемом изъятии земельного участка для муниципальных нужд по адресу: г. Архангельск, ул. Зеньковича, д. 28.
- Сообщение о планируемом изъятии земельного участка для муниципальных нужд по адресу: г. Архангельск, ул. Партизанская, д. 38.
- Сообщение о планируемом изъятии земельного участка для муниципальных нужд по адресу: г. Архангельск, ул. Лермонтова, д. 21.
- Сообщение о планируемом изъятии земельного участка для муниципальных нужд по адресу: г. Архангельск, ул. Красных маршалов, д. 6.
- Сообщение о планируемом изъятии земельного участка для муниципальных нужд по адресу: г. Архангельск, ул. Таежная, д. 15.
- Сообщение о планируемом изъятии земельного участка для муниципальных нужд по адресу: г. Архангельск, ул. Ударников, д. 21.
- Сообщение о планируемом изъятии земельного участка для муниципальных нужд по адресу: г. Архангельск, ул. Речников, д. 37.
- Сообщение о планируемом изъятии земельного участка для муниципальных нужд по адресу: г. Архангельск, ул. Михаила Новова, д. 21.
- Сообщение о планируемом изъятии земельного участка для муниципальных нужд по адресу: г. Архангельск, просп. Обводный канал, д. 88.
- Сообщение о планируемом изъятии земельного участка для муниципальных нужд по адресу: г. Архангельск, ул. Павла Усова, д. 9.
- Сообщение о планируемом изъятии земельного участка для муниципальных нужд по адресу: г. Архангельск, ул. Сольвычегодская, д. 15.
- Сообщение о планируемом изъятии земельного участка для муниципальных нужд по адресу: г. Архангельск, ул. Колхозная, д. 18.
- Сообщение о планируемом изъятии земельного участка для муниципальных нужд по адресу: г. Архангельск, ул. Красных партизан, д. 4.
- Сообщение о планируемом изъятии земельного участка для муниципальных нужд по адресу: г. Архангельск, ул. Транспортная, д. 9, корп. 1.
- Сообщение о планируемом изъятии земельного участка для муниципальных нужд по адресу: г. Архангельск, ул. Литейная, д. 3.
- Сообщение о планируемом изъятии земельного участка для муниципальных нужд по адресу: г. Архангельск, ул. Физкультурников, д. 42, корп. 2.
- Сообщение о планируемом изъятии земельного участка для муниципальных нужд по адресу: г. Архангельск, ул. Пограничная, д. 6.
- Сообщение о планируемом изъятии земельного участка для муниципальных нужд по адресу: г. Архангельск, ул. Онежская, д. 24.
- Сообщение о планируемом изъятии земельного участка для муниципальных нужд по адресу: г. Архангельск, ул. Цигломенская, д. 23.
- Сообщение о планируемом изъятии земельного участка для муниципальных нужд по адресу: г. Архангельск, ул. Приморская, д. 21.
- Сообщение о планируемом изъятии земельного участка для муниципальных нужд по адресу: г. Архангельск, ул. Ярославская, д. 14.
- Сообщение о планируемом изъятии земельного участка для муниципальных нужд по адресу: г. Архангельск, ул. Логинова, д. 72, корп. 1
- Сообщение о планируемом изъятии земельного участка для муниципальных нужд по адресу: г. Архангельск, ул. Полины Осипенко, д. 26.
- Сообщение о планируемом изъятии земельного участка для муниципальных нужд по адресу: г. Архангельск, ул. Первомайская, д. 17, корп. 5.
- Сообщение о планируемом изъятии земельного участка для муниципальных нужд по адресу: г. Архангельск, ул. Ильича, д. 39.
- Сообщение о планируемом изъятии земельного участка для муниципальных нужд по адресу: г. Архангельск, ул. Ударников, д. 8.
- Сообщение о планируемом изъятии земельного участка для муниципальных нужд по адресу: г. Архангельск, ул. Гуляева, д. 116, корп. 1.
- Сообщение о планируемом изъятии земельного участка для муниципальных нужд по адресу: г. Архангельск, ул. Бергавинова, д. 7.
- Сообщение о планируемом изъятии земельного участка для муниципальных нужд по адресу: г. Архангельск, ул. Воронина В.И., д. 8.
- Сообщение о планируемом изъятии земельного участка для муниципальных нужд по адресу: г. Архангельск, ул. Проезжая, д. 19.
- Сообщение о планируемом изъятии земельного участка для муниципальных нужд по адресу: г. Архангельск, ул. Выучейского, д. 72.
- Сообщение о планируемом изъятии земельного участка для муниципальных нужд по адресу: г. Архангельск, ул. Лодемская, д. 51, корп. 1.
- Сообщение о планируемом изъятии земельного участка для муниципальных нужд по адресу: г. Архангельск, ул. Кирпичного завода, д. 15.
- Сообщение о планируемом изъятии земельного участка для муниципальных нужд по адресу: г. Архангельск, ул. Михаила Новова, д. 20.
- Сообщение о планируемом изъятии земельного участка для муниципальных нужд по адресу: г. Архангельск, ул. Николая Островского, д. 1.
- Сообщение о планируемом изъятии земельного участка для муниципальных нужд по адресу: г. Архангельск, ул. Николая Островского, д. 9.
- Сообщение о планируемом изъятии земельного участка для муниципальных нужд по адресу: г. Архангельск, ул. Гвардейская, д. 11.
- Сообщение о планируемом изъятии земельного участка для муниципальных нужд по адресу: г. Архангельск, ул. Мещерского, д. 10.
- Сообщение о планируемом изъятии земельного участка для муниципальных нужд по адресу: г. Архангельск, просп. Ленинградский, д. 363.
- Сообщение о планируемом изъятии земельного участка для муниципальных нужд по адресу: г. Архангельск, ул. Зеленец, д. 5.
- Сообщение о планируемом изъятии земельного участка для муниципальных нужд по адресу: г. Архангельск, ул. Юнг Военно-Морского Флота, д. 20.
- Сообщение о планируемом изъятии земельного участка для муниципальных нужд по адресу: г. Архангельск, ул. Юнг Военно-Морского Флота, д. 75.
- Сообщение о планируемом изъятии земельного участка для муниципальных нужд по адресу: г. Архангельск, ул. Мира, д. 18.
- Сообщение о планируемом изъятии земельного участка для муниципальных нужд по адресу: г. Архангельск, ул. Полины Осипенко, д. 28.
- Сообщение о планируемом изъятии земельного участка для муниципальных нужд по адресу: г. Архангельск, просп. Обводный канал, д. 123.
- Сообщение о планируемом изъятии земельного участка для муниципальных нужд по адресу: г. Архангельск, ул. Чкалова, д. 16, корп. 1.
- Сообщение о планируемом изъятии земельного участка для муниципальных нужд по адресу: г. Архангельск, ул. Революции, д. 27.
- Сообщение о планируемом изъятии земельного участка для муниципальных нужд по адресу: г. Архангельск, ул. Ярославская, д. 77.
- Сообщение о планируемом изъятии земельного участка для муниципальных нужд по адресу: г. Архангельск, ул. Октябрят, д. 22.
- Сообщение о планируемом изъятии земельного участка для муниципальных нужд по адресу: г. Архангельск, ул. Логинова, д. 70
- Сообщение о планируемом изъятии земельного участка для муниципальных нужд по адресу: г. Архангельск, пер. Водников, д. 7
- Сообщение о планируемом изъятии земельного участка для муниципальных нужд по адресу: г. Архангельск, просп. Обводный канал, д. 24.
- Сообщение о планируемом изъятии земельного участка для муниципальных нужд по адресу: г. Архангельск, ул. Холмогорская, д. 35, корп. 1.
- Сообщение о планируемом изъятии земельного участка для муниципальных нужд по адресу: г. Архангельск, ул. Гидролизная, д. 8.
- Сообщение о планируемом изъятии земельного участка для муниципальных нужд по адресу: г. Архангельск, ул. Адмирала Кузнецова, д. 28.
- Сообщение о планируемом изъятии земельного участка для муниципальных нужд по адресу: г. Архангельск, ул. Байкальская, д. 2.
- Сообщение о планируемом изъятии земельного участка для муниципальных нужд по адресу: г. Архангельск, ул. Михаила Новова, д. 23.
- Сообщение о планируемом изъятии земельного участка для муниципальных нужд по адресу: г. Архангельск, ул. Репина, д. 7.
- Сообщение о планируемом изъятии земельного участка для муниципальных нужд по адресу: г. Архангельск, ул. Дружбы, д. 35.
- Сообщение о планируемом изъятии земельного участка для муниципальных нужд по адресу: г. Архангельск, ул. Советская, д. 44, корп. 2.
- Сообщение о планируемом изъятии земельного участка для муниципальных нужд по адресу: г. Архангельск, ул. Серафимовича, д. 71.
- Сообщение о планируемом изъятии земельного участка для муниципальных нужд по адресу: г. Архангельск, ул. Победы, д. 132.
- Сообщение о планируемом изъятии земельного участка для муниципальных нужд по адресу: г. Архангельск, ул. Пионерская, д. 155.
- Сообщение о планируемом изъятии земельного участка для муниципальных нужд по адресу: г. Архангельск, ул. Революции, д. 29, корп. 1.
- Сообщение о планируемом изъятии земельного участка для муниципальных нужд по адресу: г. Архангельск, ул. Динамо, д. 9.
- Сообщение о планируемом изъятии земельного участка для муниципальных нужд по адресу: г. Архангельск, ул. Маслова, д. 14, корп. 2.
- Сообщение о планируемом изъятии земельного участка для муниципальных нужд по адресу: г. Архангельск, ул. Привокзальная, д. 12.
- Сообщение о планируемом изъятии земельного участка для муниципальных нужд по адресу: г. Архангельск, ул. Петрозаводская, д. 16, корп. 1.
- Сообщение о планируемом изъятии земельного участка для муниципальных нужд по адресу: г. Архангельск, ул. Адмирала Кузнецова, д. 21, корп. 1.
- Сообщение о планируемом изъятии земельного участка для муниципальных нужд по адресу: г. Архангельск, ул. Ильича, д. 44
- Сообщение о планируемом изъятии земельного участка для муниципальных нужд по адресу: г. Архангельск, ул. Партизанская, д. 41.
- Сообщение о планируемом изъятии земельного участка для муниципальных нужд по адресу: г. Архангельск, ул. Островная, д. 5.
- Сообщение о планируемом изъятии земельного участка для муниципальных нужд по адресу: г. Архангельск, просп. Обводный канал, д. 90.
- Сообщение о планируемом изъятии земельного участка для муниципальных нужд по адресу: г. Архангельск, ул. Дачная, д. 4.
- Сообщение о планируемом изъятии земельного участка для муниципальных нужд по адресу: г. Архангельск, ул. Транспортная, д. 10.
- Сообщение о планируемом изъятии земельного участка для муниципальных нужд по адресу: г. Архангельск, ул. Победы, д. 132, корп. 1.
- Сообщение о планируемом изъятии земельного участка для муниципальных нужд по адресу: г. Архангельск, ул. Циолковского, д. 15.
- Сообщение о планируемом изъятии земельного участка для муниципальных нужд по адресу: г. Архангельск, просп. Ломоносова, д. 59, корп. 1
- Сообщение о планируемом изъятии земельного участка для муниципальных нужд по адресу: г. Архангельск, ул. Островная, д. 1.
- Сообщение о планируемом изъятии земельного участка для муниципальных нужд по адресу: г. Архангельск, ул. Доковская, д. 3
- Сообщение о планируемом изъятии земельного участка для муниципальных нужд по адресу: г. Архангельск, ул. Чкалова, д. 19.
- Сообщение о планируемом изъятии земельного участка для муниципальных нужд по адресу: г. Архангельск, ул. Победы, д. 18, корп. 3.
- Сообщение о планируемом изъятии земельного участка для муниципальных нужд по адресу: г. Архангельск, ул. Розы Люксембург, д. 50, корп. 1
- Сообщение о планируемом изъятии земельного участка для муниципальных нужд по адресу: г. Архангельск, ул. Физкультурников, д. 38.
- Сообщение о планируемом изъятии земельного участка для муниципальных нужд по адресу: г. Архангельск, ул. Декабристов, д. 12.
- Сообщение о планируемом изъятии земельного участка для муниципальных нужд по адресу: г. Архангельск, ул. Котласская, д. 1.
- Сообщение о планируемом изъятии земельного участка для муниципальных нужд по адресу: г. Архангельск, ул. Беломорская, д. 38.
- Сообщение о планируемом изъятии земельного участка для муниципальных нужд по адресу: г. Архангельск, ул. Гагарина, д. 35.
- Сообщение о планируемом изъятии земельного участка для муниципальных нужд по адресу: г. Архангельск, ул. Трамвайная, д. 4.
- Сообщение о планируемом изъятии земельного участка для муниципальных нужд по адресу: г. Архангельск, ул. Гвардейская, д. 1, корп. 4.
- Сообщение о планируемом изъятии земельного участка для муниципальных нужд по адресу: г. Архангельск, ул. Гвардейская, д. 15.
- Сообщение о планируемом изъятии земельного участка для муниципальных нужд по адресу: г. Архангельск, ул. Герцена, д. 9.
- Сообщение о планируемом изъятии земельного участка для муниципальных нужд по адресу: г. Архангельск, ул. Цигломенская, д. 35.
- Сообщение о планируемом изъятии земельного участка для муниципальных нужд по адресу: г. Архангельск, ул. Сурповская, д. 18.
- Сообщение о планируемом изъятии земельного участка для муниципальных нужд по адресу: г. Архангельск, ул. Пограничная, д. 18.
- Сообщение о планируемом изъятии земельного участка для муниципальных нужд по адресу: г. Архангельск, ул. Юнг Военно-Морского Флота, д. 68.
- Сообщение о планируемом изъятии земельного участка для муниципальных нужд по адресу: г. Архангельск, ул. Квартальная, д. 17.
- Сообщение о планируемом изъятии земельного участка для муниципальных нужд по адресу: г. Архангельск, ул. Школьная, д. 76.
- Сообщение о планируемом изъятии земельного участка для муниципальных нужд по адресу: г. Архангельск, ул. Пограничная, д. 28, корп. 1.
- Сообщение о планируемом изъятии земельного участка для муниципальных нужд по адресу: г. Архангельск, ул. Культуры, д. 3.
- Сообщение о планируемом изъятии земельного участка для муниципальных нужд по адресу: г. Архангельск, ул. Пушкинская, д. 4, корп. 2
- Сообщение о планируемом изъятии земельного участка для муниципальных нужд по адресу: г. Архангельск, ул. Розы Люксембург, д. 73, корп. 1
- Сообщение о планируемом изъятии земельного участка для муниципальных нужд по адресу: г. Архангельск, ул. Гагарина, 59, корп. 1
- Сообщение о планируемом изъятии земельного участка для муниципальных нужд по адресу: г. Архангельск, ул. Кутузова, д. 1
- Сообщение о планируемом изъятии земельного участка для муниципальных нужд по адресу: г. Архангельск, ул. Чкалова, д. 11
- Сообщение о планируемом изъятии земельного участка для муниципальных нужд по адресу: г. Архангельск, ул. Индустриальная, д. 12
- Сообщение о планируемом изъятии земельного участка для муниципальных нужд по адресу: г. Архангельск, ул. Репина, д. 15
- Сообщение о планируемом изъятии земельного участка для муниципальных нужд по адресу: г. Архангельск, ул. Байкальская, д. 10.
- Сообщение о планируемом изъятии земельного участка для муниципальных нужд по адресу: г. Архангельск, просп. Ленинградский, д. 58.
- Сообщение о планируемом изъятии земельного участка для муниципальных нужд по адресу: г. Архангельск, ул. Победы, д. 18, корп. 1.
- Сообщение о планируемом изъятии земельного участка для муниципальных нужд по адресу: г. Архангельск, ул. Гуляева, д. 116.
- Сообщение о планируемом изъятии земельного участка для муниципальных нужд по адресу: г. Архангельск, ул. Вычегодская, д. 21.
- Сообщение о планируемом изъятии земельного участка для муниципальных нужд по адресу: г. Архангельск, ул. Кучина А.С., д. 4.
- Сообщение о планируемом изъятии земельного участка для муниципальных нужд по адресу: г. Архангельск, ул. Юнг Военно-Морского Флота, д. 19.
- Сообщение о планируемом изъятии земельного участка для муниципальных нужд по адресу: г. Архангельск, ул. Зеленец, д. 6.
- Сообщение о планируемом изъятии земельного участка для муниципальных нужд по адресу: г. Архангельск, ул. Розы Люксембург, д. 59.
- Сообщение о планируемом изъятии земельного участка для муниципальных нужд по адресу: г. Архангельск, ул. Физкультурников, д. 25.
- Сообщение о планируемом изъятии земельного участка для муниципальных нужд по адресу: г. Архангельск, ул. Школьная, д. 80, корп. 1
- Сообщение о планируемом изъятии земельного участка для муниципальных нужд по адресу: г. Архангельск, ул. Торговая, д. 112
- Сообщение о планируемом изъятии земельного участка для муниципальных нужд по адресу: г. Архангельск, ул. Калинина, д. 16.
- Сообщение о планируемом изъятии земельного участка для муниципальных нужд по адресу: г. Архангельск, ул. Гуляева, д. 120, корп. 3.
- Сообщение о планируемом изъятии земельного участка для муниципальных нужд по адресу: г. Архангельск, ул. Кемская, д. 13
- Сообщение о планируемом изъятии земельного участка для муниципальных нужд по адресу: г. Архангельск, ул. Локомотивная, д. 9.
- Сообщение о планируемом изъятии земельного участка для муниципальных нужд по адресу: г. Архангельск, ул. Локомотивная, д. 5.
- Сообщение о планируемом изъятии земельного участка для муниципальных нужд по адресу: г. Архангельск, ул. КЛДК, д. 58.
- Сообщение о планируемом изъятии земельного участка для муниципальных нужд по адресу: г. Архангельск, ул. Кочуринская, д. 31.
- Сообщение о планируемом изъятии земельного участка для муниципальных нужд по адресу: г. Архангельск, ул. Кочуринская, д. 42.
- Сообщение о планируемом изъятии земельного участка для муниципальных нужд по адресу: г. Архангельск, просп. Ленинградский, д. 379.
- Сообщение о планируемом изъятии земельного участка для муниципальных нужд по адресу: г. Архангельск, ул. Победы, д. 18, корп. 2.
- Сообщение о планируемом изъятии земельного участка для муниципальных нужд по адресу: г. Архангельск, ул. Катарина, д. 7
- Сообщение о планируемом изъятии земельного участка для муниципальных нужд по адресу: г. Архангельск, просп. Северный, д. 26, корп. 1.
- Сообщение о планируемом изъятии земельного участка для муниципальных нужд по адресу: г. Архангельск, ул. Терехина, д. 52.
- Сообщение о планируемом изъятии земельного участка для муниципальных нужд по адресу: г. Архангельск, ул. Выучейского, д. 37.
- Сообщение о планируемом изъятии земельного участка для муниципальных нужд по адресу: г. Архангельск, ул. Николая Островского, д. 6.
- Сообщение о планируемом изъятии земельного участка для муниципальных нужд по адресу: г. Архангельск, ул. Почтовая, д. 3.
- Сообщение о планируемом изъятии земельного участка для муниципальных нужд по адресу: г. Архангельск, ул. Закемовского, д. 24
- Сообщение о планируемом изъятии земельного участка для муниципальных нужд по адресу: г. Архангельск, ул. Вологодская, д. 1, корп. 1.
- Сообщение о планируемом изъятии земельного участка для муниципальных нужд по адресу: г. Архангельск, ул. Выучейского, д. 92.
- Сообщение о планируемом изъятии земельного участка для муниципальных нужд по адресу: г. Архангельск, ул. 263-й Сивашской дивизии, д. 1.
- Сообщение о планируемом изъятии земельного участка для муниципальных нужд по адресу: г. Архангельск, просп. Новый, д. 11
- Сообщение о планируемом изъятии земельного участка для муниципальных нужд по адресу: г. Архангельск, ул. Кочуринская, д. 48.
- Сообщение о планируемом изъятии земельного участка для муниципальных нужд по адресу: г. Архангельск, ул. Гвардейская, д. 1, корп. 3.
- Сообщение о планируемом изъятии земельного участка для муниципальных нужд по адресу: г. Архангельск, ул. Розы Люксембург, д. 34.
- Сообщение о планируемом изъятии земельного участка для муниципальных нужд по адресу: г. Архангельск, ул. Торговая, д. 109, корп. 1.
- Сообщение о планируемом изъятии земельного участка для муниципальных нужд по адресу: г. Архангельск, ул. Заводская, д. 106.
- Сообщение о планируемом изъятии земельного участка для муниципальных нужд по адресу: г. Архангельск, ул. Николая Островского, д. 4
- Сообщение о планируемом изъятии земельного участка для муниципальных нужд по адресу: г. Архангельск, ул. Пионерская, д. 145, корп. 1.
- Сообщение о планируемом изъятии земельного участка для муниципальных нужд по адресу: г. Архангельск, ул. Михаила Новова, д. 15.
- Сообщение о планируемом изъятии земельного участка для муниципальных нужд по адресу: г. Архангельск, ул. Холмогорская, д. 35.
- Сообщение о планируемом изъятии земельного участка для муниципальных нужд по адресу: г. Архангельск, ул. Лесоэкспортная, д. 5
- Сообщение о планируемом изъятии земельного участка для муниципальных нужд по адресу: г. Архангельск, ул. Цигломенская, д. 29, корп. 1.
- Сообщение о планируемом изъятии земельного участка для муниципальных нужд по адресу: г. Архангельск, ул. Дежневцев, д. 14, корп. 7.
- Сообщение о планируемом изъятии земельного участка для муниципальных нужд по адресу: г. Архангельск, ул. Гагарина, д. 21.
- Сообщение о планируемом изъятии земельного участка для муниципальных нужд по адресу: г. Архангельск, просп. Новгородский, д. 23.
- Сообщение о планируемом изъятии земельного участка для муниципальных нужд по адресу: г. Архангельск, ул. Фрунзе, д. 2
- Сообщение о планируемом изъятии земельного участка для муниципальных нужд по адресу: г. Архангельск, ул. Ударников, д. 17
- Сообщение о планируемом изъятии земельного участка для муниципальных нужд по адресу: г. Архангельск, ул. Красина, д. 35.
- Сообщение о планируемом изъятии земельного участка для муниципальных нужд по адресу: г. Архангельск, ул. Октябрят, д. 20.
- Сообщение о планируемом изъятии земельного участка для муниципальных нужд по адресу: г. Архангельск, ул. Береговая, д. 1.
- Сообщение о планируемом изъятии земельного участка для муниципальных нужд по адресу: г. Архангельск, просп. Ленинградский, д. 348.
- Сообщение о планируемом изъятии земельного участка для муниципальных нужд по адресу: г. Архангельск, ул. Революции, д. 23.
- Сообщение о планируемом изъятии земельного участка для муниципальных нужд по адресу: г. Архангельск, ул. Гвардейская, д. 5, корп. 1.
- Сообщение о планируемом изъятии земельного участка для муниципальных нужд по адресу: г. Архангельск, ул. Партизанская, д. 36.
- Сообщение о планируемом изъятии земельных участков для муниципальных нужд по адресу: г. Архангельск, ул. Розы Люксембург, д. 19
- Сообщение о планируемом изъятии земельного участка для муниципальных нужд по адресу: г. Архангельск, ул. Юнг Военно-Морского Флота, д. 7, корп. 1
- Сообщение о планируемом изъятии земельного участка для муниципальных нужд по адресу: г. Архангельск, ул. Добролюбова, д. 22
- Сообщение о планируемом изъятии земельного участка для муниципальных нужд по адресу: г. Архангельск, пр. К.С. Бадигина, д. 8.
- Сообщение о планируемом изъятии земельного участка для муниципальных нужд по адресу: г. Архангельск, ул. Выучейского, д. 35.
- Сообщение о планируемом изъятии земельного участка для муниципальных нужд по адресу: г. Архангельск, просп. Ломоносова, д. 67, корп. 1
- Сообщение о планируемом изъятии земельного участка для муниципальных нужд по адресу: г. Архангельск, просп. Ломоносова, д. 65, корп. 1
- Сообщение о планируемом изъятии земельного участка для муниципальных нужд по адресу: г. Архангельск, ул. Анощенкова А.И., д. 4, корп. 1.
- Сообщение о планируемом изъятии земельного участка для муниципальных нужд по адресу: г. Архангельск, ул. Холмогорская, д. 38.
- Сообщение о планируемом изъятии земельного участка для муниципальных нужд по адресу: г. Архангельск, ул. Михаила Новова, д. 11.
- Сообщение о планируемом изъятии земельного участка для муниципальных нужд по адресу: г. Архангельск, ул. Михаила Новова, д. 7.
- Сообщение о планируемом изъятии земельного участка для муниципальных нужд по адресу: г. Архангельск, ул. Карельская, д. 51.
- Сообщение о планируемом изъятии земельного участка для муниципальных нужд по адресу: г. Архангельск, ул. Розы Люксембург, д. 61.
- Сообщение о планируемом изъятии земельного участка для муниципальных нужд по адресу: г. Архангельск, пр. К.С. Бадигина, д. 16.
- Сообщение о планируемом изъятии земельного участка для муниципальных нужд по адресу: г. Архангельск, ул. Аэропорт Кегостров, д. 41
- Сообщение о планируемом изъятии земельного участка для муниципальных нужд по адресу: г. Архангельск, ул. Победы, д. 56, корп. 2
- Сообщение о планируемом изъятии земельного участка для муниципальных нужд по адресу: г. Архангельск, ул. Мостостроителей, д. 12.
- Сообщение о планируемом изъятии земельного участка для муниципальных нужд по адресу: г. Архангельск, ул. Коммунальная, д. 4.
- Сообщение о планируемом изъятии земельного участка для муниципальных нужд по адресу: г. Архангельск, просп. Ломоносова, д. 31.
- Сообщение о планируемом изъятии земельного участка для муниципальных нужд по адресу: г. Архангельск, ул. Тяговая, д. 6, корп. 1
- Сообщение о планируемом изъятии земельного участка для муниципальных нужд по адресу: г. Архангельск, ул. Ильича, д. 33, корп. 3
- Сообщение о планируемом изъятии земельного участка для муниципальных нужд по адресу: г. Архангельск, ул. Пирсовая, д. 25
- Сообщение о планируемом изъятии земельного участка для муниципальных нужд по адресу: г. Архангельск, ул. Выучейского, д. 94
- Сообщение о планируемом изъятии земельного участка для муниципальных нужд по адресу: г. Архангельск, ул. Розы Люксембург, д. 46, корп. 2.
- Сообщение о планируемом изъятии земельного участка для муниципальных нужд по адресу: г. Архангельск, ул. Урицкого, д. 22.
- Сообщение о планируемом изъятии земельного участка для муниципальных нужд по адресу: г. Архангельск, ул. КЛДК, д. 100, корп. 3
- Сообщение о планируемом изъятии земельного участка для муниципальных нужд по адресу: г. Архангельск, просп. Московский, д. 11.
- Сообщение о планируемом изъятии земельного участка для муниципальных нужд по адресу: г. Архангельск, ул. Некрасова, д. 5
- Сообщение о планируемом изъятии земельного участка для муниципальных нужд по адресу: г. Архангельск, ул. Пограничная, д. 8
- Сообщение о планируемом изъятии земельного участка для муниципальных нужд по адресу: г. Архангельск, ул. Мирная, д. 28
- Сообщение о планируемом изъятии земельного участка для муниципальных нужд по адресу: г. Архангельск, ул. Колхозная, д. 15
- Сообщение о планируемом изъятии земельного участка для муниципальных нужд по адресу: г. Архангельск, ул. Розы Люксембург, д. 46.
- Сообщение о планируемом изъятии земельного участка для муниципальных нужд по адресу: г. Архангельск, пер. 2-й Ленинградский, д. 6.
- Сообщение о планируемом изъятии земельного участка для муниципальных нужд по адресу: г. Архангельск, просп. Советских космонавтов, д. 37, корп. 4
- Сообщение о планируемом изъятии земельного участка для муниципальных нужд по адресу: г. Архангельск, ул. Выучейского, д. 58
- Сообщение о планируемом изъятии земельного участка для муниципальных нужд по адресу: г. Архангельск, ул. Кононова И.Г., д. 6.
- Сообщение о планируемом изъятии земельного участка для муниципальных нужд по адресу: г. Архангельск, ул. Торговая, д. 108, корп. 1.
- Сообщение о планируемом изъятии земельного участка для муниципальных нужд по адресу: г. Архангельск, ул. Розы Люксембург, д. 12, корп. 1.
- Сообщение о планируемом изъятии земельного участка для муниципальных нужд по адресу: г. Архангельск, ул. Чкалова, д. 18.
- Сообщение о планируемом изъятии земельного участка для муниципальных нужд по адресу: г. Архангельск, ул. Кочуринская, д. 44
- Сообщение о планируемом изъятии земельного участка для муниципальных нужд по адресу: г. Архангельск, ул. Калинина, д. 15
- Сообщение о планируемом изъятии земельного участка для муниципальных нужд по адресу: г. Архангельск, ул. Чкалова, д. 10
- Сообщение о планируемом изъятии земельного участка для муниципальных нужд по адресу: г. Архангельск, ул. Добролюбова, д. 18
- Сообщение о планируемом изъятии земельного участка для муниципальных нужд по адресу: г. Архангельск, ул. Г.Суфтина, д. 8, корп. 1
- Сообщение о планируемом изъятии земельного участка для муниципальных нужд по адресу: г. Архангельск, ул. Выучейского, д. 94, корп. 1
- Сообщение о планируемом изъятии земельного участка для муниципальных нужд по адресу: г. Архангельск, ул. Советская, д. 59
- Сообщение о планируемом изъятии земельного участка для муниципальных нужд по адресу: г. Архангельск, ул. Кольская, д. 16
- Сообщение о планируемом изъятии земельного участка для муниципальных нужд по адресу: г. Архангельск, ул. Дружбы, д. 18
- Сообщение о планируемом изъятии земельного участка для муниципальных нужд по адресу: г. Архангельск, ул. Михаила Новова, д. 16
- Сообщение о планируемом изъятии земельного участка для муниципальных нужд по адресу: г. Архангельск, ул. Восьмое марта, д. 12.
- Сообщение о планируемом изъятии земельного участка для муниципальных нужд по адресу: г. Архангельск, наб. Северной Двины, д. 118, корп. 3.
- Сообщение о планируемом изъятии земельного участка для муниципальных нужд по адресу: г. Архангельск, ул. Нахимова, д. 11.
- Сообщение о планируемом изъятии земельного участка для муниципальных нужд по адресу: г. Архангельск, пер. Водников, д. 10
- Сообщение о планируемом изъятии земельного участка для муниципальных нужд по адресу: г. Архангельск, ул. КЛДК, д. 17
- Сообщение о планируемом изъятии земельного участка для муниципальных нужд по адресу: г. Архангельск, ул. Терехина, д. 60
- Сообщение о планируемом изъятии земельного участка для муниципальных нужд по адресу: г. Архангельск, ул. Партизанская, д. 46
- Сообщение о планируемом изъятии земельного участка для муниципальных нужд по адресу: г. Архангельск, ул. Красноармейская, д. 17.
- Сообщение о планируемом изъятии земельного участка для муниципальных нужд по адресу: г. Архангельск, ул. Ленина, д. 6, корп. 1
- Сообщение о планируемом изъятии земельного участка для муниципальных нужд по адресу: г. Архангельск, ул. Михаила Новова, д. 8
- Сообщение о планируемом изъятии земельного участка для муниципальных нужд по адресу: г. Архангельск, ул. Розы Люксембург, д. 58.
- Сообщение о планируемом изъятии земельного участка для муниципальных нужд по адресу: г. Архангельск, ул. Партизанская, д. 39
- Сообщение о планируемом изъятии земельного участка для муниципальных нужд по адресу: г. Архангельск, ул. Парковая, д. 5
- Сообщение о планируемом изъятии земельного участка для муниципальных нужд по адресу: г. Архангельск, пер. Широкий, д. 7
- Сообщение о планируемом изъятии земельного участка для муниципальных нужд по адресу: г. Архангельск, просп. Никольский, д. 26
- Сообщение о планируемом изъятии земельного участка для муниципальных нужд по адресу: г. Архангельск, просп. Новый, д. 13
- Сообщение о планируемом изъятии земельного участка для муниципальных нужд по адресу: г. Архангельск, ул. Каботажная, д. 11
- Сообщение о планируемом изъятии земельного участка для муниципальных нужд по адресу: г. Архангельск, ул. Сплавная, д. 3
- Сообщение о планируемом изъятии земельного участка для муниципальных нужд по адресу: г. Архангельск, ул. Логинова, д. 78.
- Сообщение о планируемом изъятии земельного участка для муниципальных нужд по адресу: г. Архангельск, ул. Зеньковича, д. 17.
- Сообщение о планируемом изъятии земельного участка для муниципальных нужд по адресу: г. Архангельск, ул. Адмирала Макарова, д. 14, корп. 1.
- Сообщение о планируемом изъятии земельного участка для муниципальных нужд по адресу: г. Архангельск, просп. Советских космонавтов, д. 190.
- Сообщение о планируемом изъятии земельного участка для муниципальных нужд по адресу: г. Архангельск, ул. Лодемская, д. 47
- Сообщение о планируемом изъятии земельного участка для муниципальных нужд по адресу: г. Архангельск, ул. Ленина, д. 8.
- Сообщение о планируемом изъятии земельного участка для муниципальных нужд по адресу: г. Архангельск, ул. Физкультурников, д. 32.
- Сообщение о планируемом изъятии земельного участка для муниципальных нужд по адресу: г. Архангельск, просп. Советских космонавтов, д. 105.
- Сообщение о планируемом изъятии земельного участка для муниципальных нужд по адресу: г. Архангельск, ул. Заводская, д. 99.
- Сообщение о планируемом изъятии земельного участка для муниципальных нужд по адресу: г. Архангельск, ул. Почтовая, д. 15.
- Сообщение о планируемом изъятии земельного участка для муниципальных нужд по адресу: г. Архангельск, ул. Мудьюгская, д. 41, корп. 1
- Сообщение о планируемом изъятии земельного участка для муниципальных нужд по адресу: г. Архангельск, ул. Левобережная, д. 11
- Сообщение о планируемом изъятии земельного участка для муниципальных нужд по адресу: г. Архангельск, просп. Советских космонавтов, д. 32.
- Сообщение о планируемом изъятии земельного участка для муниципальных нужд по адресу: г. Архангельск, ул. Серафимовича, д. 56.
- Сообщение о планируемом изъятии земельного участка для муниципальных нужд по адресу: г. Архангельск, ул. Литейная, д. 13.
- Сообщение о планируемом изъятии земельного участка для муниципальных нужд по адресу: г. Архангельск, ул. Советская, д. 62.
- Сообщение о планируемом изъятии земельного участка для муниципальных нужд по адресу: г. Архангельск, ул. Холмогорская, д. 35, корп. 6
- Сообщение о планируемом изъятии земельного участка для муниципальных нужд по адресу: г. Архангельск, ул. Попова, д. 50, корп. 2.
- Сообщение о планируемом изъятии земельного участка для муниципальных нужд по адресу: г. Архангельск, ул. Первомайская, д. 20, корп. 1.
- Сообщение о планируемом изъятии земельного участка для муниципальных нужд по адресу: г. Архангельск, ул. Цигломенская, д. 19.
- Сообщение о планируемом изъятии земельного участка для муниципальных нужд по адресу: г. Архангельск, ул. Володарского, д. 43.
- Сообщение о планируемом изъятии земельного участка для муниципальных нужд по адресу: г. Архангельск, ул. Сибирская, д. 30
- Сообщение о планируемом изъятии земельного участка для муниципальных нужд по адресу: г. Архангельск, пр. Бадигина, д. 4, корп. 1.
- Сообщение о планируемом изъятии земельного участка для муниципальных нужд по адресу: г. Архангельск, ул. Розы Люксембург, д. 8.
- Сообщение о планируемом изъятии земельного участка для муниципальных нужд по адресу: г. Архангельск, ул. Закемовского, д. 20.
- Сообщение о планируемом изъятии земельного участка для муниципальных нужд по адресу: г. Архангельск, ул. Физкультурников, д. 41
- Сообщение о планируемом изъятии земельного участка для муниципальных нужд по адресу: г. Архангельск, ул. Красных маршалов, д. 5
- Сообщение о планируемом изъятии земельного участка для муниципальных нужд по адресу: г. Архангельск, ул. Пирсовая, д. 26
- Сообщение о планируемом изъятии земельного участка для муниципальных нужд по адресу: г. Архангельск, ул. Михаила Новова, д. 25.
- Сообщение о планируемом изъятии земельного участка для муниципальных нужд по адресу: г. Архангельск, ул. Корпусная, д. 10, корп. 1
- Сообщение о планируемом изъятии земельного участка для муниципальных нужд по адресу: г. Архангельск, ул. Советская, д. 59, корп. 1
- Сообщение о планируемом изъятии земельного участка для муниципальных нужд по адресу: г. Архангельск, ул. Цигломенская, д. 31, корп. 1.
- Сообщение о планируемом изъятии земельного участка для муниципальных нужд по адресу: г. Архангельск, ул. Коммунальная, д. 11.
- Сообщение о планируемом изъятии земельного участка для муниципальных нужд по адресу: г. Архангельск, ул. Баумана, д. 12, корп. 4
- Сообщение о планируемом изъятии земельного участка для муниципальных нужд по адресу: г. Архангельск, ул. Кононова И.Г., д. 12, корп. 1
- Сообщение о планируемом изъятии земельного участка для муниципальных нужд по адресу: г. Архангельск, ул. Репина, д. 16.
- Сообщение о планируемом изъятии земельного участка для муниципальных нужд по адресу: г. Архангельск, ул. Красных маршалов, д. 2.
- Сообщение о планируемом изъятии земельного участка для муниципальных нужд по адресу: г. Архангельск, ул. Победы, д. 9, корп. 1.
- Сообщение о планируемом изъятии земельного участка для муниципальных нужд по адресу: г. Архангельск, просп. Новгородский, д. 8, корп. 1.
- Сообщение о планируемом изъятии земельного участка для муниципальных нужд по адресу: г. Архангельск, ул. Воронина В.И., д. 2, корп. 1.
- Сообщение о планируемом изъятии земельного участка для муниципальных нужд по адресу: г. Архангельск, ул. Боры, д. 39
- Сообщение о планируемом изъятии земельных участков для муниципальных нужд в целях размещения линейного объекта "Автомобильная дорога по просп. Московскому, от ул. Прокопия Галушина до ул. Ленина в городе Архангельске"
- Сообщение о планируемом изъятии земельного участка для муниципальных нужд по адресу: г. Архангельск, ул. Беломорской флотилии, д. 2
- Сообщение о планируемом изъятии земельного участка для муниципальных нужд по адресу: г. Архангельск, ул. Дрейера, д. 53, корп. 1
- Сообщение о планируемом изъятии земельного участка для муниципальных нужд по адресу: г. Архангельск, ул. Сольвычегодская, д. 5
- Сообщение о планируемом изъятии земельного участка для муниципальных нужд по адресу: г. Архангельск, ул. Локомотивная, д. 1
- Сообщение о планируемом изъятии земельного участка для муниципальных нужд по адресу: г. Архангельск, ул. Островная, д. 3.
- Сообщение о планируемом изъятии земельного участка для муниципальных нужд по адресу: г. Архангельск, ул. Доковская, д. 33.
- Сообщение о планируемом изъятии земельного участка для муниципальных нужд по адресу: г. Архангельск, ул. Победы, д. 96
- Сообщение о планируемом изъятии земельного участка для муниципальных нужд по адресу: г. Архангельск, ул. Победы, д. 92
- Сообщение о планируемом изъятии земельного участка для муниципальных нужд по адресу: г. Архангельск, ул. Победы, д. 19
- Сообщение о планируемом изъятии земельного участка для муниципальных нужд по адресу: г. Архангельск, ул. Вторая, д. 3
- Сообщение о планируемом изъятии земельного участка для муниципальных нужд по адресу: г. Архангельск, ул. Победы, д. 140.
- Сообщение о планируемом изъятии земельного участка для муниципальных нужд по адресу: г. Архангельск, ул. Колхозная, д. 23.
- Сообщение о планируемом изъятии земельного участка для муниципальных нужд по адресу: г. Архангельск, ул. Квартальная, д. 9
- Сообщение о планируемом изъятии земельного участка для муниципальных нужд по адресу: г. Архангельск, наб. Северной Двины, д. 118, корп. 1.
- Сообщение о планируемом изъятии земельного участка для муниципальных нужд по адресу: г. Архангельск, ул. Ленинская, д. 4
- Сообщение о планируемом изъятии земельного участка для муниципальных нужд по адресу: г. Архангельск, ул. Партизанская, д. 6
- Сообщение о планируемом изъятии земельного участка для муниципальных нужд по адресу: г. Архангельск, ул. Мирная, д. 32.
- Сообщение о планируемом изъятии земельного участка для муниципальных нужд по адресу: г. Архангельск, ул. Розы Люксембург, д. 58, корп. 1.
- Сообщение о планируемом изъятии земельного участка для муниципальных нужд по адресу: г. Архангельск, ул. Орджоникидзе, д. 18.
- Сообщение о планируемом изъятии земельного участка для муниципальных нужд по адресу: г. Архангельск, ул. Репина, д. 18.
- Сообщение о планируемом изъятии земельного участка для муниципальных нужд по адресу: г. Архангельск, ул. Котовского, д. 17.
- Сообщение о планируемом изъятии земельного участка для муниципальных нужд по адресу: г. Архангельск, ул. Чкалова, д. 12.
- Сообщение о планируемом изъятии земельного участка для муниципальных нужд по адресу: г. Архангельск, просп. Советских космонавтов, д. 37, корп. 1.
- Сообщение о планируемом изъятии земельного участка для муниципальных нужд по адресу: г. Архангельск, Лахтинское шоссе, д. 134.
- Сообщение о планируемом изъятии земельного участка для муниципальных нужд по адресу: г. Архангельск, ул. Ленинская, д. 5.
- Сообщение о планируемом изъятии земельного участка для муниципальных нужд по адресу: г. Архангельск, ул. Карла Маркса, д. 45.
- Сообщение о планируемом изъятии земельного участка для муниципальных нужд по адресу: г. Архангельск, ул. Советская, д. 53.
- Сообщение о планируемом изъятии земельного участка для муниципальных нужд по адресу: г. Архангельск, ул. Урицкого, д. 40
- Сообщение о планируемом изъятии земельного участка для муниципальных нужд по адресу: г. Архангельск, ул. Колхозная, д. 29.
- Сообщение о планируемом изъятии земельного участка для муниципальных нужд по адресу: г. Архангельск, ул. Розы Люксембург, д. 57.
- Сообщение о планируемом изъятии земельного участка для муниципальных нужд по адресу: г. Архангельск, ул. Адмирала Кузнецова, д. 21, корп. 2.
- Сообщение о планируемом изъятии земельного участка для муниципальных нужд по адресу: г. Архангельск, ул. Советская, д. 63, корп. 1.
- Сообщение о планируемом изъятии земельного участка для муниципальных нужд по адресу: г. Архангельск, ул. Кедрова, д. 27.
- Сообщение о планируемом изъятии земельного участка для муниципальных нужд по адресу: г. Архангельск, ул. Михаила Новова, д. 6.
- Сообщение о планируемом изъятии земельного участка для муниципальных нужд по адресу: г. Архангельск, ул. Закемовского, д. 29.
- Сообщение о планируемом изъятии земельного участка для муниципальных нужд по адресу: г. Архангельск, ул. Чкалова, д. 13.
- Сообщение о планируемом изъятии земельного участка для муниципальных нужд по адресу: г. Архангельск, ул. Холмогорская, д. 35, корп. 4.
- Сообщение о планируемом изъятии земельного участка для муниципальных нужд по адресу: г. Архангельск, ул. Транспортная, д. 6.
- Сообщение о планируемом изъятии земельного участка для муниципальных нужд по адресу: г. Архангельск, ул. Береговая, д. 4, корп. 1.
- Сообщение о планируемом изъятии земельного участка для муниципальных нужд по адресу: г. Архангельск, ул. Адмирала Кузнецова, д. 24, корп. 1.
- Сообщение о планируемом изъятии земельного участка для муниципальных нужд по адресу: г. Архангельск, ул. Мещерского, д. 14, корп. 1.
- Сообщение о планируемом изъятии земельного участка для муниципальных нужд по адресу: г. Архангельск, ул. Зеньковича, д. 52.
- Сообщение о планируемом изъятии земельного участка для муниципальных нужд по адресу: г. Архангельск, ул. Гагарина, д. 15.
- Сообщение о планируемом изъятии земельного участка для муниципальных нужд по адресу: г. Архангельск, наб. Северной Двины, д. 32, корп. 10.
- Сообщение о планируемом изъятии земельного участка для муниципальных нужд по адресу: г. Архангельск, ул. Выучейского, д. 54
- Сообщение о планируемом изъятии земельного участка для муниципальных нужд по адресу: г. Архангельск, ул. Тяговая, д. 60
- Сообщение о планируемом изъятии земельного участка для муниципальных нужд по адресу: г. Архангельск, просп. Никольский, д. 114
- Сообщение о планируемом изъятии земельного участка для муниципальных нужд по адресу: г. Архангельск, ул. Физкультурников, д. 42, корп. 1
- Сообщение о планируемом изъятии земельного участка для муниципальных нужд по адресу: г. Архангельск, ул. Декабристов, д. 18.
- Сообщение о планируемом изъятии земельного участка для муниципальных нужд по адресу: г. Архангельск, ул. Северодвинская, д. 78.
- Сообщение о планируемом изъятии земельного участка для муниципальных нужд по адресу: г. Архангельск, ул. Г.Суфтина, д. 13, корп. 1.
- Сообщение о планируемом изъятии земельного участка для муниципальных нужд по адресу: г. Архангельск, ул. Кировская, д. 15.
- Сообщение о планируемом изъятии земельного участка для муниципальных нужд по адресу: г. Архангельск, ул. Адмирала Кузнецова, д. 21, корп. 3
- Сообщение о планируемом изъятии земельного участка для муниципальных нужд по адресу: г. Архангельск, ул. Адмирала Макарова, д. 30, корп. 3.
- Сообщение о планируемом изъятии земельного участка для муниципальных нужд по адресу: г. Архангельск, ул. Г. Суфтина, д. 27, корп. 1.
- Сообщение о планируемом изъятии земельного участка для муниципальных нужд по адресу: г. Архангельск, ул. Пушкинская, д. 1.
- Сообщение о планируемом изъятии земельного участка для муниципальных нужд по адресу: г. Архангельск, ул. Ильича, д. 37, корп. 1.
- Сообщение о планируемом изъятии земельного участка для муниципальных нужд по адресу: г. Архангельск, ул. Теснанова, д. 20.
- Сообщение о планируемом изъятии земельного участка для муниципальных нужд по адресу: г. Архангельск, ул. Победы, д. 144.
- Сообщение о планируемом изъятии земельного участка для муниципальных нужд по адресу: г. Архангельск, ул. Гидролизная, д. 11.
- Сообщение о планируемом изъятии земельного участка для муниципальных нужд по адресу: г. Архангельск, ул. Мудьюгская, д. 33.
- Сообщение о планируемом изъятии земельного участка для муниципальных нужд по адресу: г. Архангельск, ул. Дачная, д. 4, корп. 1.
- Сообщение о планируемом изъятии земельного участка для муниципальных нужд по адресу: г. Архангельск, ул. Заводская, д. 103.
- Сообщение о планируемом изъятии земельного участка для муниципальных нужд по адресу: г. Архангельск, ул. Корпусная, д. 9.
- Сообщение о планируемом изъятии земельного участка для муниципальных нужд по адресу: г. Архангельск, ул. Михаила Новова, д. 12.
- Сообщение о планируемом изъятии земельного участка для муниципальных нужд по адресу: г. Архангельск, ул. Сурповская, д. 20.
- Сообщение о планируемом изъятии земельного участка для муниципальных нужд по адресу: г. Архангельск, ул. Заводская, д. 105.
- Сообщение о планируемом изъятии земельного участка для муниципальных нужд по адресу: г. Архангельск, ул. Красина, д. 37.
- Сообщение о планируемом изъятии земельного участка для муниципальных нужд по адресу: г. Архангельск, ул. Бергавинова, д. 4.
- Сообщение о планируемом изъятии земельного участка для муниципальных нужд по адресу: г. Архангельск, ул. Выучейского, д. 39/ просп. Советских космонавтов, д. 47.
- Сообщение о планируемом изъятии земельного участка для муниципальных нужд по адресу: г. Архангельск, ул. Транспортная, д. 12.
- Сообщение о планируемом изъятии земельного участка для муниципальных нужд по адресу: г. Архангельск, ул. Петра Стрелкова, д. 7.
- Сообщение о планируемом изъятии земельного участка для муниципальных нужд по адресу: г. Архангельск, ул. Победы, д. 37.
- Сообщение о планируемом изъятии земельного участка для муниципальных нужд по адресу: г. Архангельск, ул. Нахимова, д. 2.
- Сообщение о планируемом изъятии земельного участка для муниципальных нужд по адресу: г. Архангельск, ул. Розы Люксембург, д. 74, корп. 1.
- Сообщение о планируемом изъятии земельного участка для муниципальных нужд по адресу: г. Архангельск, ул. Котовского, д. 13.
- Сообщение о планируемом изъятии земельного участка для муниципальных нужд по адресу: г. Архангельск, ул. Пограничная, д. 38, корп. 1.
- Сообщение о планируемом изъятии земельного участка для муниципальных нужд по адресу: г. Архангельск, ул. Выучейского, д. 74.
- Сообщение о планируемом изъятии земельного участка для муниципальных нужд по адресу: г. Архангельск, ул. Михаила Новова, д. 2.
- Сообщение о планируемом изъятии земельного участка для муниципальных нужд по адресу: г. Архангельск, ул. Челюскинцев, д. 53.
- Сообщение о планируемом изъятии земельного участка для муниципальных нужд по адресу: г. Архангельск, ул. Шабалина А.О., д. 13.
- Сообщение о планируемом изъятии земельного участка для муниципальных нужд по адресу: г. Архангельск, ул. Адмирала Макарова, д. 31, корп. 1.
- Сообщение о планируемом изъятии земельного участка для муниципальных нужд по адресу: г. Архангельск, ул. Петра Стрелкова, д. 8.
- Сообщение о планируемом изъятии земельного участка для муниципальных нужд по адресу: г. Архангельск, ул. Адмирала Макарова, д. 32, корп. 1.
- Сообщение о планируемом изъятии земельного участка для муниципальных нужд по адресу: г. Архангельск, просп. Новгородский, д. 151.
- Сообщение о планируемом изъятии земельного участка для муниципальных нужд по адресу: г. Архангельск, ул. Терехина, д. 69.
- Сообщение о планируемом изъятии земельного участка для муниципальных нужд по адресу: г. Архангельск, ул. Мудьюгская, д. 12
- Сообщение о планируемом изъятии земельного участка для муниципальных нужд по адресу: г. Архангельск, ул. Партизанская, д. 30
- Сообщение о планируемом изъятии земельного участка для муниципальных нужд по адресу: г. Архангельск, ул. Приморская, д. 20, корп. 3
- Сообщение о планируемом изъятии земельного участка для муниципальных нужд по адресу: г. Архангельск, ул. Кировская, д. 11
- Сообщение о планируемом изъятии земельного участка для муниципальных нужд по адресу: г. Архангельск, ул. Цигломенская, д. 12
- Сообщение о планируемом изъятии земельного участка для муниципальных нужд по адресу: г. Архангельск, ул. Вычегодская, д. 23
- Сообщение о планируемом изъятии земельного участка для муниципальных нужд по адресу: г. Архангельск, ул. Родионова, д. 7
- Сообщение о планируемом изъятии земельного участка для муниципальных нужд по адресу: г. Архангельск, ул. Школьная, д. 75
- Сообщение о планируемом изъятии земельного участка для муниципальных нужд по адресу: г. Архангельск, просп. Ленинградский, д. 321, корп. 1
- Сообщение о планируемом изъятии земельного участка для муниципальных нужд по адресу: г. Архангельск, ул. Котласская, д. 7.
- Сообщение о планируемом изъятии земельного участка для муниципальных нужд по адресу: г. Архангельск, ул. Петра Стрелкова, д. 12.
- Сообщение о планируемом изъятии земельного участка для муниципальных нужд по адресу: г. Архангельск, ул. Ярославская, д. 52, корп. 2
- Сообщение о планируемом изъятии земельного участка для муниципальных нужд по адресу: г. Архангельск, ул. Чкалова, д. 4
- Сообщение о планируемом изъятии земельного участка для муниципальных нужд по адресу: г. Архангельск, ул. Ударников, д. 15
- Сообщение о планируемом изъятии земельного участка для муниципальных нужд по адресу: г. Архангельск, ул. Школьная, д. 81
- Сообщение о планируемом изъятии земельного участка для муниципальных нужд по адресу: г. Архангельск, ул. Энтузиастов, д. 24, корп. 1
- Сообщение о планируемом изъятии земельного участка для муниципальных нужд по адресу: г. Архангельск, ул. Фрунзе, д. 4
- Сообщение о планируемом изъятии земельного участка для муниципальных нужд по адресу: г. Архангельск, ул. Терехина, д. 59
- Сообщение о планируемом изъятии земельного участка для муниципальных нужд по адресу: г. Архангельск, ул. Тельмана, д. 5
- Сообщение о планируемом изъятии земельного участка для муниципальных нужд по адресу: г. Архангельск, ул. Тельмана, д. 3
- Сообщение о планируемом изъятии земельного участка для муниципальных нужд по адресу: г. Архангельск, ул. Тельмана, д. 1
- Сообщение о планируемом изъятии земельного участка для муниципальных нужд по адресу: г. Архангельск, ул. Шабалина А.О., д. 18
- Сообщение о планируемом изъятии земельного участка для муниципальных нужд по адресу: г. Архангельск, ул. Розы Люксембург, д. 46, корп. 1
- Сообщение о планируемом изъятии земельного участка для муниципальных нужд по адресу: г. Архангельск, ул. Северодвинская, д. 23
- Сообщение о планируемом изъятии земельного участка для муниципальных нужд по адресу: г. Архангельск, ул. Серафимовича, д. 12
- Сообщение о планируемом изъятии земельного участка для муниципальных нужд по адресу: г. Архангельск, ул. Репина, д. 24/ул. Кутузова М.И., д. 5
- Сообщение о планируемом изъятии земельного участка для муниципальных нужд по адресу: г. Архангельск, ул. Партизанская, д. 28
- Сообщение о планируемом изъятии земельного участка для муниципальных нужд по адресу: г. Архангельск, ул. Михаила Новова, д. 33
- Сообщение о планируемом изъятии земельного участка для муниципальных нужд по адресу: г. Архангельск, ул. Советская, д. 46, корп. 1
- Сообщение о планируемом изъятии земельного участка для муниципальных нужд по адресу: г. Архангельск, ул. Михайловой Т.П., д. 6
- Сообщение о планируемом изъятии земельного участка для муниципальных нужд по адресу: г. Архангельск, ул. Победы, д. 55
- Сообщение о планируемом изъятии земельного участка для муниципальных нужд по адресу: г. Архангельск, ул. Прокашева, д. 21
- Сообщение о планируемом изъятии земельного участка для муниципальных нужд по адресу: г. Архангельск, ул. Репина, д. 20
- Сообщение о планируемом изъятии земельного участка для муниципальных нужд по адресу: г. Архангельск, ул. Репина, д. 17
- Сообщение о планируемом изъятии земельного участка для муниципальных нужд по адресу: г. Архангельск, ул. Сибирская, д. 36
- Сообщение о планируемом изъятии земельного участка для муниципальных нужд по адресу: г. Архангельск, ул. Сурповская, д. 40
- Сообщение о планируемом изъятии земельного участка для муниципальных нужд по адресу: г. Архангельск, ул. Тяговая, д. 3
- Сообщение о планируемом изъятии земельного участка для муниципальных нужд по адресу: г. Архангельск, ул. Карла Маркса, д. 27
- Сообщение о планируемом изъятии земельного участка для муниципальных нужд по адресу: г. Архангельск, ул. Ленина, д. 22
- Сообщение о планируемом изъятии земельного участка для муниципальных нужд по адресу: г. Архангельск, просп. Ломоносова, д. 33, корп. 2
- Сообщение о планируемом изъятии земельного участка для муниципальных нужд по адресу: г. Архангельск, ул. Гвардейская, д. 1
- Сообщение о планируемом изъятии земельного участка для муниципальных нужд по адресу: г. Архангельск, ул. Бергавинова, д. 1 / ул. Кировская, д. 9
- Сообщение о планируемом изъятии земельного участка для муниципальных нужд по адресу: г. Архангельск, ул. Локомотивная, д. 58
- Сообщение о планируемом изъятии земельного участка для муниципальных нужд по адресу: г. Архангельск, просп. Ленинградский, д. 319
- Сообщение о планируемом изъятии земельного участка для муниципальных нужд по адресу: г. Архангельск, просп. Ленинградский, д. 367
- Сообщение о планируемом изъятии земельного участка для муниципальных нужд по адресу: г. Архангельск, ул. Ильича, д. 12
- Сообщение о планируемом изъятии земельного участка для муниципальных нужд по адресу: г. Архангельск, ул. Добролюбова, д. 16
- Сообщение о планируемом изъятии земельного участка для муниципальных нужд по адресу: г. Архангельск, ул. Боровая, д. 55, корп. 1
- Сообщение о планируемом изъятии земельного участка для муниципальных нужд по адресу: г. Архангельск, ул. Гайдара, д. 21
- Сообщение о планируемом изъятии земельного участка для муниципальных нужд по адресу: г. Архангельск, ул. Заводская, д. 94
- Сообщение о планируемом изъятии земельного участка для муниципальных нужд по адресу: г. Архангельск, пер. Двинской, д. 3
- Сообщение о планируемом изъятии земельного участка для муниципальных нужд по адресу: г. Архангельск, ул. Георгия Иванова, д. 53
- Сообщение о планируемом изъятии земельного участка для муниципальных нужд по адресу: г. Архангельск, ул. Адмирала Кузнецова, д. 24
- Сообщение о планируемом изъятии земельного участка для муниципальных нужд по адресу: г. Архангельск, ул. Адмирала Макарова, д. 2, корп. 1
- Сообщение о планируемом изъятии земельного участка для муниципальных нужд по адресу: г. Архангельск, ул. Адмирала Макарова, д. 3
- Сообщение о планируемом изъятии земельного участка для муниципальных нужд по адресу: г. Архангельск, 1-я линия, д. 23
- Сообщение о планируемом изъятии земельного участка для муниципальных нужд по адресу: г. Архангельск, ул. Аллейная, д. 30
- Сообщение о планируемом изъятии земельного участка для муниципальных нужд по адресу: г. Архангельск, ул. Адмирала Макарова, д. 3, корп. 1
- Сообщение о планируемом изъятии земельного участка для муниципальных нужд по адресу: г. Архангельск, ул. Бергавинова, д. 14
- Сообщение о планируемом изъятии земельного участка для муниципальных нужд по адресу: г. Архангельск, ул. Розы Люксембург, д. 52
- Сообщение о планируемом изъятии земельного участка для муниципальных нужд по адресу: г. Архангельск, ул. Николая Островского, д. 5
- Сообщение о планируемом изъятии земельного участка для муниципальных нужд по адресу: г. Архангельск, ул. Ударников, д. 19
- Сообщение о планируемом изъятии земельного участка для муниципальных нужд по адресу: г. Архангельск, ул. Добролюбова, д. 7
- Сообщение о планируемом изъятии земельного участка для муниципальных нужд по адресу: г. Архангельск, ул. Валявкина, д. 5
- Сообщение о планируемом изъятии земельного участка для муниципальных нужд по адресу: г. Архангельск, ул. Александра Петрова, д. 9
- Сообщение о планируемом изъятии земельного участка для муниципальных нужд по адресу: г. Архангельск, пер. Водников, д. 3
- Сообщение о планируемом изъятии земельного участка для муниципальных нужд по адресу: г. Архангельск, ул. Циолковского, д. 15, корп. 1.
- Сообщение о планируемом изъятии земельного участка для муниципальных нужд по адресу: г. Архангельск, ул. Дежневцев, д. 6.
- Сообщение о планируемом изъятии земельного участка для муниципальных нужд по адресу: г. Архангельск, ул. Моряка, д. 8, корп. 2.
- Сообщение о планируемом изъятии земельного участка для муниципальных нужд по адресу: г. Архангельск, ул. Первомайская, д. 17, корп. 1.
- Сообщение о планируемом изъятии земельного участка для муниципальных нужд по адресу: г. Архангельск, ул. Динамо, д. 33.
- Сообщение о планируемом изъятии земельного участка для муниципальных нужд по адресу: г. Архангельск, ул. Локомотивная, д. 41.
- Сообщение о планируемом изъятии земельного участка для муниципальных нужд по адресу: г. Архангельск, ул. Орджоникидзе, д. 17.
- Сообщение о планируемом изъятии земельного участка для муниципальных нужд по адресу: г. Архангельск, ул. Терехина, д. 71.
- Сообщение о планируемом изъятии земельного участка для муниципальных нужд по адресу: г. Архангельск, ул. Индустриальная, д. 16.
- Сообщение о планируемом изъятии земельного участка для муниципальных нужд по адресу: г. Архангельск, ул. Гидролизная, д. 9
- Сообщение о планируемом изъятии земельного участка для муниципальных нужд по адресу: г. Архангельск, ул. Герцена, д. 11, корп. 1.
- Сообщение о планируемом изъятии земельного участка для муниципальных нужд по адресу: г. Архангельск, ул. Ильича, д. 50, корп. 2.
- Сообщение о планируемом изъятии земельного участка для муниципальных нужд по адресу: г. Архангельск, ул. Карла Маркса, д. 31.
- Сообщение о планируемом изъятии земельного участка для муниципальных нужд по адресу: г. Архангельск, ул. Орджоникидзе, д. 26.
- Сообщение о планируемом изъятии земельного участка для муниципальных нужд по адресу: г. Архангельск, ул. Доковская, д. 35.
- Сообщение о планируемом изъятии земельного участка для муниципальных нужд по адресу: г. Архангельск, ул. Шабалина А.О., д. 21.
- Сообщение о планируемом изъятии земельного участка для муниципальных нужд по адресу: г. Архангельск, ул. Павла Усова, д. 3.
- Сообщение о планируемом изъятии земельного участка для муниципальных нужд по адресу: г. Архангельск, ул. Гуляева, д. 121, корп. 1.
- Сообщение о планируемом изъятии земельного участка для муниципальных нужд по адресу: г. Архангельск, ул. Маймаксанская, д. 55.
- Сообщение о планируемом изъятии земельного участка для муниципальных нужд по адресу: г. Архангельск, Первый рабочий квартал, д. 45.
- Сообщение о планируемом изъятии земельного участка для муниципальных нужд по адресу: г. Архангельск, ул. Терехина, д. 57.
- Сообщение о планируемом изъятии земельного участка для муниципальных нужд по адресу: г. Архангельск, ул. Выучейского, д. 62.
- Сообщение о планируемом изъятии земельного участка для муниципальных нужд по адресу: г. Архангельск, ул. Ленинская, д. 3.
- Сообщение о планируемом изъятии земельного участка для муниципальных нужд по адресу: г. Архангельск, ул. Урицкого, д. 27.
- Сообщение о планируемом изъятии земельного участка для муниципальных нужд по адресу: г. Архангельск, ул. Репина, д. 22.
- Сообщение о планируемом изъятии земельного участка для муниципальных нужд по адресу: г. Архангельск, просп. Ломоносова, д. 126
- Сообщение о планируемом изъятии земельного участка для муниципальных нужд по адресу: г. Архангельск, ул. Шабалина А.О., д. 23.
- Сообщение о планируемом изъятии земельного участка для муниципальных нужд по адресу: г. Архангельск, ул. Левобережная, д. 16.
- Сообщение о планируемом изъятии земельного участка для муниципальных нужд по адресу: г. Архангельск, ул. Литейная, д. 17.
- Сообщение о планируемом изъятии земельного участка для муниципальных нужд по адресу: г. Архангельск, Маймаксанское шоссе, д. 9.
- Сообщение о планируемом изъятии земельного участка для муниципальных нужд по адресу: г. Архангельск, ул. Лесотехническая, д. 9
- Сообщение о планируемом изъятии земельного участка для муниципальных нужд по адресу: г. Архангельск, ул. Театральная, д. 55
- Сообщение о планируемом изъятии земельного участка для муниципальных нужд по адресу: г. Архангельск, просп. Ленинградский, д. 384, корп. 2
- Сообщение о планируемом изъятии земельного участка для муниципальных нужд по адресу: г. Архангельск, ул. Г.Суфтина, д. 27
- Сообщение о планируемом изъятии земельного участка для муниципальных нужд по адресу: г. Архангельск, ул. Красноармейская, д. 21, корп. 1.
- Сообщение о планируемом изъятии земельного участка для муниципальных нужд по адресу: г. Архангельск, пер. Водников, д. 6.
- Сообщение о планируемом изъятии земельного участка для муниципальных нужд по адресу: г. Архангельск, ул. Шабалина, д. 23, корп. 2.
- Сообщение о планируемом изъятии земельного участка для муниципальных нужд по адресу: г. Архангельск, ул. Республиканская, д. 13.
- Сообщение о планируемом изъятии земельного участка для муниципальных нужд по адресу: г. Архангельск, ул. Карла Маркса, д. 42.
- Сообщение о планируемом изъятии земельного участка для муниципальных нужд по адресу: г. Архангельск, ул. Победы, д. 24, корп. 2.
- Сообщение о планируемом изъятии земельного участка для муниципальных нужд по адресу: г. Архангельск, ул. Розмыслова, д. 25.
- Сообщение о планируемом изъятии земельного участка для муниципальных нужд по адресу: г. Архангельск, ул. Гагарина, д. 31.
- Сообщение о планируемом изъятии земельного участка для муниципальных нужд по адресу: г. Архангельск, просп. Обводный канал, д. 63
- Сообщение о планируемом изъятии земельного участка для муниципальных нужд по адресу: г. Архангельск, ул. Проезжая, д. 24.
- Сообщение о планируемом изъятии земельного участка для муниципальных нужд по адресу: г. Архангельск, ул. Зеньковича, д. 44.
- Сообщение о планируемом изъятии земельного участка для муниципальных нужд по адресу: г. Архангельск, ул. Адмирала Макарова, д. 19, корп. 2.
- Сообщение о планируемом изъятии земельного участка для муниципальных нужд по адресу: г. Архангельск, ул. Партизанская, д. 43.
- Сообщение о планируемом изъятии земельного участка для муниципальных нужд по адресу: г. Архангельск, ул. Рыбацкая, д. 4
- Сообщение о планируемом изъятии земельного участка для муниципальных нужд по адресу: г. Архангельск, ул. Орджоникидзе, д. 24, корп. 3
- Сообщение о планируемом изъятии земельного участка для муниципальных нужд по адресу: г. Архангельск, ул. Стивидорская, д. 6.
- Сообщение о планируемом изъятии земельного участка для муниципальных нужд по адресу: г. Архангельск, ул. Шабалина А.О., д. 14.
- Сообщение о планируемом изъятии земельного участка для муниципальных нужд по адресу: г. Архангельск, ул. Советская, д. 66
- Сообщение о планируемом изъятии земельного участка для муниципальных нужд по адресу: г. Архангельск, ул. Урицкого, д. 33
- Сообщение о планируемом изъятии земельного участка для муниципальных нужд по адресу: г. Архангельск, ул. Катарина, д. 9
- Сообщение о планируемом изъятии земельного участка для муниципальных нужд по адресу: г. Архангельск, ул. Котласская, д. 22.
- Сообщение о планируемом изъятии земельного участка для муниципальных нужд по адресу: г. Архангельск, ул. Энтузиастов, д. 26.
- Сообщение о планируемом изъятии земельного участка для муниципальных нужд по адресу: г. Архангельск, ул. Комсомольская, д. 38.
- Сообщение о планируемом изъятии земельного участка для муниципальных нужд по адресу: г. Архангельск, ул. Гуляева, д. 105.
- Сообщение о планируемом изъятии земельного участка для муниципальных нужд по адресу: г. Архангельск, ул. Юнг ВМФ, д. 24
- Сообщение о планируемом изъятии земельного участка для муниципальных нужд по адресу: г. Архангельск, ул. Целлюлозная, д. 23
- Сообщение о планируемом изъятии земельного участка для муниципальных нужд по адресу: г. Архангельск, ул. Победы, д. 57
- Сообщение о планируемом изъятии земельного участка для муниципальных нужд по адресу: г. Архангельск, ул. Победы, д. 85
- Сообщение о планируемом изъятии земельного участка для муниципальных нужд по адресу: г. Архангельск, ул. Гидролизная, д. 4
- Сообщение о планируемом изъятии земельного участка для муниципальных нужд по адресу: г. Архангельск, пер. Одиннадцатый, д. 9
- Сообщение о планируемом изъятии земельного участка для муниципальных нужд по адресу: г. Архангельск, ул. Самойло, д. 27.
- Сообщение о планируемом изъятии земельного участка для муниципальных нужд по адресу: г. Архангельск, ул. Михаила Новова, д. 1
- Сообщение о планируемом изъятии земельного участка для муниципальных нужд по адресу: г. Архангельск, ул. Победы, д. 94
- Сообщение о планируемом изъятии земельного участка для муниципальных нужд по адресу: г. Архангельск, ул. Гуляева, д. 122
- Сообщение о планируемом изъятии земельного участка для муниципальных нужд по адресу: г. Архангельск, ул. Вельможного, д. 9
- Сообщение о планируемом изъятии земельного участка для муниципальных нужд по адресу: г. Архангельск, ул. Адмирала Кузнецова, д. 22, корп. 1
- Сообщение о планируемом изъятии земельного участка для муниципальных нужд по адресу: г. Архангельск, ул. Добролюбова, д. 12
- Сообщение о планируемом изъятии земельного участка для муниципальных нужд по адресу: г. Архангельск, ул. Литейная, д. 8
- Сообщение о планируемом изъятии земельного участка для муниципальных нужд по адресу: г. Архангельск, ул. КЛДК, д. 63.
- Сообщение о планируемом изъятии земельного участка для муниципальных нужд по адресу: г. Архангельск, ул. Юнг Военно-Морского Флота, д. 76, корп. 1.
- Сообщение о планируемом изъятии земельного участка для муниципальных нужд по адресу: г. Архангельск, ул. Ильича, д. 35, корп. 1.
- Сообщение о планируемом изъятии земельного участка для муниципальных нужд по адресу: г. Архангельск, ул. Самойло, д. 1, корп. 1.
- Сообщение о планируемом изъятии земельного участка для муниципальных нужд по адресу: г. Архангельск, ул. Свободы, д. 57.
- Сообщение о планируемом изъятии земельного участка для муниципальных нужд по адресу: г. Архангельск, ул. Цигломенская, д. 31.
- Сообщение о планируемом изъятии земельного участка для муниципальных нужд по адресу: г. Архангельск, ул. Судоремонтников, д. 11
- Сообщение о планируемом изъятии земельного участка для муниципальных нужд по адресу: г. Архангельск, ул. Судоремонтников, д. 10
- Сообщение о планируемом изъятии земельного участка для муниципальных нужд по адресу: г. Архангельск, ул. Локомотивная, д. 28.
- Сообщение о планируемом изъятии земельного участка для муниципальных нужд по адресу: г. Архангельск, ул. Декабристов, д. 11.
- Сообщение о планируемом изъятии земельного участка для муниципальных нужд по адресу: г. Архангельск, ул. Фрезерная, д. 9.
- Сообщение о планируемом изъятии земельного участка для муниципальных нужд по адресу: г. Архангельск, ул. Механизаторов, д. 18.
- Сообщение о планируемом изъятии земельного участка для муниципальных нужд по адресу: г. Архангельск, ул. Победы, д. 142, корп. 1.
- Сообщение о планируемом изъятии земельного участка для муниципальных нужд по адресу: г. Архангельск, ул. Шабалина А.О., д. 17.
- Сообщение о планируемом изъятии земельного участка для муниципальных нужд по адресу: г. Архангельск, ул. Самойло, д. 30.
- Сообщение о планируемом изъятии земельного участка для муниципальных нужд по адресу: г. Архангельск, ул. Транспортная, д. 11, корп. 1.
- Сообщение о планируемом изъятии земельного участка для муниципальных нужд по адресу: г. Архангельск, ул. Калинина, д. 13.
- Сообщение о планируемом изъятии земельного участка для муниципальных нужд по адресу: г. Архангельск, ул. Буденного, д. 3.
- Сообщение о планируемом изъятии земельного участка для муниципальных нужд по адресу: г. Архангельск, ул. Садовая, д. 44.
- Сообщение о планируемом изъятии земельного участка для муниципальных нужд по адресу: г. Архангельск, ул. Ильича, д. 50, корп. 3.
- Сообщение о планируемом изъятии земельного участка для муниципальных нужд по адресу: г. Архангельск, ул. Вычегодская, д. 7.
- Сообщение о планируемом изъятии земельного участка для муниципальных нужд по адресу: г. Архангельск, ул. Зеньковича, д. 30.
- Сообщение о планируемом изъятии земельного участка для муниципальных нужд по адресу: г. Архангельск, ул. Колхозная, д. 6, корп. 2.
- Сообщение о планируемом изъятии земельного участка для муниципальных нужд по адресу: г. Архангельск, ул. Заводская, д. 95
- Сообщение о планируемом изъятии земельного участка для муниципальных нужд по адресу: г. Архангельск, просп. Обводный канал, д. 11, корп. 1.
- Сообщение о планируемом изъятии земельного участка для муниципальных нужд по адресу: г. Архангельск, ул. Михаила Новова, д. 30
- Сообщение о планируемом изъятии земельного участка для муниципальных нужд по адресу: г. Архангельск, ул. Корпусная, д. 11.
- Сообщение о планируемом изъятии земельного участка для муниципальных нужд по адресу: г. Архангельск, ул. Байкальская, д. 6, корп. 1.
- Сообщение о планируемом изъятии земельного участка для муниципальных нужд по адресу: г. Архангельск, ул. Победы, д. 50
- Сообщение о планируемом изъятии земельного участка для муниципальных нужд по адресу: г. Архангельск, ул. Выучейского, д. 56
- Сообщение о планируемом изъятии земельного участка для муниципальных нужд по адресу: г. Архангельск, ул. Горького, д. 13
- Сообщение о планируемом изъятии земельного участка для муниципальных нужд по адресу: г. Архангельск, ул. Емецкая, д. 7
- Сообщение о планируемом изъятии земельного участка для муниципальных нужд по адресу: г. Архангельск, ул. Победы, д. 156
- Сообщение о планируемом изъятии земельного участка для муниципальных нужд по адресу: г. Архангельск, ул. Маяковского, д. 60
- Сообщение о планируемом изъятии земельного участка для муниципальных нужд по адресу: г. Архангельск, Лахтинское шоссе, д. 130
- Сообщение о планируемом изъятии земельного участка для муниципальных нужд по адресу: г. Архангельск, ул. Дачная, д. 4, корп. 3.
- Сообщение о планируемом изъятии земельного участка для муниципальных нужд по адресу: г. Архангельск, ул. Гагарина, д. 39, корп. 1
- Сообщение о планируемом изъятии земельного участка для муниципальных нужд по адресу: г. Архангельск, ул. Шабалина А.О., д. 7
- Сообщение о планируемом изъятии земельного участка для муниципальных нужд по адресу: г. Архангельск, ул. Победы, д. 22
- Сообщение о планируемом изъятии земельного участка для муниципальных нужд по адресу: г. Архангельск, ул. Розы Люксембург, д. 42
- Сообщение о планируемом изъятии земельного участка для муниципальных нужд по адресу: г. Архангельск, просп. Ломоносова, д. 33, корп. 1
- Сообщение о планируемом изъятии земельного участка для муниципальных нужд по адресу: г. Архангельск, ул. Катарина, д. 4
- Сообщение о планируемом изъятии земельного участка для муниципальных нужд по адресу: г. Архангельск, ул. Физкультурников, д. 27.
- Сообщение о планируемом изъятии земельного участка для муниципальных нужд по адресу: г. Архангельск, ул. Партизанская, д. 48.
- Сообщение о планируемом изъятии земельного участка для муниципальных нужд по адресу: г. Архангельск, ул. Производственная, д. 23.
- Сообщение о планируемом изъятии земельного участка для муниципальных нужд по адресу: г. Архангельск, ул. Вычегодская, д. 5.
- Сообщение о планируемом изъятии земельного участка для муниципальных нужд по адресу: г. Архангельск, ул. Пограничная, д. 36.
- Сообщение о планируемом изъятии земельного участка для муниципальных нужд по адресу: г. Архангельск, ул. Декабристов, д. 6, корп. 1.
- Сообщение о планируемом изъятии земельного участка для муниципальных нужд по адресу: г. Архангельск, ул. Победы, д. 122, корп. 2.
- Сообщение о планируемом изъятии земельного участка для муниципальных нужд по адресу: г. Архангельск, ул. Красных маршалов, д. 9.
- Сообщение о планируемом изъятии земельного участка для муниципальных нужд по адресу: г. Архангельск, ул. Победы, д. 51.
- Сообщение о планируемом изъятии земельного участка для муниципальных нужд по адресу: г. Архангельск, ул. Суфтина, д. 2, корп. 1.
- Сообщение о планируемом изъятии земельного участка для муниципальных нужд по адресу: г. Архангельск, ул. Победы, д. 20, корп. 4
- Сообщение о планируемом изъятии земельного участка для муниципальных нужд по адресу: г. Архангельск, ул. Чкалова, д. 7.
- Сообщение о планируемом изъятии земельного участка для муниципальных нужд по адресу: г. Архангельск, ул. Георгия Иванова, д. 12.
- Сообщение о планируемом изъятии земельного участка для муниципальных нужд по адресу: г. Архангельск, ул. Театральная, д. 51.
- Сообщение о планируемом изъятии земельного участка для муниципальных нужд по адресу: г. Архангельск, ул. Проезжая, д. 18.
- Сообщение о планируемом изъятии земельного участка для муниципальных нужд по адресу: г. Архангельск, ул. Гагарина, д. 31, корп. 1.
- Сообщение о планируемом изъятии земельного участка для муниципальных нужд по адресу: г. Архангельск, ул. Розы Люксембург, д. 53.
- Сообщение о планируемом изъятии земельного участка для муниципальных нужд по адресу: г. Архангельск, ул. Сибирская, д. 11.
- Сообщение о планируемом изъятии земельного участка для муниципальных нужд по адресу: г. Архангельск, ул. Чкалова, д. 23.
- Сообщение о планируемом изъятии земельного участка для муниципальных нужд по адресу: г. Архангельск, ул. Пограничная, д. 30.
- Сообщение о планируемом изъятии земельного участка для муниципальных нужд по адресу: г. Архангельск, ул. Вологодская, д. 16, корп. 1.
- Сообщение о планируемом изъятии земельного участка для муниципальных нужд по адресу: г. Архангельск, ул. Победы, д. 20.
- Сообщение о планируемом изъятии земельного участка для муниципальных нужд по адресу: г. Архангельск, ул. Н.Островского, д. 5, корп. 1.
- Сообщение о планируемом изъятии земельного участка для муниципальных нужд по адресу: г. Архангельск, просп. Новгородский, д. 4.
- Сообщение о планируемом изъятии земельного участка для муниципальных нужд по адресу: г. Архангельск, ул. Свободы, д. 28.
- Сообщение о планируемом изъятии земельного участка для муниципальных нужд по адресу: г. Архангельск, ул. Декабристов, д. 6.
- Сообщение о планируемом изъятии земельного участка для муниципальных нужд по адресу: г. Архангельск, ул. Кольская, д. 19.
- Сообщение о планируемом изъятии земельного участка для муниципальных нужд по адресу: г. Архангельск, ул. Пограничная, д. 15
- Сообщение о планируемом изъятии земельного участка для муниципальных нужд по адресу: г. Архангельск, ул. Нахимова, д. 13.
- Сообщение о планируемом изъятии земельного участка для муниципальных нужд по адресу: г. Архангельск, ул. Литейная, д. 6
- Сообщение о планируемом изъятии земельного участка для муниципальных нужд по адресу: г. Архангельск, ул. Розы Люксембург, д. 48.
- Сообщение о планируемом изъятии земельного участка для муниципальных нужд по адресу: г. Архангельск, ул. Павла Усова, д. 5.
- Сообщение о планируемом изъятии земельного участка для муниципальных нужд по адресу: г. Архангельск, ул. Нагорная, д. 42.
- Сообщение о планируемом изъятии земельного участка для муниципальных нужд по адресу: г. Архангельск, ул. Павла Усова, д. 17.
- Сообщение о планируемом изъятии земельного участка для муниципальных нужд по адресу: г. Архангельск, ул. Терехина, д. 51
- Сообщение о планируемом изъятии земельного участка для муниципальных нужд по адресу: г. Архангельск, ул. Дежневцев, д. 3
- Сообщение о планируемом изъятии земельного участка для муниципальных нужд по адресу: г. Архангельск, ул. Нахимова, д. 10.
- Сообщение о планируемом изъятии земельного участка для муниципальных нужд по адресу: г. Архангельск, ул. Физкультурников, д. 42.
- Сообщение о планируемом изъятии земельного участка для муниципальных нужд по адресу: г. Архангельск, ул. Красных маршалов, д. 7.
- Сообщение о планируемом изъятии земельного участка для муниципальных нужд по адресу: г. Архангельск, ул. Мира, д. 4.
- Сообщение о планируемом изъятии земельного участка для муниципальных нужд по адресу: г. Архангельск, ул. Лермонтова, д. 29, корп. 1.
- Сообщение о планируемом изъятии земельного участка для муниципальных нужд по адресу: г. Архангельск, ул. Гагарина, д. 32.
- Сообщение о планируемом изъятии земельного участка для муниципальных нужд по адресу: г. Архангельск, ул. Гагарина, д. 28.
- Сообщение о планируемом изъятии земельного участка для муниципальных нужд по адресу: г. Архангельск, ул. Гагарина, д. 28, корп. 1.
- Сообщение о планируемом изъятии земельного участка для муниципальных нужд по адресу: г. Архангельск, ул. Гагарина, д. 23.
- Сообщение о планируемом изъятии земельного участка для муниципальных нужд по адресу: г. Архангельск, ул. Первомайская, д. 17
- Сообщение о планируемом изъятии земельного участка для муниципальных нужд по адресу: г. Архангельск, ул. Попова, д. 56, корп. 1.
- Сообщение о планируемом изъятии земельного участка для муниципальных нужд по адресу: г. Архангельск, ул. Воронина, д. 2
- Сообщение о планируемом изъятии земельного участка для муниципальных нужд по адресу: г. Архангельск, просп. Северный, д. 22
- Сообщение о планируемом изъятии земельного участка для муниципальных нужд по адресу: г. Архангельск, ул. Фрунзе, д. 8
- Сообщение о планируемом изъятии земельного участка для муниципальных нужд по адресу: г. Архангельск, ул. Луганская, д. 5.
- Сообщение о планируемом изъятии земельного участка для муниципальных нужд по адресу: г. Архангельск, ул. Адмирала Макарова, д. 9, корп. 1.
- Сообщение о планируемом изъятии земельного участка для муниципальных нужд по адресу: г. Архангельск, ул. Урицкого, д. 44
- Сообщение о планируемом изъятии земельного участка для муниципальных нужд по адресу: г. Архангельск, просп. Ломоносова, д. 172, корп. 3.
- Сообщение о планируемом изъятии земельного участка для муниципальных нужд по адресу: г. Архангельск, ул. Выучейского, д. 68.
- Сообщение о планируемом изъятии земельного участка для муниципальных нужд по адресу: г. Архангельск, ул. Адмирала Макарова, д. 9
- Сообщение о планируемом изъятии земельного участка для муниципальных нужд по адресу: г. Архангельск, ул. Корабельная, д. 20
- Сообщение о планируемом изъятии земельного участка для муниципальных нужд по адресу: г. Архангельск, ул. Севстрой, д. 29.
- Сообщение о планируемом изъятии земельного участка для муниципальных нужд по адресу: г. Архангельск, ул. Шабалина, д. 11
- Сообщение о планируемом изъятии земельного участка для муниципальных нужд по адресу: г. Архангельск, ул. Ярославская, д. 52, корп. 3.
- Сообщение о планируемом изъятии земельного участка для муниципальных нужд по адресу: г. Архангельск, ул. Пограничная, д. 20.
- Сообщение о планируемом изъятии земельного участка для муниципальных нужд по адресу: г. Архангельск, ул. Володарского, д. 45, корп. 1
- Сообщение о планируемом изъятии земельного участка для муниципальных нужд по адресу: г. Архангельск, ул. Цигломенская, д. 19, корп. 1
- Сообщение о планируемом изъятии земельного участка для муниципальных нужд по адресу: г. Архангельск, ул. Лодемская, д. 51.
- Сообщение о планируемом изъятии земельного участка для муниципальных нужд по адресу: г. Архангельск, ул. Орджоникидзе, д. 24, корп. 2.
- Сообщение о планируемом изъятии земельного участка для муниципальных нужд по адресу: г. Архангельск, ул. Фрезерная, д. 5.
- Сообщение о планируемом изъятии земельного участка для муниципальных нужд по адресу: г. Архангельск, ул. Адмирала Кузнецова, д. 19.
- Сообщение о планируемом изъятии земельного участка для муниципальных нужд по адресу: г. Архангельск, ул. Цигломенская, д. 37
- Сообщение о планируемом изъятии земельного участка для муниципальных нужд по адресу: г. Архангельск, просп. Троицкий, д. 100, корп. 4
- Сообщение о планируемом изъятии земельного участка для муниципальных нужд по адресу: г. Архангельск, ул. Советская, д. 71
- Сообщение о планируемом изъятии земельного участка для муниципальных нужд по адресу: г. Архангельск, ул. Колхозная, д. 30
- Сообщение о планируемом изъятии земельного участка для муниципальных нужд по адресу: г. Архангельск, ул. Гвардейская, д. 3
- Сообщение о планируемом изъятии земельного участка для муниципальных нужд по адресу: г. Архангельск, ул. Победы, д. 142
- Сообщение о планируемом изъятии земельного участка для муниципальных нужд по адресу: г. Архангельск, ул. Победы, д. 132, корп. 2
- Сообщение о планируемом изъятии земельного участка для муниципальных нужд по адресу: г. Архангельск, ул. Красных партизан, д. 4, корп. 2
- Сообщение о планируемом изъятии земельного участка для муниципальных нужд по адресу: г. Архангельск, ул. Партизанская, д. 28, корп. 2.
- Сообщение о планируемом изъятии земельного участка для муниципальных нужд по адресу: г. Архангельск, ул. Нахимова, д. 3
- Сообщение о планируемом изъятии земельного участка для муниципальных нужд по адресу: г. Архангельск, ул. Зеньковича, д. 50
- Сообщение о планируемом изъятии земельного участка для муниципальных нужд по адресу: г. Архангельск, ул. Красина, д. 17
- Сообщение о планируемом изъятии земельного участка для муниципальных нужд по адресу: г. Архангельск, ул. Комсомольская, д. 55
- Сообщение о планируемом изъятии земельного участка для муниципальных нужд по адресу: г. Архангельск, ул. Попова, д. 50
- Сообщение о планируемом изъятии земельного участка для муниципальных нужд по адресу: г. Архангельск, ул. Севстрой, д. 51
- Сообщение о планируемом изъятии земельного участка для муниципальных нужд по адресу: г. Архангельск, ул. Котовского, д. 9
- Сообщение о планируемом изъятии земельного участка для муниципальных нужд по адресу: г. Архангельск, ул. Дрейера, д. 47, корп. 1
- Сообщение о планируемом изъятии земельного участка для муниципальных нужд по адресу: г. Архангельск, ул. Целлюлозная, д. 10
- Сообщение о планируемом изъятии земельного участка для муниципальных нужд по адресу: г. Архангельск, ул. Романа Куликова, д. 1
- Сообщение о планируемом изъятии земельного участка для муниципальных нужд по адресу: г. Архангельск, ул. Розы Люксембург, д. 74
- Сообщение о планируемом изъятии земельного участка для муниципальных нужд по адресу: г. Архангельск, ул. Лесозаводская, д. 7
- Сообщение о планируемом изъятии земельного участка для муниципальных нужд по адресу: г. Архангельск, ул. Карельская, д. 53
- Сообщение о планируемом изъятии земельного участка для муниципальных нужд по адресу: г. Архангельск, ул. Севстрой, д. 12.
- Сообщение о планируемом изъятии земельного участка для муниципальных нужд по адресу: г. Архангельск, ул. Первомайская, д. 21.
- Сообщение о планируемом изъятии земельного участка для муниципальных нужд по адресу: г. Архангельск, ул. Гуляева, д. 118, корп. 1
- Сообщение о планируемом изъятии земельного участка для муниципальных нужд по адресу: г. Архангельск, наб. Г.Седова, д. 12
- Сообщение о планируемом изъятии земельного участка для муниципальных нужд по адресу: г. Архангельск, просп. Ленинградский, д. 361
- Сообщение о планируемом изъятии земельного участка для муниципальных нужд по адресу: г. Архангельск, ул. Цигломенская, д. 27, корп. 1
- Сообщение о планируемом изъятии земельного участка для муниципальных нужд по адресу: г. Архангельск, просп. Обводный канал, д. 143, корп. 1
- Сообщение о планируемом изъятии земельного участка для муниципальных нужд по адресу: г. Архангельск, просп. Советских космонавтов, д. 34
- Сообщение о планируемом изъятии земельного участка для муниципальных нужд по адресу: г. Архангельск, ул. Гагарина, д. 30
- Сообщение о планируемом изъятии земельного участка для муниципальных нужд по адресу: г. Архангельск, просп. Обводный канал, д. 27
- Сообщение о планируемом изъятии земельного участка для муниципальных нужд по адресу: г. Архангельск, ул. Поморская, д. 63
- Сообщение о планируемом изъятии земельного участка для муниципальных нужд по адресу: г. Архангельск, ул. Победы, д. 32
- Сообщение о планируемом изъятии земельного участка для муниципальных нужд по адресу: г. Архангельск, ул. Розы Люксембург, д. 44
- Сообщение о планируемом изъятии земельного участка для муниципальных нужд по адресу: г. Архангельск, просп. Ломоносова, д. 57
- Сообщение о планируемом изъятии земельного участка для муниципальных нужд по адресу: г. Архангельск, просп. Обводный канал, д. 143
- Сообщение о планируемом изъятии земельного участка для муниципальных нужд по адресу: г. Архангельск, ул. Механизаторов, д. 6
- Сообщение о планируемом изъятии земельного участка для муниципальных нужд по адресу: г. Архангельск, ул. Почтовая, д. 17
- Сообщение о планируемом изъятии земельного участка для муниципальных нужд по адресу: г. Архангельск, ул. Шкулева, д. 10
- Сообщение о планируемом изъятии земельного участка для муниципальных нужд по адресу: г. Архангельск, ул. Буденного, д. 4
- Сообщение о планируемом изъятии земельного участка для муниципальных нужд по адресу: г. Архангельск, ул. Проезжая, д. 12
- Сообщение о планируемом изъятии земельного участка для муниципальных нужд по адресу: г. Архангельск, ул. Вологодская, д. 16
- Сообщение о планируемом изъятии земельного участка для муниципальных нужд по адресу: г. Архангельск, ул. Судоремонтников, д. 9
- Сообщение о планируемом изъятии земельного участка для муниципальных нужд по адресу: г. Архангельск, ул. КЛДК, д. 97
- Сообщение о планируемом изъятии земельного участка для муниципальных нужд по адресу: г. Архангельск, ул. Пирсовая, д. 54
- Сообщение о планируемом изъятии земельного участка для муниципальных нужд по адресу: г. Архангельск, ул. Мичурина, д. 12
- Сообщение о планируемом изъятии земельного участка для муниципальных нужд по адресу: г. Архангельск, ул. Партизанская, д. 3
- Сообщение о планируемом изъятии земельного участка для муниципальных нужд по адресу: г. Архангельск, ул. Урицкого, д. 46
- Сообщение о планируемом изъятии земельного участка для муниципальных нужд по адресу: г. Архангельск, ул. Шилова, д. 31
- Сообщение о планируемом изъятии земельного участка для муниципальных нужд по адресу: г. Архангельск, ул. Советская, д. 77
- Сообщение о планируемом изъятии земельных участков для муниципальных нужд объектов недвижимого имущества, в целях размещения линейного объекта "Участок транспортной развязки в разных уровнях на пересечении ул. Смольный Буян и пр. Обводный канал в муниципальном образовании "Город Архангельск"
- Сообщение о планируемом изъятии земельного участка для муниципальных нужд по адресу: г. Архангельск, ул. Орджоникидзе, д. 26, корп. 3
- Сообщение о планируемом изъятии земельного участка для муниципальных нужд по адресу: г. Архангельск, ул. Победы, д. 90
- Сообщение о планируемом изъятии земельного участка для муниципальных нужд по адресу: г. Архангельск, ул. Котласская, д. 24
- Сообщение о планируемом изъятии земельного участка для муниципальных нужд по адресу: г. Архангельск, ул. Каботажная, д. 7
- Сообщение о планируемом изъятии земельного участка для муниципальных нужд по адресу: г. Архангельск, ул. Пограничная, д. 28
- Сообщение о планируемом изъятии земельного участка для муниципальных нужд по адресу: г. Архангельск, ул. Репина, д. 14
- Сообщение о планируемом изъятии земельного участка для муниципальных нужд по адресу: г. Архангельск, ул. Логинова, д. 68
- Сообщение о планируемом изъятии земельного участка для муниципальных нужд по адресу: г. Архангельск, ул. Лесоэкспортная, д. 4
- Сообщение о планируемом изъятии земельного участка для муниципальных нужд по адресу: г. Архангельск, ул. Севстрой, д. 20
- Сообщение о планируемом изъятии земельного участка для муниципальных нужд по адресу: г. Архангельск, ул. Дружбы, д. 24
- Сообщение о планируемом изъятии земельного участка для муниципальных нужд по адресу: г. Архангельск, ул. Проезжая, д. 21
- Сообщение о планируемом изъятии земельного участка для муниципальных нужд по адресу: г. Архангельск, ул. Вологодская, д. 12
- Сообщение о планируемом изъятии земельного участка для муниципальных нужд по адресу: г. Архангельск, ул. Гвардейская, д. 5, корп. 2
- Сообщение о планируемом изъятии земельного участка для муниципальных нужд по адресу: г. Архангельск, ул. Советская, д. 75
- Сообщение о планируемом изъятии земельного участка для муниципальных нужд по адресу: г. Архангельск, ул. Горького, д. 3
- Сообщение о планируемом изъятии земельного участка для муниципальных нужд по адресу: г. Архангельск, ул. Зеленец, д. 36
- Сообщение о планируемом изъятии земельного участка для муниципальных нужд по адресу: г. Архангельск, ул. Лесозаводская, д. 1
- Сообщение о планируемом изъятии земельного участка для муниципальных нужд по адресу: г. Архангельск, просп. Никольский, д. 140
- Сообщение о планируемом изъятии земельного участка для муниципальных нужд по адресу: г. Архангельск, ул. Октябрят, д. 28, корп. 1
- Сообщение о планируемом изъятии земельного участка для муниципальных нужд по адресу: г. Архангельск, ул. Урицкого, д. 26
- Сообщение о планируемом изъятии земельного участка для муниципальных нужд по адресу: г. Архангельск, ул. Республиканская, д. 12
- Сообщение о планируемом изъятии земельного участка для муниципальных нужд по адресу: г. Архангельск, ул. Калинина, д. 16, корп. 1
- Сообщение о планируемом изъятии земельного участка для муниципальных нужд по адресу: г. Архангельск, ул. Пирсовая, д. 76
- Сообщение о планируемом изъятии земельного участка для муниципальных нужд по адресу: г. Архангельск, пр. Ленинградский, д. 11
- Сообщение о планируемом изъятии земельного участка для муниципальных нужд по адресу: г. Архангельск, ул. Адмирала Макарова, д. 41
- Сообщение о планируемом изъятии земельного участка для муниципальных нужд по адресу: г. Архангельск, ул. Почтовая, д. 13
- Сообщение о планируемом изъятии земельного участка для муниципальных нужд по адресу: г. Архангельск, ул. Поморская, д. 67
- Сообщение о планируемом изъятии земельного участка для муниципальных нужд по адресу: г. Архангельск, ул. Победы, д. 81
- Сообщение о планируемом изъятии земельного участка для муниципальных нужд по адресу: г. Архангельск, просп. Советских космонавтов, д. 196
- Сообщение о планируемом изъятии земельного участка для муниципальных нужд по адресу: г. Архангельск, ул. Победы, д. 158
- Сообщение о планируемом изъятии земельного участка для муниципальных нужд по адресу: г. Архангельск, ул. Вологодская, д. 33
- Сообщение о планируемом изъятии земельного участка для муниципальных нужд по адресу: г. Архангельск, ул. Цигломенская, д. 25
- Сообщение о планируемом изъятии земельного участка для муниципальных нужд по адресу: г. Архангельск, ул. Пустошного, д. 25
- Сообщение о планируемом изъятии земельного участка для муниципальных нужд по адресу: г. Архангельск, ул. Выучейского, д. 53
- Сообщение о планируемом изъятии земельного участка для муниципальных нужд по адресу: г. Архангельск, ул. Цигломенская, д. 39
- Сообщение о планируемом изъятии земельного участка для муниципальных нужд по адресу: г. Архангельск, пр. Ломоносова, д. 27
- Сообщение о планируемом изъятии земельного участка для муниципальных нужд по адресу: г. Архангельск, ул. Логинова, д. 74
- Сообщение о планируемом изъятии земельного участка для муниципальных нужд по адресу: г. Архангельск, ул. Гагарина, д. 36
- Сообщение о планируемом изъятии земельного участка для муниципальных нужд по адресу: г. Архангельск, ул. Котласская, д. 14
- Сообщение о планируемом изъятии земельного участка для муниципальных нужд по адресу: г. Архангельск, ул. Павла Усова, д. 27
- Сообщение о планируемом изъятии земельного участка для муниципальных нужд по адресу: г. Архангельск, ул. Романа Куликова, д. 3, корп. 2
- Сообщение о планируемом изъятии земельного участка для муниципальных нужд по адресу: г. Архангельск, ул. Попова, д. 56
- Сообщение о планируемом изъятии земельного участка для муниципальных нужд по адресу: г. Архангельск, ул. Попова, д. 52
- Сообщение о планируемом изъятии земельного участка для муниципальных нужд по адресу: г. Архангельск, ул. Павла Усова, д. 31, корп. 1
- Сообщение о планируемом изъятии земельного участка для муниципальных нужд по адресу: г. Архангельск, ул. Выучейского, д. 45
- Сообщение о планируемом изъятии земельного участка для муниципальных нужд по адресу: г. Архангельск, ул. Колхозная, д. 25
- Сообщение о планируемом изъятии земельного участка для муниципальных нужд по адресу: г. Архангельск, просп. Ломоносова, д. 55
- Сообщение о планируемом изъятии земельного участка для муниципальных нужд по адресу: г. Архангельск, ул. Каботажная, д. 3
- Сообщение о планируемом изъятии земельного участка для муниципальных нужд по адресу: г. Архангельск, ул. Физкультурников, д. 40
- Сообщение о планируемом изъятии земельного участка для муниципальных нужд по адресу: г. Архангельск, пер. Водников, д. 8
- Сообщение о планируемом изъятии земельного участка для муниципальных нужд по адресу: г. Архангельск, ул. Красных партизан, д. 35
- Сообщение о планируемом изъятии земельного участка для муниципальных нужд по адресу: г. Архангельск, ул. Красных маршалов, д. 16
- Сообщение о планируемом изъятии земельного участка для муниципальных нужд по адресу: г. Архангельск, ул. Кировская, д. 7
- Сообщение о планируемом изъятии земельного участка для муниципальных нужд по адресу: г. Архангельск, ул. Кочуринская, д. 27
- Сообщение о планируемом изъятии земельного участка для муниципальных нужд по адресу: г. Архангельск, ул. Портовая, д. 2
- Сообщение о планируемом изъятии земельного участка для муниципальных нужд по адресу: г. Архангельск, ул. Речная, д. 22, корп. 1
- Сообщение о планируемом изъятии земельного участка для муниципальных нужд по адресу: г. Архангельск, ул. Кедрова, д. 22, корп. 1
- Сообщение о планируемом изъятии земельного участка для муниципальных нужд по адресу: г. Архангельск, ул. Адмирала Макарова, д. 8, корп. 2
- Сообщение о планируемом изъятии земельного участка для муниципальных нужд по адресу: г. Архангельск, ул. Гуляева, д. 123
- Сообщение о планируемом изъятии земельного участка для муниципальных нужд по адресу: г. Архангельск, пер. Водников, д. 5
- Сообщение о планируемом изъятии земельного участка для муниципальных нужд по адресу: г. Архангельск, ул. Суфтина, д. 3
- Сообщение о планируемом изъятии земельного участка для муниципальных нужд по адресу: г. Архангельск, ул. Гагарина, д. 39
- Сообщение о планируемом изъятии земельного участка для муниципальных нужд по адресу: г. Архангельск, ул. Исток, д. 5, корп. 1
- Сообщение о планируемом изъятии земельного участка для муниципальных нужд по адресу: г. Архангельск, наб. Георгия Седова, д. 20, корп. 1
- Сообщение о планируемом изъятии земельного участка для муниципальных нужд по адресу: г. Архангельск, ул. Тяговая, д. 14
- Сообщение о планируемом изъятии земельного участка для муниципальных нужд по адресу: г. Архангельск, ул. Котласская, д. 6
- Сообщение о планируемом изъятии земельного участка для муниципальных нужд по адресу: г. Архангельск, ул. Колхозная, д. 28
- Сообщение о планируемом изъятии земельного участка для муниципальных нужд по адресу: г. Архангельск, ул. Проезжая, д. 20
- Сообщение о планируемом изъятии земельного участка для муниципальных нужд по адресу: г. Архангельск, ул. Комсомольская, д. 43, корп. 1
- Сообщение о планируемом изъятии земельного участка для муниципальных нужд по адресу: г. Архангельск, просп. Обводный канал, д. 15, корп. 5
- Сообщение о планируемом изъятии земельного участка для муниципальных нужд по адресу: г. Архангельск, ул. Колхозная, д. 20
- Сообщение о планируемом изъятии земельного участка для муниципальных нужд по адресу: г. Архангельск, ул. Котовского, д. 3
- Сообщение о планируемом изъятии земельного участка для муниципальных нужд по адресу: г. Архангельск, ул. Павла Усова, д. 41
- Сообщение о планируемом изъятии земельного участка для муниципальных нужд по адресу: г. Архангельск, ул. Поморская, д. 68, корп. 1
- Сообщение о планируемом изъятии земельного участка для муниципальных нужд по адресу: г. Архангельск, ул. Гагарина, д. 26
- Сообщение о планируемом изъятии земельного участка для муниципальных нужд по адресу: г. Архангельск, ул. Севстрой, д. 6
- Сообщение о планируемом изъятии земельного участка для муниципальных нужд по адресу: г. Архангельск, ул. Г.Суфтина, д. 11
- Сообщение о планируемом изъятии земельного участка для муниципальных нужд по адресу: г. Архангельск, ул. Колхозная, д. 6, корп. 1
- Сообщение о планируемом изъятии земельного участка для муниципальных нужд по адресу: г. Архангельск, ул. Орджоникидзе, д. 5
- Сообщение о планируемом изъятии земельного участка для муниципальных нужд по адресу: г. Архангельск, ул. Родионова, д. 17
- Сообщение о планируемом изъятии земельного участка для муниципальных нужд по адресу: г. Архангельск, ул. Буденного, д. 5
- Сообщение о планируемом изъятии земельного участка для муниципальных нужд по адресу: г. Архангельск, просп. Троицкий, д. 61, корп. 1
- Сообщение о планируемом изъятии земельного участка для муниципальных нужд по адресу: г. Архангельск, ул. Свободы, д. 47, корп. 1
- Сообщение о планируемом изъятии земельного участка для муниципальных нужд по адресу: г. Архангельск, ул. Ударников, д. 18
- Сообщение о планируемом изъятии земельного участка для муниципальных нужд по адресу: г. Архангельск, ул. Выучейского, д. 63, корп. 1
- Сообщение о планируемом изъятии земельного участка для муниципальных нужд по адресу: г. Архангельск, ул. Калинина, д. 11
- Сообщение о планируемом изъятии земельного участка для муниципальных нужд по адресу: г. Архангельск, ул. Лермонтова, д. 29
- Сообщение о планируемом изъятии земельного участка для муниципальных нужд по адресу: г. Архангельск, просп. Обводный канал, д. 143, корп. 2
- Сообщение о планируемом изъятии земельного участка для муниципальных нужд по адресу: г. Архангельск, ул. Победы, д. 156, корп. 1
- Сообщение о планируемом изъятии земельных участков для муниципальных нужд по адресу: г. Архангельск, просп. Обводный канал, д. 80
- Сообщение о планируемом изъятии земельного участка для муниципальных нужд по адресу: г. Архангельск, просп. Обводный канал, д. 125
- Сообщение о планируемом изъятии земельного участка для муниципальных нужд по адресу: г. Архангельск, ул. Гуляева, д. 103
- Сообщение о планируемом изъятии земельного участка для муниципальных нужд по адресу: г. Архангельск, просп. Советских космонавтов, д. 101
- Сообщение о планируемом изъятии земельного участка для муниципальных нужд по адресу: г. Архангельск, пер. Двинской, д. 4
- Сообщение о планируемом изъятии земельного участка для муниципальных нужд по адресу: г. Архангельск, просп. Ленинградский, д. 373
- Сообщение о планируемом изъятии земельного участка для муниципальных нужд по адресу: г. Архангельск, ул. Гайдара, д. 16
- Сообщение о планируемом изъятии земельного участка для муниципальных нужд по адресу: г. Архангельск, ул. Гагарина, д. 27
- Сообщение о планируемом изъятии земельного участка для муниципальных нужд по адресу: г. Архангельск, ул. Красных маршалов, д. 17
- Сообщение о планируемом изъятии земельного участка для муниципальных нужд по адресу: г. Архангельск, ул. Вычегодская, д. 15, корп. 3
- Сообщение о планируемом изъятии земельного участка для муниципальных нужд по адресу: г. Архангельск, ул. Михаила Новова, д. 17
- Сообщение о планируемом изъятии земельного участка для муниципальных нужд по адресу: г. Архангельск, ул. Тяговая, д. 2
- Сообщение о планируемом изъятии земельного участка для муниципальных нужд по адресу: г. Архангельск, ул. Победы, д. 56, корп. 1
- Сообщение о планируемом изъятии земельного участка для муниципальных нужд по адресу: г. Архангельск, ул. Суфтина, 1-й проезд, д. 13
- Сообщение о планируемом изъятии земельного участка для муниципальных нужд по адресу: г. Архангельск, пр. Ломоносова, д. 226, корп. 1
- Сообщение о планируемом изъятии земельного участка для муниципальных нужд по адресу: г. Архангельск, ул. Ярославская, д. 52, корп. 1
- Сообщение о планируемом изъятии земельного участка для муниципальных нужд по адресу: г. Архангельск, ул. Красных маршалов, д. 1
- Сообщение о планируемом изъятии земельного участка для муниципальных нужд по адресу: г. Архангельск, ул. Сурповская, д. 49
- Сообщение о планируемом изъятии земельного участка для муниципальных нужд по адресу: г. Архангельск, ул. Победы, д. 59
- Сообщение о планируемом изъятии земельного участка для муниципальных нужд по адресу: г. Архангельск, пр. Обводный канал, д. 61
- Сообщение о планируемом изъятии земельного участка для муниципальных нужд по адресу: г. Архангельск, ул. Победы, д. 136
- Сообщение о планируемом изъятии земельного участка для муниципальных нужд по адресу: г. Архангельск, ул. Моряка, д. 5
- Сообщение о планируемом изъятии земельного участка для муниципальных нужд по адресу: г. Архангельск, ул. Партизанская, д. 12
- Сообщение о планируемом изъятии земельного участка для муниципальных нужд по адресу: г. Архангельск, пр. Ленинградский, д. 369
- Сообщение о планируемом изъятии земельного участка для муниципальных нужд по адресу: г. Архангельск, ул. Володарского, д. 80
- Сообщение о планируемом изъятии земельного участка для муниципальных нужд по адресу: г. Архангельск, ул. Гвардейская, д. 16
- Сообщение о планируемом изъятии земельного участка для муниципальных нужд по адресу: г. Архангельск, ул. Пионерская, д. 84
- Сообщение о планируемом изъятии земельного участка для муниципальных нужд по адресу: г. Архангельск, ул. Колхозная, д. 22
- Сообщение о планируемом изъятии земельного участка для муниципальных нужд по адресу: г. Архангельск, ул. Бергавинова, д. 3
- Сообщение о планируемом изъятии земельного участка для муниципальных нужд по адресу: г. Архангельск, ул. Советская, д. 64
- Сообщение о планируемом изъятии земельного участка для муниципальных нужд по адресу: г. Архангельск, ул. Гуляева, д. 121
- Сообщение о планируемом изъятии земельного участка для муниципальных нужд по адресу: г. Архангельск, ул. Михаила Новова, д. 18
- Сообщение о планируемом изъятии земельного участка для муниципальных нужд по адресу: г. Архангельск, пр-кт Советских космонавтов, д. 194
- Сообщение о планируемом изъятии земельного участка для муниципальных нужд по адресу: г. Архангельск, ул. Комсомольская, д. 48
- Сообщение о планируемом изъятии земельного участка для муниципальных нужд по адресу: г. Архангельск, ул. Урицкого, д. 6
- Сообщение о планируемом изъятии земельного участка для муниципальных нужд по адресу: г. Архангельск, 2-й Ленинградский переулок, д. 8
- Сообщение о планируемом изъятии земельного участка для муниципальных нужд по адресу: г. Архангельск, ул. Катарина, д. 5
- Сообщение о планируемом изъятии земельного участка для муниципальных нужд по адресу: г. Архангельск, ул. Вологодская, д. 1, корп. 2
- Сообщение о планируемом изъятии земельного участка для муниципальных нужд по адресу: г. Архангельск, ул. Пирсовая, д. 22
- Сообщение о планируемом изъятии земельного участка для муниципальных нужд по адресу: г. Архангельск, ул. Ильича, д. 2, корп. 2
- Сообщение о планируемом изъятии земельного участка для муниципальных нужд по адресу: г. Архангельск, ул. Орджоникидзе, д. 24, корп. 1
- Сообщение о планируемом изъятии земельного участка для муниципальных нужд по адресу: г. Архангельск, ул. Победы, д. 104, корп. 1
- Сообщение о планируемом изъятии земельного участка для муниципальных нужд по адресу: г. Архангельск, ул. Каботажная, д. 5
- Сообщение о планируемом изъятии земельного участка для муниципальных нужд по адресу: г. Архангельск, ул. Самойло, д. 3
- Сообщение о планируемом изъятии земельного участка для муниципальных нужд по адресу: г. Архангельск, ул. Ярославская, д. 73
- Сообщение о планируемом изъятии земельного участка для муниципальных нужд по адресу: г. Архангельск, ул. Павла Усова, д. 5, корп. 1
- Сообщение о планируемом изъятии земельного участка для муниципальных нужд по адресу: г. Архангельск, ул. Володарского, д. 80, корп. 1
- Сообщение о планируемом изъятии земельного участка для муниципальных нужд по адресу: г. Архангельск, ул. Транспортная, д. 18
- Сообщение о планируемом изъятии земельного участка для муниципальных нужд по адресу: г. Архангельск, ул. Ильича, д. 16
- Сообщение о планируемом изъятии земельного участка для муниципальных нужд по адресу: г. Архангельск, ул. Нахимова, д. 14
- Сообщение о планируемом изъятии земельного участка для муниципальных нужд по адресу: г. Архангельск, ул. Партизанская, д. 28, корп. 1
- Сообщение о планируемом изъятии земельного участка для муниципальных нужд по адресу: г. Архангельск, просп. Новгородский, д. 111
- Сообщение о планируемом изъятии земельного участка для муниципальных нужд по адресу: г. Архангельск, ул. Зеньковича, д. 46
- Сообщение о планируемом изъятии земельного участка для муниципальных нужд по адресу: г. Архангельск, ул. Калинина, д. 18
- Сообщение о планируемом изъятии земельного участка для муниципальных нужд по адресу: г. Архангельск, ул. Мещерского, д. 16
- Сообщение о планируемом изъятии земельного участка для муниципальных нужд по адресу: г. Архангельск, ул. Победы, д. 134
- Сообщение о планируемом изъятии земельного участка для муниципальных нужд по адресу: г. Архангельск, ул. Стахановская, д. 49
- Сообщение о планируемом изъятии земельного участка для муниципальных нужд по адресу: г. Архангельск, ул. Целлюлозная, д. 12
- Сообщение о планируемом изъятии земельного участка для муниципальных нужд по адресу: г. Архангельск, ул. Мореплавателей, д. 5
- Сообщение о планируемом изъятии земельного участка для муниципальных нужд по адресу: г. Архангельск, ул. Володарского, д. 83
- Сообщение о планируемом изъятии земельного участка для муниципальных нужд по адресу: г. Архангельск, пр. Ленинградский, д. 369
- Сообщение о планируемом изъятии земельного участка для муниципальных нужд по адресу: г. Архангельск, ул. Павла Усова, д. 39
- Сообщение о планируемом изъятии земельного участка для муниципальных нужд по адресу: г. Архангельск, пр. Советских космонавтов, д. 79
- Сообщение о планируемом изъятии земельного участка для муниципальных нужд по адресу: г. Архангельск, ул. Железнодорожная, д. 7
- Сообщение о планируемом изъятии земельного участка для муниципальных нужд по адресу: г. Архангельск, ул. Железнодорожная, д. 6
- Сообщение о планируемом изъятии земельного участка для муниципальных нужд по адресу: г. Архангельск, ул. Кочуринская, д. 50
- Сообщение о планируемом изъятии земельного участка для муниципальных нужд по адресу: г. Архангельск, ул. Котовского, д. 5
- Сообщение о планируемом изъятии земельного участка для муниципальных нужд по адресу: г. Архангельск, ул. Серафимовича, д. 73
- Сообщение о планируемом изъятии земельного участка для муниципальных нужд по адресу: г. Архангельск, пр. Новгородский, д. 101, корп. 3
- Сообщение о планируемом изъятии земельного участка для муниципальных нужд по адресу: г. Архангельск, ул. Северодвинская, д. 5
- Сообщение о планируемом изъятии земельного участка для муниципальных нужд по адресу: г. Архангельск, ул. Ленина, д. 14
- Сообщение о планируемом изъятии земельного участка для муниципальных нужд по адресу: г. Архангельск, ул. Красных Маршалов, д. 8
- Сообщение о планируемом изъятии земельного участка для муниципальных нужд по адресу: г. Архангельск, пр. Обводный канал, д. 59
- Сообщение о планируемом изъятии земельного участка для муниципальных нужд по адресу: г. Архангельск, ул. Советская, д. 73
- Сообщение о планируемом изъятии земельного участка для муниципальных нужд по адресу: г. Архангельск, ул. Петра Стрелкова, д. 9
- Сообщение о планируемом изъятии земельного участка для муниципальных нужд по адресу: г. Архангельск, ул. Орджоникидзе, д. 24
- Сообщение о планируемом изъятии земельного участка для муниципальных нужд по адресу: г. Архангельск, ул. Пирсовая, д. 68
- Сообщение о планируемом изъятии земельного участка для муниципальных нужд по адресу: г. Архангельск, ул. Калинина, д. 17
- Сообщение о планируемом изъятии земельного участка для муниципальных нужд по адресу: г. Архангельск, ул. Карельская, д. 55
- Сообщение о планируемом изъятии земельного участка для муниципальных нужд по адресу: г. Архангельск, 2-й Ленинградский пер., д. 14
- Сообщение о планируемом изъятии земельного участка для муниципальных нужд по адресу: г. Архангельск, ул. Пионерская, д. 148
- Сообщение о планируемом изъятии земельного участка для муниципальных нужд по адресу: г. Архангельск, ул. Орджоникидзе, д. 26, корп. 1
- Сообщение о планируемом изъятии земельного участка для муниципальных нужд по адресу: г. Архангельск, ул. Выучейского, д. 60
- Сообщение о планируемом изъятии земельного участка для муниципальных нужд по адресу: г. Архангельск, ул. Титова, д. 4
- Сообщение о планируемом изъятии земельного участка для муниципальных нужд по адресу: г. Архангельск, ул. Матросова, д. 8
- Сообщение о планируемом изъятии земельного участка для муниципальных нужд по адресу: г. Архангельск, ул. Павла Усова, д. 7
- Сообщение о планируемом изъятии земельного участка для муниципальных нужд по адресу: г. Архангельск, ул. Дружбы, д. 27
- Сообщение о планируемом изъятии земельного участка для муниципальных нужд по адресу: г. Архангельск, ул. Красных Партизан, д. 31
- Сообщение о планируемом изъятии земельного участка для муниципальных нужд по ул. Свободы, 16
- Об изъятии земельного участка и жилых помещений по пр. Ломоносова, 21/ул. Урицкого, 7
- Сообщение о планируемом изъятии земельного участка для муниципальных нужд по адресу: г. Архангельск, ул. Серафимовича, д. 33
- Сообщение о планируемом изъятии земельного участка для муниципальных нужд по адресу: г. Архангельск, ул. Володарского, д. 34 корпус 1
- Сообщение о планируемом изъятии земельного участка для муниципальных нужд по адресу: г. Архангельск, ул. Серафимовича, д. 20
- Сообщение о планируемом изъятии земельного участка для муниципальных нужд по адресу: г. Архангельск, ул. Урицкого, д.3
- Сообщение о планируемом изъятии земельного участка для муниципальных нужд по адресу: г. Архангельск, пр. Ломоносова, д.21/ ул. Урицкого, д.7
- сообщение о планируемом изъятии земельного участка для муниципальных нужд по адресу: г. Архангельск, ул. Володарского, д.81 корпус 1
- Сообщение о планируемом изъятии земельного участка для муниципальных нужд по адресу: г. Архангельск, ул. Гагарина, д. 41
- Сообщение о планируемом изъятии земельного участка для муниципальных нужд по адресу: г. Архангельск, ул. Победы, д. 52
- Сообщение о планируемом изъятии земельного участка для муниципальных нужд по адресу: г. Архангельск, ул. Розы Люксембург, д. 73, корп. 2
- Сообщение о планируемом изъятии земельного участка для муниципальных нужд по адресу: г. Архангельск, ул. Михаила Новова, д. 29
- Сообщение о планируемом изъятии земельного участка для муниципальных нужд по адресу: г. Архангельск, ул. Лесозаводская, д. 12
- Сообщение о планируемом изъятии земельного участка для муниципальных нужд по адресу: г. Архангельск, ул. Петра Стрелкова, д. 14/ ул. Садовая, д. 16
- Сообщение о планируемом изъятии земельного участка для муниципальных нужд по адресу: г. Архангельск, ул. Республиканская, д. 7
- Сообщение о планируемом изъятии земельного участка для муниципальных нужд по адресу: г. Архангельск, ул. Орджонкидзе, д. 16
- Сообщение о планируемом изъятии земельного участка для муниципальных нужд по адресу: г. Архангельск, ул. Коммунальная, д. 2
- Сообщение о планируемом изъятии земельного участка для муниципальных нужд по адресу: г. Архангельск, ул. Поморская, д. 52, корп. 1
- Сообщение о планируемом изъятии земельного участка для муниципальных нужд по адресу: г. Архангельск, ул. Серафимовича, д. 69, корп. 2
- Сообщение о планируемом изъятии земельного участка для муниципальных нужд по адресу: г. Архангельск, ул. Зеньковича, д. 7
- Сообщение о планируемом изъятии земельного участка для муниципальных нужд по адресу: г. Архангельск, ул. Вычегодская, д. 11, корп. 1
- Сообщение о планируемом изъятии земельного участка для муниципальных нужд по адресу: г. Архангельск, пр. Советских космонавтов, д. 83
- Сообщение о планируемом изъятии земельного участка для муниципальных нужд по адресу: г. Архангельск, ул.Матросова, д. 3
- Сообщение о планируемом изъятии земельного участка для муниципальных нужд по адресу: г. Архангельск, ул.Калинина, д. 4
- Сообщение о планируемом изъятии земельного участка для муниципальных нужд по адресу: г. Архангельск, ул. Республиканская, д.8
- Сообщение о планируемом изъятии земельного участка для муниципальных нужд по адресу: г. Архангельск, пер. Двинской, д. 5
- Сообщение о планируемом изъятии земельного участка для муниципальных нужд по адресу: г. Архангельск, ул. Добролюбова, д. 26
- Сообщение о планируемом изъятии земельного участка для муниципальных нужд по адресу: г. Архангельск, ул. Победы, д. 15, корп. 3
- Сообщение о планируемом изъятии земельного участка для муниципальных нужд по адресу: г. Архангельск, ул. Победы, д. 15, корп. 2
- Сообщение о планируемом изъятии земельного участка для муниципальных нужд по адресу: г. Архангельск, ул. Победы, д. 24
- Сообщение о планируемом изъятии земельного участка для муниципальных нужд по адресу: г. Архангельск, ул. Победы, д. 58
- Сообщение о планируемом изъятии земельного участка для муниципальных нужд по адресу: г. Архангельск, ул. Красной звезды, д.7
- Сообщение о планируемом изъятии земельного участка для муниципальных нужд по адресу: г. Архангельск, пр. Советских космонавтов, д. 113.
- Сообщение о планируемом изъятии земельного участка для муниципальных нужд по адресу: г. Архангельск, ул. Красных партизан, д.4, корп. 1
- Сообщение о планируемом изъятии земельного участка для муниципальных нужд по адресу: г. Архангельск, пр. Новгородский, д.98, корп. 3
- Сообщение о планируемом изъятии земельного участка для муниципальных нужд по адресу: г. Архангельск, пр. Никольский, д. 89
- Сообщение о планируемом изъятии земельного участка для муниципальных нужд по адресу: г. Архангельск, ул. Репина, д. 13
- Сообщение о планируемом изъятии земельного участка для муниципальных нужд по адресу: г. Архангельск, ул. Орджоникидзе, д. 14
- Сообщение о планируемом изъятии земельного участка для муниципальных нужд по адресу: г. Архангельск, ул. Котласская, д. 2
- Сообщение о планируемом изъятии земельного участка для муниципальных нужд по адресу: г. Архангельск, ул. Вологодская, д. 57
- Сообщение о планируемом изъятии земельного участка для муниципальных нужд по адресу: г. Архангельск, ул. Гайдара, д. 21, корп. 1
- Сообщение о планируемом изъятии земельного участка для муниципальных нужд по адресу: г. Архангельск, ул. Торговая, д. 109
- Сообщение о планируемом изъятии земельного участка для муниципальных нужд по адресу: г. Архангельск, ул. Железнодорожная, д. 18
- Сообщение о планируемом изъятии земельного участка для муниципальных нужд по адресу: г. Архангельск, ул. Катарина, д. 3
- Сообщение о планируемом изъятии земельного участка для муниципальных нужд по адресу: г. Архангельск, ул. Юности, д. 4
- Сообщение о планируемом изъятии земельного участка для муниципальных нужд по адресу: г. Архангельск, ул. Кутузова, д. 13
- Сообщение о планируемом изъятии земельного участка для муниципальных нужд по адресу: г. Архангельск, ул. Урицкого, д. 32, корп. 1
- Сообщение о планируемом изъятии земельного участка для муниципальных нужд по адресу: г. Архангельск, ул. Петра Стрелкова, д. 11
- Сообщение о планируемом изъятии земельного участка для муниципальных нужд по адресу: г. Архангельск, ул. Красных Маршалов, д. 10
- Сообщение о планируемом изъятии земельного участка для муниципальных нужд по адресу: г. Архангельск, ул. Суфтина, д. 1
- Сообщение о планируемом изъятии земельного участка для муниципальных нужд по адресу: г. Архангельск, ул. Водоемная, д. 8
- Сообщение о планируемом изъятии земельного участка для муниципальных нужд по адресу: г. Архангельск, ул. Калинина, д. 29, корп. 1
- Сообщение о планируемом изъятии земельного участка для муниципальных нужд по адресу: г. Архангельск, ул. Лесотехническая, д. 7
- Сообщение о планируемом изъятии земельного участка для муниципальных нужд по адресу: г. Архангельск, ул. Котласская, д. 12
- Сообщение о планируемом изъятии земельного участка для муниципальных нужд по адресу: г. Архангельск, ул. Адмирала Кузнецова, д. 3 / ул. Маяковского, д. 60, корп. 1,
- Сообщение о планируемом изъятии земельного участка для муниципальных нужд по адресу: г. Архангельск, ул. Маяковского, д. 9
- Сообщение о планируемом изъятии земельного участка для муниципальных нужд по адресу: г. Архангельск, ул. Попова, д. 50, корп. 1
- Сообщение о планируемом изъятии земельного участка для муниципальных нужд по адресу: г. Архангельск, пр. Обводный канал, д. 117
- Сообщение о планируемом изъятии земельного участка для муниципальных нужд по адресу: г. Архангельск, ул. Ударников, д. 11
- Сообщение о планируемом изъятии земельного участка для муниципальных нужд по адресу: г. Архангельск, ул. Урицкого, 39
- Сообщение о планируемом изъятии земельного участка для муниципальных нужд по адресу: г. Архангельск, 2-й Ленинградский переулок, 3
- Сообщение о планируемом изъятии земельного участка для муниципальных нужд по адресу: г. Архангельск, ул. Бассейная, 4
- Сообщение о планируемом изъятии земельного участка для муниципальных нужд по адресу: г. Архангельск, ул. Ильича, 39, корп. 2
- Сообщение о планируемом изъятии земельного участка для муниципальных нужд по адресу: г. Архангельск, ул. Георгия Иванова, 14
- Сообщение о планируемом изъятии земельного участка для муниципальных нужд по адресу: г. Архангельск, ул. Физкультурников, 37
- Сообщение о планируемом изъятии земельных участков для муниципальных нужд по адресу: г. Архангельск, ул. Советская, 57
- Сообщение о планируемом изъятии земельного участка для муниципальных нужд по адресу: г. Архангельск, ул. Тельмана, 2
- Сообщение о планируемом изъятии земельного участка для муниципальных нужд по адресу: г. Архангельск, ул. Ильича, 11
- Сообщение о планируемом изъятии земельного участка для муниципальных нужд по адресу: г. Архангельск, 2-й Ленинградский переулок, 7
- Сообщение о планируемом изъятии земельного участка для муниципальных нужд по адресу: г. Архангельск, ул. Республиканская, 6
- Сообщение о планируемом изъятии земельного участка для муниципальных нужд по адресу: г. Архангельск, ул. Республиканская, 14
- Сообщение о планируемом изъятии земельного участка для муниципальных нужд по адресу: г. Архангельск, ул. Вычегодская, 7, корп. 3
- Сообщение о планируемом изъятии земельного участка для муниципальных нужд по адресу: г. Архангельск, ул. Котовского, 11, корп. 1
- Сообщение о планируемом изъятии земельного участка для муниципальных нужд по адресу: г. Архангельск, пр. Ломоносова, 107
- Сообщение о планируемом изъятии земельного участка для муниципальных нужд по адресу: г. Архангельск, ул. Ударников, 24
- Сообщение о планируемом изъятии земельного участка для муниципальных нужд по адресу: г. Архангельск, ул. Дрейера, 49, корп. 2
- Сообщение о планируемом изъятии земельного участка для муниципальных нужд по адресу: г. Архангельск, ул. Дрейера, 51, корп. 1
- Сообщение о планируемом изъятии земельного участка для муниципальных нужд по адресу: г. Архангельск, ул. Рыбацкая, д. 5
- Сообщение о планируемом изъятии земельного участка для муниципальных нужд по адресу: г. Архангельск, ул. Буденного, 10
- Сообщение о планируемом изъятии земельного участка для муниципальных нужд по адресу: г. Архангельск, ул. Шенкурская, 22
- Сообщение о планируемом изъятии земельного участка для муниципальных нужд по адресу: г. Архангельск, ул. Серафимовича, 35
- Сообщение о планируемом изъятии земельного участка для муниципальных нужд по адресу: г. Архангельск, ул. Челюскинцев, 6
- Сообщение о планируемом изъятии земельного участка для муниципальных нужд по адресу: г. Архангельск, ул. Краснофлотская, 41
- Сообщение о планируемом изъятии земельного участка для муниципальных нужд по адресу: г. Архангельск, ул. Краснофлотская, 35
- Сообщение о планируемом изъятии земельного участка для муниципальных нужд по адресу: г. Архангельск, ул. Северодвинская, 7, корп. 3
- Сообщение о планируемом изъятии земельного участка для муниципальных нужд по адресу: г. Архангельск, ул. Северодвинская, 76
- Сообщение о планируемом изъятии земельного участка для муниципальных нужд по адресу: г. Архангельск, ул. Северодвинская, 34
- Сообщение о планируемом изъятии земельного участка для муниципальных нужд по адресу: г. Архангельск, ул. Красных маршалов, 19
- Сообщение о планируемом изъятии земельного участка для муниципальных нужд по адресу: г. Архангельск, ул. Ленина, 6
- Сообщение о планируемом изъятии земельного участка для муниципальных нужд по адресу: г. Архангельск, переулок Водников, 4
- Сообщение о планируемом изъятии земельного участка для муниципальных нужд по адресу: г. Архангельск, ул. Котласская, д. 4
- Сообщение о планируемом изъятии земельного участка для муниципальных нужд по адресу: г. Архангельск, ул. Доковская, д. 7
- Сообщение о планируемом изъятии земельного участка для муниципальных нужд по адресу: г. Архангельск, ул. Севстрой, д. 2, корп. 3
- Сообщение о планируемом изъятии земельного участка для муниципальных нужд по адресу: г. Архангельск, ул. Гагарина, 33
- Сообщение о планируемом изъятии земельного участка для муниципальных нужд по адресу: г. Архангельск, ул. Володарского, 54
- Сообщение о планируемом изъятии земельного участка для муниципальных нужд по адресу: г. Архангельск, ул. Володарского, 26
- Сообщение о планируемом изъятии земельного участка для муниципальных нужд по адресу: г. Архангельск, ул. Самойло, 1
- Сообщение о планируемом изъятии земельного участка для муниципальных нужд по адресу: г. Архангельск, ул. Суханова, 2
- Сообщение о планируемом изъятии земельного участка для муниципальных нужд по адресу: г. Архангельск, ул. Дрейера, 13, корп. 1
- Сообщение о планируемом изъятии земельного участка для муниципальных нужд по адресу: г. Архангельск, ул. Карельская, 22 / пр. Ломоносова, 283
- Сообщение о планируемом изъятии земельного участка для муниципальных нужд по адресу: г. Архангельск, пр. Ломоносова, 17, корп. 2
- Сообщение о планируемом изъятии земельного участка для муниципальных нужд по адресу: г. Архангельск, пр. Ломоносова, 172, корп. 2
- Сообщение о планируемом изъятии земельного участка для муниципальных нужд по адресу: г. Архангельск, пр. Ломоносова, 176
- Сообщение о планируемом изъятии земельного участка для муниципальных нужд по адресу: г. Архангельск, ул. Урицкого, 35
- Сообщение о планируемом изъятии земельного участка для муниципальных нужд по адресу: г. Архангельск, ул. Урицкого, 12
- Сообщение о планируемом изъятии земельного участка для муниципальных нужд по адресу: г. Архангельск, ул. Школьная, 56
- Сообщение о планируемом изъятии земельного участка для муниципальных нужд по адресу: г. Архангельск, пр. Советских космонавтов, 194, корп. 2
- Сообщение о планируемом изъятии земельного участка для муниципальных нужд по адресу: г. Архангельск, пр. Советских космонавтов, 65, корп. 1
- Сообщение о планируемом изъятии земельного участка для муниципальных нужд по адресу: г. Архангельск, проезд Бадигина, 4
- Сообщение о планируемом изъятии земельного участка для муниципальных нужд по адресу: г. Архангельск, ул. Юности, 2
- Сообщение о планируемом изъятии земельного участка для муниципальных нужд по адресу: г. Архангельск, пр. Новгородский, 90, корп. 1
- Сообщение о планируемом изъятии земельного участка для муниципальных нужд по адресу: г. Архангельск, пр. Новгородский, 78
- Сообщение о планируемом изъятии земельного участка для муниципальных нужд по адресу: г. Архангельск, ул. Мирная, 26
- Сообщение о планируемом изъятии земельного участка для муниципальных нужд по адресу: г. Архангельск, ул. Чапаева, 5
- Сообщение о планируемом изъятии земельного участка для муниципальных нужд по адресу: г. Архангельск, наб. Северной Двины, 32, корп. 6
- Сообщение о планируемом изъятии земельных участков для муниципальных нужд по адресу: г. Архангельск, наб. Северной Двины, 32, корп. 7
- Сообщение о планируемом изъятии земельного участка для муниципальных нужд по адресу: г. Архангельск, ул. Победы, 31, корп. 1
- Сообщение о планируемом изъятии земельного участка для муниципальных нужд по адресу: г. Архангельск, ул. Победы, 78
- Сообщение о планируемом изъятии земельного участка и жилых помещения для муниципальных нужд по ул. Урицкого, 41
- Сообщение о планируемом изъятии земельного участка для муниципальных нужд по адресу: г. Архангельск, ул. Островная, д. 8
- Сообщение о планируемом изъятии земельного участка для муниципальных нужд по адресу: г. Архангельск, ул. Школьная, д. 78
- Сообщение о планируемом изъятии земельного участка для муниципальных нужд по адресу: г. Архангельск, ул. Маяковского, д. 50
- Сообщение о планируемом изъятии земельного участка для муниципальных нужд по адресу: г. Архангельск, наб. Георгия Седова, 20
- Сообщение о планируемом изъятии земельного участка для муниципальных нужд по адресу: г. Архангельск, наб. Георгия Седова, 19
- Сообщение о планируемом изъятии земельного участка для муниципальных нужд по адресу: г. Архангельск, ул. Калинина, 18, корп. 1
- Сообщение о планируемом изъятии земельного участка для муниципальных нужд по адресу: г. Архангельск, ул. Октябрьская, 21
- Сообщение о планируемом изъятии земельного участка для муниципальных нужд по адресу: г. Архангельск, ул. Октябрьская, 19
- Сообщение о планируемом изъятии земельного участка для муниципальных нужд по адресу: г. Архангельск, ул. Октябрьская, 15
- Сообщение о планируемом изъятии земельного участка для муниципальных нужд по адресу: г. Архангельск, ул. Физкультурников, 36
- Сообщение о планируемом изъятии земельного участка для муниципальных нужд по адресу: г. Архангельск, ул. Траловая, 14
- Сообщение о планируемом изъятии земельного участка для муниципальных нужд по адресу: г. Архангельск, пр. Ленинградский, 28
- Сообщение о планируемом изъятии земельного участка для муниципальных нужд по пр. Обводный канал, 60 корпус 4
- Сообщение о планируемом изъятии земельного участка для муниципальных нужд по ул. Садовой, 46 корпус 1
- Сообщение о планируемом изъятии земельного участка для муниципальных нужд по ул. Володарского, 81
- Сообщение о планируемом изъятии земельного участка для муниципальных нужд по адресу: г. Архангельск, ул. Кировская, 5
- Сообщение о планируемом изъятии земельного участка для муниципальных нужд по адресу: г. Архангельск, ул. Партизанская, 32/ул. Красных маршалов, 15
- Сообщение о планируемом изъятии земельного участка для муниципальных нужд по адресу: г. Архангельск, ул. Цигломенская, 33
- Сообщение о планируемом изъятии земельного участка для муниципальных нужд по адресу: г. Архангельск, ул. Родионова, 4
- Сообщение о планируемом изъятии земельного участка для муниципальных нужд по адресу: г. Архангельск, ул. Октябрьская, 10
- Сообщение о планируемом изъятии земельного участка для муниципальных нужд по адресу: г. Архангельск, ул. Заводская, 98
- Сообщение о планируемом изъятии земельного участка для муниципальных нужд по адресу: г. Архангельск, ул. Пирсовая, 66
- Сообщение о планируемом изъятии земельного участка для муниципальных нужд по адресу: г. Архангельск, пр. Новгородский, 139
- Сообщение о планируемом изъятии земельного участка для муниципальных нужд по адресу: г. Архангельск, ул. Севстрой, 19
- Сообщение о планируемом изъятии земельного участка для муниципальных нужд по адресу: г. Архангельск, ул. Урицкого, 34
- Сообщение о планируемом изъятии земельного участка для муниципальных нужд по адресу: г. Архангельск, ул. Нахимова, 8
- Сообщение о планируемом изъятии земельного участка для муниципальных нужд по адресу: г. Архангельск, пр. Новгородский, 84
- Сообщение о планируемом изъятии земельного участка для муниципальных нужд по адресу: г. Архангельск, ул. Беломорской флотилии, 6, корп. 1
- Сообщение о планируемом изъятии земельного участка для муниципальных нужд по адресу: г. Архангельск, ул. Северодвинская, 9, корп. 1
- Сообщение о планируемом изъятии земельного участка для муниципальных нужд по адресу: г. Архангельск, пр. Советских космонавтов, 74, корп. 1
- Сообщение о планируемом изъятии земельного участка для муниципальных нужд по адресу: г. Архангельск, ул. Беломорской флотилии, 6
- Сообщение о планируемом изъятии земельного участка для муниципальных нужд по адресу: г. Архангельск, пр. Советских космонавтов, 198/ул. Гагарина, 34
- Сообщение о планируемом изъятии земельного участка для муниципальных нужд по адресу: г. Архангельск, ул. Карельская, 47/ул. Самойло, 2
- Сообщение о планируемом изъятии земельного участка для муниципальных нужд по адресу: г. Архангельск, ул. Лесозаводская, 6
- Сообщение о планируемом изъятии земельного участка для муниципальных нужд по адресу: г. Архангельск, ул. Индустриальная, 9
- Сообщение о планируемом изъятии земельного участка для муниципальных нужд по адресу: г. Архангельск, ул. Красных маршалов, 11/ул. Горького, 9
- Сообщение о планируемом изъятии земельного участка для муниципальных нужд по адресу: г. Архангельск, ул. Поморская, 52/пр. Советских космонавтов, 73
- Сообщение о планируемом изъятии земельного участка для муниципальных нужд по адресу: г. Архангельск, ул. Урицкого, 24
- Сообщение о планируемом изъятии земельного участка для муниципальных нужд по адресу: г. Архангельск, ул. Гидролизная, 13
- Сообщение о планируемом изъятии земельного участка для муниципальных нужд по адресу: г. Архангельск, ул. Некрасова, 3
- Сообщение о планируемом изъятии земельного участка для муниципальных нужд по адресу: г. Архангельск, ул. Вычегодская, 11, корп. 2
- Сообщение о планируемом изъятии земельного участка для муниципальных нужд по адресу: г. Архангельск, ул. Михаила Новова, 31
- Сообщение о планируемом изъятии земельного участка для муниципальных нужд по адресу: г. Архангельск, ул. Республиканская, 17
- Сообщение о планируемом изъятии земельного участка для муниципальных нужд по адресу: г. Архангельск, пр. Ленинградский, 314, корп. 1
- Сообщение о планируемом изъятии земельного участка для муниципальных нужд по адресу: г. Архангельск, ул. Поморская, 68, корп. 2
- Сообщение о планируемом изъятии земельного участка для муниципальных нужд по адресу: г. Архангельск, ул. Челюскинцев, 8
- Сообщение о планируемом изъятии земельного участка для муниципальных нужд по адресу: г. Архангельск, ул. Вельможного, 1/ул. Менделеева, 9
- Сообщение о планируемом изъятии земельного участка для муниципальных нужд по адресу: г. Архангельск, ул. Победы, 56
- Сообщение о планируемом изъятии земельного участка для муниципальных нужд по адресу: г. Архангельск, ул. Победы, 148
- Сообщение о планируемом изъятии земельного участка для муниципальных нужд по адресу: г. Архангельск, ул. Родионова, 13
- Сообщение о планируемом изъятии земельного участка для муниципальных нужд по адресу: г. Архангельск, ул. Орджоникидзе, 7
- Сообщение о планируемом изъятии земельного участка для муниципальных нужд по адресу: г. Архангельск, ул. Пионерская, 85
- Сообщение о планируемом изъятии земельного участка для муниципальных нужд по адресу: г. Архангельск, ул. Партизанская, 15
- Сообщение о планируемом изъятии земельного участка для муниципальных нужд по адресу: г. Архангельск, ул. Поморская, 57
- Сообщение о планируемом изъятии земельного участка для муниципальных нужд по адресу: г. Архангельск, пр. Ломоносова, 279
- Сообщение о планируемом изъятии земельного участка для муниципальных нужд по адресу: г. Архангельск, ул. Ярославская, 75
- Сообщение о планируемом изъятии земельного участка для муниципальных нужд по адресу: г. Архангельск, ул. Адмирала Макарова, 5, корп. 1
- Сообщение о планируемом изъятии земельного участка для муниципальных нужд по адресу: г. Архангельск, ул. Котласская, 18/ул. Розы Люксембург, 62
- Сообщение о планируемом изъятии земельного участка для муниципальных нужд по адресу: г. Архангельск, ул. Левачева, 10
- Сообщение о планируемом изъятии земельного участка для муниципальных нужд по адресу: г. Архангельск, пр. Советских космонавтов, 107, корп. 1
- Сообщение о планируемом изъятии земельного участка для муниципальных нужд по адресу: г. Архангельск, ул. Северодвинская, 67
- Сообщение о планируемом изъятии земельного участка для муниципальных нужд по адресу: г. Архангельск, ул. Володарского, 69
- Сообщение о планируемом изъятии земельного участка для муниципальных нужд по адресу: г. Архангельск, ул. Северодвинская, 7, корп. 1
- Сообщение о планируемом изъятии земельного участка для муниципальных нужд по адресу: г. Архангельск, ул. Ярославская, 30
- Сообщение о планируемом изъятии земельного участка для муниципальных нужд по адресу: г. Архангельск, пр. Ломоносова, 73
- Сообщение о планируемом изъятии земельного участка для муниципальных нужд по адресу: г. Архангельск, ул. Адмирала Макарова, 7
- Сообщение о планируемом изъятии земельного участка для муниципальных нужд по адресу: г. Архангельск, пр. Советских космонавтов, 112, корп. 1
- Сообщение о планируемом изъятии земельного участка для муниципальных нужд по адресу: г. Архангельск, ул. Гидролизная, 3
- Сообщение о планируемом изъятии земельного участка для муниципальных нужд по адресу: г. Архангельск, ул. Федота Шубина, 6
- Сообщение о планируемом изъятии земельного участка для муниципальных нужд по адресу: г. Архангельск, ул. Федота Шубина, 8
- Сообщение о планируемом изъятии земельного участка для муниципальных нужд по адресу: г. Архангельск, ул. Горького, 4
- Сообщение о планируемом изъятии земельного участка для муниципальных нужд по адресу: г. Архангельск, пр. Ломоносова, д. 200, корп. 1
- Сообщение о планируемом изъятии земельного участка для муниципальных нужд по адресу: г. Архангельск, ул. Тяговая, д. 25
- Сообщение о планируемом изъятии земельного участка для муниципальных нужд по адресу: г. Архангельск, ул. Герцена, д. 10
- Сообщение о планируемом изъятии земельного участка для муниципальных нужд по адресу: г. Архангельск, ул. Пионерская, д. 83
- Сообщение о планируемом изъятии земельного участка для муниципальных нужд по адресу: г. Архангельск, ул. Ленина, д. 12
- Сообщение о планируемом изъятии земельного участка для муниципальных нужд по адресу: г. Архангельск, пр. Обводный канал, д. 39
- Сообщение о планируемом изъятии земельного участка для муниципальных нужд по адресу: г. Архангельск, ул. Победы, д. 54
- Сообщение о планируемом изъятии земельного участка для муниципальных нужд по адресу: г. Архангельск, ул. Лесозаводская, д. 23
- Сообщение о планируемом изъятии земельного участка для муниципальных нужд по адресу: г. Архангельск, ул. Калинина, д. 20
- Сообщение о планируемом изъятии земельного участка для муниципальных нужд по адресу: г. Архангельск, ул.Серафимовича, 20 корпус 1
- Сообщение о планируемом изъятии земельного участка для муниципальных нужд по адресу: г. Архангельск, ул. Заводская, д. 93
- Сообщение о планируемом изъятии земельного участка для муниципальных нужд по адресу: г. Архангельск, ул. Заводская, д. 100, корп.1
- Сообщение о планируемом изъятии земельного участка для муниципальных нужд по адресу: г. Архангельск, ул. Титова, д. 14
- Сообщение о планируемом изъятии земельного участка для муниципальных нужд по адресу: г. Архангельск, ул. Репина, д. 19
- Сообщение о планируемом изъятии земельного участка для муниципальных нужд по адресу: г. Архангельск, ул. Партизанская, д. 18
- Сообщение о планируемом изъятии земельного участка для муниципальных нужд по адресу: город Архангельск, ул.Володарского, д.36















































