1. Цель изъятия земельного участка для муниципальных нужд – изъятие земельного участка в связи с признанием многоквартирного жилого дома № 3 по ул. Горького в г. Архангельске аварийным и подлежащим сносу.
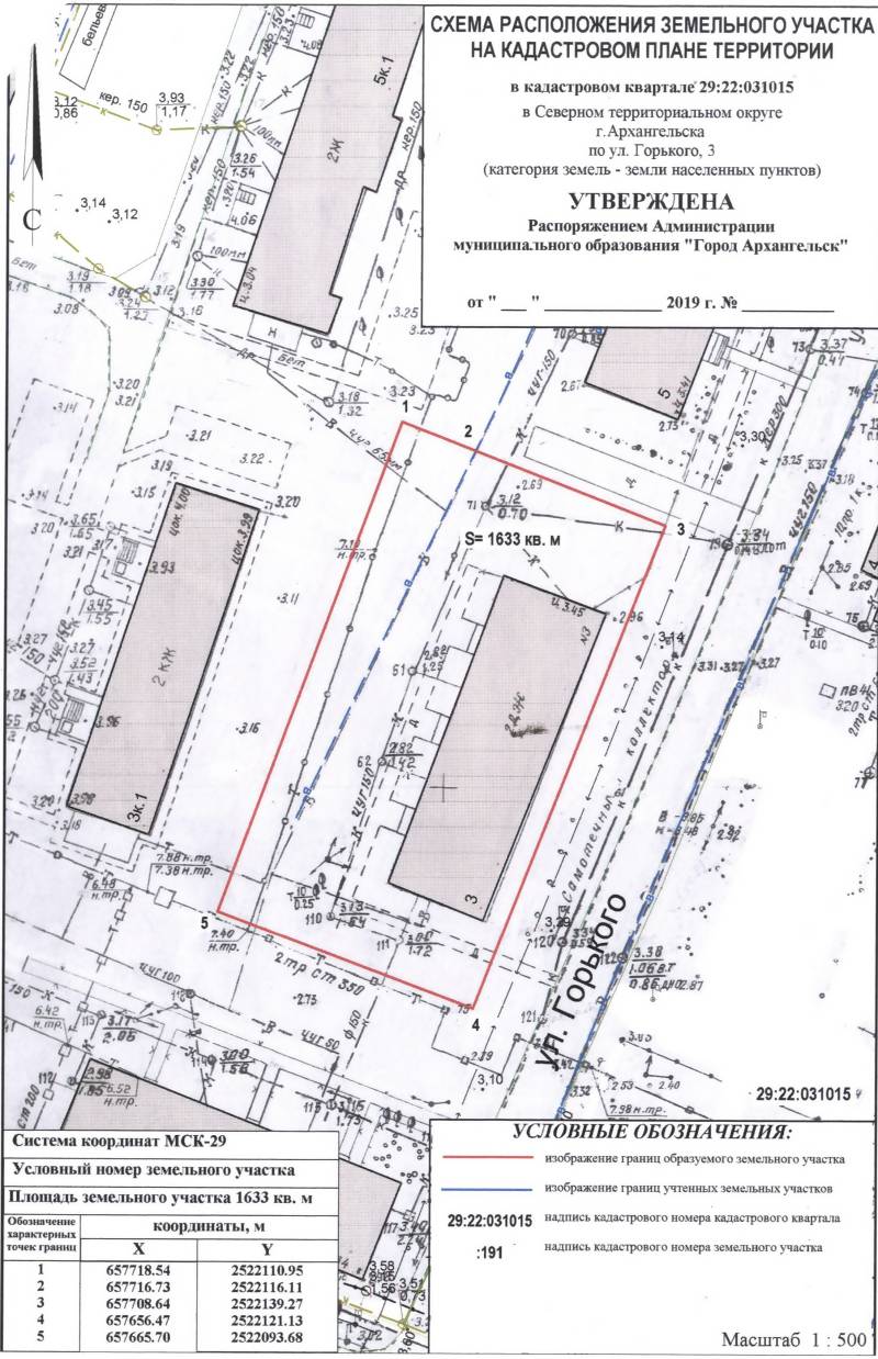
2. Адрес месторасположения земельного участка: г. Архангельск, ул. Горького, д. 3. Данный земельный участок расположен в кадастровом квартале 29:22:031015. Планируемая к утверждению схема расположения земельного участка:

На данном земельном участке расположены следующие объекты недвижимости:
ул. Горького, д. 3, кв. 1, кадастровый номер 29:22:031015:62;
ул. Горького, д. 3, кв. 2, кадастровый номер 29:22:031015:72;
ул. Горького, д. 3, кв. 5, кадастровый номер 29:22:031015:69;
ул. Горького, д. 3, кв. 7, кадастровый номер 29:22:031015:66;
ул. Горького, д. 3, кв. 8, кадастровый номер 29:22:031015:68;
ул. Горького, д. 3, кв. 10, кадастровый номер 29:22:031015:67;
ул. Горького, д. 3, кв. 11, кадастровый номер 29:22:031015:70.
3. Получить информацию о предполагаемом изъятии земельного участка, указанного в п. 1 настоящего сообщения, и расположенных на нем объектов недвижимого имущества для муниципальных нужд, а также подать заявления об учете прав на земельный участок и иные объекты недвижимого имущества, заинтересованные лица могут по адресу: г. Архангельск, пл. В.И. Ленина, д. 5, каб. 518а, тел.(8182) 607-468. Заявление на подачу информации может быть подано заинтересованными лицами в течение 60 дней с момента опубликования настоящего сообщения.
4. Официальный информационный интернет-портал муниципального образования "Город Архангельск", где размещено настоящее сообщение - www.arhcity.ru. Также настоящее сообщение размещено на информационном стенде у каб. 423, расположенном по адресу: г. Архангельск, пл. В.И. Ленина, д. 5.
5. Уполномоченный орган местного самоуправления, осуществляющий выявление лиц, земельный участок которых подлежит изъятию для муниципальных нужд – Администрация муниципального образования "Город Архангельск" в лице департамента муниципального имущества Администрации муниципального образования "Город Архангельск".