На данном сайте содержится информация о деятельности Администрации городского округа «Город Архангельск» по состоянию на 31.12.2025.
Актуальная информация размещается https://arhcity.gosuslugi.ru/
Актуальная информация размещается https://arhcity.gosuslugi.ru/
Отдел содержания дорог и безопасности дорожного движения
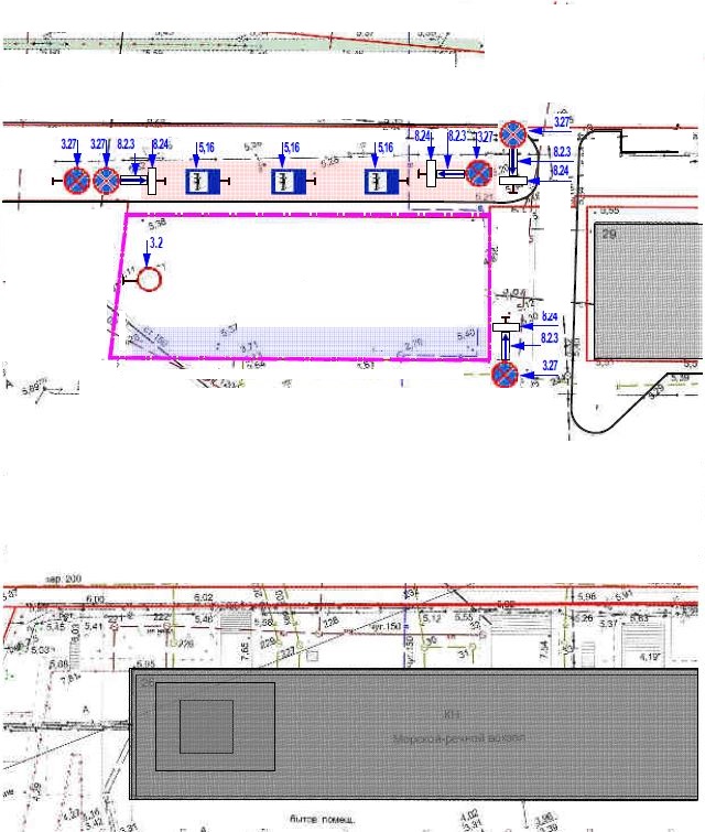
Изменение схемы движения у Морского-Речного Вокзала
Департаментом транспорта, строительства и городской инфраструктуры согласовано введение изменений в организацию дорожного движения на территории Морского речного вокзала. Так, введены ограничения остановки и стоянки транспортных средств в местах остановки и стоянки общественного транспорта, осуществляющего междугородние рейсы.
Скоро что то будет...
Оцените полезность информации:
Дата публикации документа: 24.12.2020 16:58:17
Последнее изменение: 24.12.2020 17:10:17
Последнее изменение: 24.12.2020 17:10:17














































